|
|
|
| Larry Stein Oklahoma County Assessor (405) 713-1200 - Public Access System |
|
|
|
|
|
|
| Real Property Display - Screen Produced 4/12/2026 12:52:21 PM | ||||
|---|---|---|---|---|
| Account: R063741500 | Type: Residential | Location: |
2343 NW 21ST ST |
|
| Building Name/Occupant: |
|
OKLAHOMA CITY |
||
| Owner Name 1: | 2343 NW LLC |
Parcel PIN#: |
2717-06-374-1500 |
|
| Owner Name 2: | 1/4 section #: |
2717 |
||
| Owner Name 3: | Parent Acct: |
|
||
| Billing Address: | 209 NE 14TH ST | Tax District: |
|
|
| City, State, Zip | OKLAHOMA CITY, OK 73104 | School System: |
Oklahoma City #89 |
|
|
Country: (If noted) |
Land Size: |
0.1791 Acres |
||
|
Land Value: 33,930 |
|
|||
|
Sect 30-T12N-R3W Qtr NE |
AURORA ADDITION
Block
005
Lot
000
|
|||
| Full Legal Description: AURORA ADDITION 005 000 W52FT OF E156FT OF S 1/2 |
| Photo & Sketch (if available) | Comp Sales (ordered by relevancy) |
|
||||||||||||||||||
|
||||||||||||||||||||
| Value History (*The County Treasurer 405-713-1300 posts & collects actual tax amounts. Contact information HERE) | |||||||||||||
|---|---|---|---|---|---|---|---|---|---|---|---|---|---|
| Year | Market Value | Taxable Mkt Value | Gross Assessed | Exemption | Net Assessed | Millage | Est. Tax | Tax Savings | |||||
|
2026 |
220,500 |
215,538 |
23,709 |
0 |
23,709 |
122.90 |
$2,914 |
$67 |
|||||
|
2025 |
221,000 |
205,275 |
22,580 |
0 |
22,580 |
122.90 |
$2,775 |
$213 |
|||||
|
2024 |
195,500 |
195,500 |
21,505 |
0 |
21,505 |
123.89 |
$2,664 |
$0 |
|||||
|
2023 |
286,000 |
286,000 |
31,460 |
0 |
31,460 |
122.82 |
$3,864 |
$0 |
|||||
|
2022 |
150,000 |
131,969 |
14,516 |
0 |
14,516 |
117.63 |
$1,708 |
$233 |
|||||
| Property Account Status/Adjustments/Exemptions | ||
|---|---|---|
| Account # | Exemption Description | Amount |
|
R063741500 |
5% Capped Account |
0 |
| Property Deed Transaction History (Recorded in the County Clerk's Office) | ||||||||||
|---|---|---|---|---|---|---|---|---|---|---|
| Date | Type | Book | Page | Price | Grantor | Grantee | ||||
|
6/2/2022 |
|
Deeds |
$285,000 |
HUNT HOMES LLC |
2343 NW LLC |
|||||
|
12/29/2017 |
|
Hmstd Off & |
$0 |
HUNT SPENCER & TIFFANY |
HUNT HOMES LLC |
|||||
|
9/29/2017 |
|
Deeds |
$110,000 |
WARDWELL LAURA A & AHREN S |
HUNT SPENCER & TIFFANY |
|||||
|
9/23/2011 |
|
Deeds |
$0 |
BRADFIELD LAURA |
WARDWELL LAURA A & AHREN S |
|||||
|
12/31/2010 |
|
Hmstd Off & |
$0 |
SPITZER DAVID |
BRADFIELD LAURA |
|||||
| Last Mailed Notice of Value (N.O.V.) Information/History | ||||||||
|---|---|---|---|---|---|---|---|---|
| Year | Date | Market Value | Taxable Market Value | Gross Assessed | Exemption | Net Assessed | ||
|
2026 |
02/23/2026 |
220,500 |
215,538 |
23,709 |
0 |
23,709 |
||
|
2025 |
02/14/2025 |
221,000 |
205,275 |
22,580 |
0 |
22,580 |
||
|
2023 |
02/14/2023 |
286,000 |
286,000 |
31,460 |
0 |
31,460 |
||
|
2022 |
03/15/2022 |
150,000 |
131,969 |
14,516 |
0 |
14,516 |
||
|
2021 |
03/19/2021 |
129,000 |
125,685 |
13,825 |
0 |
13,825 |
||
| Property Building Permit History | |||||||||||
|---|---|---|---|---|---|---|---|---|---|---|---|
| Issued | Permit # | Provided by | Bldg # | Description | Est Construction Cost | Status | |||||
| No Building Permit records returned. | |||||||||||
| Click button on building number to access detailed information: | ||||||
|---|---|---|---|---|---|---|
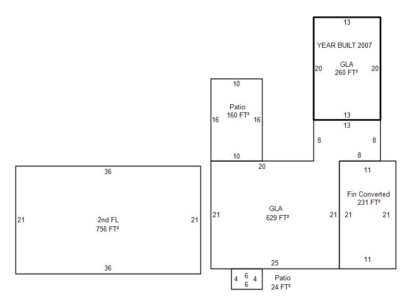
| Bldg # | Vacant/Improved Land | Bldg Description | Year Built | SqFt | # Stories | |
|
1 |
Improved |
2 Story |
1929 |
1,645 |
2 Stories |
|