|
|
|
| Larry Stein Oklahoma County Assessor (405) 713-1200 - Public Access System |
|
|
|
|
|
|
| Real Property Display - Screen Produced 4/12/2026 12:50:59 PM | ||||
|---|---|---|---|---|
| Account: R063742010 | Type: Residential | Location: |
2326 NW 22ND ST |
|
| Building Name/Occupant: |
|
OKLAHOMA CITY |
||
| Owner Name 1: | FRIDAY NIGHT INVESTMENTS LLC |
Parcel PIN#: |
2717-06-374-2010 |
|
| Owner Name 2: | 1/4 section #: |
2717 |
||
| Owner Name 3: | Parent Acct: |
|
||
| Billing Address: | 3018 CREEKVIEW DR | Tax District: |
|
|
| City, State, Zip | TUTTLE, OK 73089-1008 | School System: |
Oklahoma City #89 |
|
|
Country: (If noted) |
Land Size: |
0.1722 Acres |
||
|
Land Value: 32,625 |
|
|||
|
Sect 30-T12N-R3W Qtr NE |
AURORA ADDITION
Block
000
Lot
000
|
|||
| Full Legal Description: AURORA ADDITION 000 000 LOTS 14 & 15 OF N 1/2 BLK 6 |
| Photo & Sketch (if available) | Comp Sales (ordered by relevancy) |
|
||||||||||||||||||
|
||||||||||||||||||||
| Value History (*The County Treasurer 405-713-1300 posts & collects actual tax amounts. Contact information HERE) | |||||||||||||
|---|---|---|---|---|---|---|---|---|---|---|---|---|---|
| Year | Market Value | Taxable Mkt Value | Gross Assessed | Exemption | Net Assessed | Millage | Est. Tax | Tax Savings | |||||
|
2026 |
178,000 |
178,000 |
19,580 |
0 |
19,580 |
122.90 |
$2,406 |
$0 |
|||||
|
2025 |
180,000 |
180,000 |
19,800 |
0 |
19,800 |
122.90 |
$2,433 |
$0 |
|||||
|
2024 |
153,500 |
109,973 |
12,097 |
0 |
12,097 |
123.89 |
$1,499 |
$593 |
|||||
|
2023 |
145,500 |
104,737 |
11,520 |
0 |
11,520 |
122.82 |
$1,415 |
$551 |
|||||
|
2022 |
112,000 |
99,750 |
10,972 |
0 |
10,972 |
117.63 |
$1,291 |
$159 |
|||||
| Property Account Status/Adjustments/Exemptions | ||
|---|---|---|
| Account # | Exemption Description | Amount |
|
R063742010 |
5% Capped Account |
0 |
| Property Deed Transaction History (Recorded in the County Clerk's Office) | ||||||||||
|---|---|---|---|---|---|---|---|---|---|---|
| Date | Type | Book | Page | Price | Grantor | Grantee | ||||
|
3/12/2024 |
|
Deeds |
$190,000 |
HONOR & EQUITY OKC LLC |
FRIDAY NIGHT INVESTMENTS LLC |
|||||
|
12/10/2020 |
|
Deeds |
$100,000 |
MAYO JOSHUA AARON |
HONOR & EQUITY OKC LLC |
|||||
|
5/6/2016 |
|
Hmstd Off & |
$0 |
PAITON AINSLEY LLC |
MAYO JOSHUA AARON |
|||||
|
9/11/2015 |
|
Hmstd Off & |
$0 |
FLINSPACH AMANDA MAYO |
PAITON AINSLEY LLC |
|||||
|
11/12/2014 |
|
Deeds |
$55,000 |
BRANDON FRANKLIN TODD & KARI L |
FLINSPACH AMANDA MAYO |
|||||
| Last Mailed Notice of Value (N.O.V.) Information/History | ||||||||
|---|---|---|---|---|---|---|---|---|
| Year | Date | Market Value | Taxable Market Value | Gross Assessed | Exemption | Net Assessed | ||
|
2025 |
02/14/2025 |
180,000 |
180,000 |
19,800 |
0 |
19,800 |
||
|
2024 |
02/13/2024 |
153,500 |
109,973 |
12,097 |
0 |
12,097 |
||
|
2024 |
04/05/2024 |
153,500 |
109,973 |
12,097 |
0 |
12,097 |
||
|
2023 |
02/14/2023 |
145,500 |
104,737 |
11,520 |
0 |
11,520 |
||
|
2022 |
03/15/2022 |
112,000 |
99,750 |
10,972 |
0 |
10,972 |
||
| Property Building Permit History | |||||||||||
|---|---|---|---|---|---|---|---|---|---|---|---|
| Issued | Permit # | Provided by | Bldg # | Description | Est Construction Cost | Status | |||||
| No Building Permit records returned. | |||||||||||
| Click button on building number to access detailed information: | ||||||
|---|---|---|---|---|---|---|
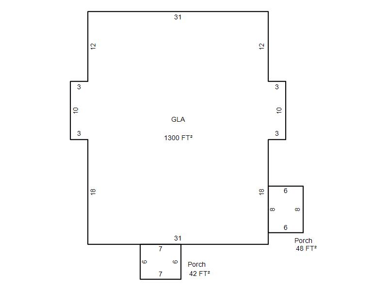
| Bldg # | Vacant/Improved Land | Bldg Description | Year Built | SqFt | # Stories | |
|
1 |
Improved |
Duplex One Story |
1930 |
1,300 |
1 Stories |
|