|
|
|
| Larry Stein Oklahoma County Assessor (405) 713-1200 - Public Access System |
|
|
|
|
|
|
| Real Property Display - Screen Produced 4/12/2026 12:51:01 PM | ||||
|---|---|---|---|---|
| Account: R063742130 | Type: Residential | Location: |
2308 NW 21ST ST |
|
| Building Name/Occupant: |
|
OKLAHOMA CITY |
||
| Owner Name 1: | CELESTIAL PROPERTIES LLC |
Parcel PIN#: |
2717-06-374-2130 |
|
| Owner Name 2: | 1/4 section #: |
2717 |
||
| Owner Name 3: | Parent Acct: |
|
||
| Billing Address: | PO BOX 185 | Tax District: |
|
|
| City, State, Zip | MUSTANG, OK 73064-0185 | School System: |
Oklahoma City #89 |
|
|
Country: (If noted) |
Land Size: |
0.1240 Acres |
||
|
Land Value: 23,490 |
|
|||
|
Sect 30-T12N-R3W Qtr NE |
AURORA ADDITION
Block
007
Lot
000
|
|||
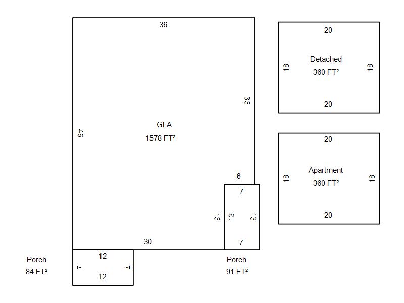
| Full Legal Description: AURORA ADDITION 007 000 BEG 275FT E OF NW/C BLK 7 TH E50FT S108FT W50FT N108FT TO BEG |
| Photo & Sketch (if available) | Comp Sales (ordered by relevancy) |
|
||||||||||||||||||
|
||||||||||||||||||||
| Value History (*The County Treasurer 405-713-1300 posts & collects actual tax amounts. Contact information HERE) | |||||||||||||
|---|---|---|---|---|---|---|---|---|---|---|---|---|---|
| Year | Market Value | Taxable Mkt Value | Gross Assessed | Exemption | Net Assessed | Millage | Est. Tax | Tax Savings | |||||
|
2026 |
210,000 |
109,330 |
12,025 |
0 |
12,025 |
122.90 |
$1,478 |
$1,361 |
|||||
|
2025 |
205,500 |
104,124 |
11,453 |
0 |
11,453 |
122.90 |
$1,408 |
$1,371 |
|||||
|
2024 |
202,000 |
99,166 |
10,907 |
0 |
10,907 |
123.89 |
$1,351 |
$1,401 |
|||||
|
2023 |
188,500 |
94,444 |
10,388 |
0 |
10,388 |
122.82 |
$1,276 |
$1,271 |
|||||
|
2022 |
145,000 |
89,947 |
9,893 |
0 |
9,893 |
117.63 |
$1,164 |
$712 |
|||||
| Property Account Status/Adjustments/Exemptions | ||
|---|---|---|
| Account # | Exemption Description | Amount |
|
R063742130 |
5% Capped Account |
0 |
| Property Deed Transaction History (Recorded in the County Clerk's Office) | ||||||||||
|---|---|---|---|---|---|---|---|---|---|---|
| Date | Type | Book | Page | Price | Grantor | Grantee | ||||
|
8/21/2015 |
|
Deeds |
$67,500 |
DAILY ROBIN L TRS LAYNE ROB REV TRUST |
CELESTIAL PROPERTIES LLC |
|||||
|
8/22/2011 |
|
Hmstd Off & |
$0 |
ROB LAYNE LLC |
DAILY ROBIN L TRS LAYNE ROB REV TRUST |
|||||
|
1/5/2007 |
|
Deeds |
$50,000 |
WEAKS MIKE & LINDA TRS WEAKS MIKE 1998 REV TRUST |
ROB LAYNE LLC |
|||||
|
8/18/1998 |
|
Historical |
$0 |
WEAKS MIKE & LINDA |
WEAKS MIKE & LINDA TRS |
|||||
|
5/16/1991 |
|
Historical |
$0 |
SHINN LELAH R |
WEAKS MIKE |
|||||
| Last Mailed Notice of Value (N.O.V.) Information/History | ||||||||
|---|---|---|---|---|---|---|---|---|
| Year | Date | Market Value | Taxable Market Value | Gross Assessed | Exemption | Net Assessed | ||
|
2026 |
02/23/2026 |
210,000 |
109,330 |
12,025 |
0 |
12,025 |
||
|
2025 |
02/14/2025 |
205,500 |
104,124 |
11,453 |
0 |
11,453 |
||
|
2024 |
02/13/2024 |
202,000 |
99,166 |
10,907 |
0 |
10,907 |
||
|
2023 |
02/14/2023 |
188,500 |
94,444 |
10,388 |
0 |
10,388 |
||
|
2022 |
03/15/2022 |
145,000 |
89,947 |
9,893 |
0 |
9,893 |
||
| Property Building Permit History | |||||||||||
|---|---|---|---|---|---|---|---|---|---|---|---|
| Issued | Permit # | Provided by | Bldg # | Description | Est Construction Cost | Status | |||||
| No Building Permit records returned. | |||||||||||
| Click button on building number to access detailed information: | ||||||
|---|---|---|---|---|---|---|
| Bldg # | Vacant/Improved Land | Bldg Description | Year Built | SqFt | # Stories | |
|
1 |
Improved |
Duplex One Story |
1924 |
1,578 |
1 Stories |
|