|
|
|
| Larry Stein Oklahoma County Assessor (405) 713-1200 - Public Access System |
|
|
|
|
|
|
| Real Property Display - Screen Produced 4/12/2026 12:50:59 PM | ||||
|---|---|---|---|---|
| Account: R063742310 | Type: Residential | Location: |
2309 NW 20TH ST |
|
| Building Name/Occupant: |
|
OKLAHOMA CITY |
||
| Owner Name 1: | HOLLAS CHELSIE NICOLE |
Parcel PIN#: |
2717-06-374-2310 |
|
| Owner Name 2: | 1/4 section #: |
2717 |
||
| Owner Name 3: | Parent Acct: |
|
||
| Billing Address: | 2309 NW 20TH ST | Tax District: |
|
|
| City, State, Zip | OKLAHOMA CITY, OK 73107 | School System: |
Oklahoma City #89 |
|
|
Country: (If noted) |
Land Size: |
0.1722 Acres |
||
|
Land Value: 32,625 |
|
|||
|
Sect 30-T12N-R3W Qtr NE |
AURORA ADDITION
Block
007
Lot
000
|
|||
| Full Legal Description: AURORA ADDITION 007 000 W50FT OF E156FT OF S 1/2 |
| Photo & Sketch (if available) | Comp Sales (ordered by relevancy) |
|
||||||||||||||||||
|
||||||||||||||||||||
| Value History (*The County Treasurer 405-713-1300 posts & collects actual tax amounts. Contact information HERE) | |||||||||||||
|---|---|---|---|---|---|---|---|---|---|---|---|---|---|
| Year | Market Value | Taxable Mkt Value | Gross Assessed | Exemption | Net Assessed | Millage | Est. Tax | Tax Savings | |||||
|
2026 |
167,500 |
163,759 |
18,012 |
1,000 |
17,012 |
122.90 |
$2,091 |
$173 |
|||||
|
2025 |
167,000 |
158,990 |
17,488 |
1,000 |
16,488 |
122.90 |
$2,026 |
$231 |
|||||
|
2024 |
164,500 |
154,360 |
16,979 |
1,000 |
15,979 |
123.89 |
$1,980 |
$262 |
|||||
|
2023 |
164,500 |
149,865 |
16,485 |
1,000 |
15,485 |
122.82 |
$1,902 |
$321 |
|||||
|
2022 |
145,500 |
145,500 |
16,005 |
0 |
16,005 |
117.63 |
$1,883 |
$0 |
|||||
| Property Account Status/Adjustments/Exemptions | ||
|---|---|---|
| Account # | Exemption Description | Amount |
|
R063742310 |
3% Cap Homestead |
0 |
|
R063742310 |
Homestead |
1,000 |
| Property Deed Transaction History (Recorded in the County Clerk's Office) | ||||||||||
|---|---|---|---|---|---|---|---|---|---|---|
| Date | Type | Book | Page | Price | Grantor | Grantee | ||||
|
7/12/2021 |
|
Deeds |
$147,000 |
CRAIG FAMILY REV TRUST |
HOLLAS CHELSIE NICOLE |
|||||
|
3/9/2018 |
|
Deeds |
$118,000 |
KNIGHT KATHRYN E |
CRAIG FAMILY REV TRUST |
|||||
|
12/16/2005 |
|
Deeds |
$82,500 |
NEIGHBORS LARRY MICHAEL |
KNIGHT KATHRYN E |
|||||
|
8/29/2001 |
|
Deeds |
$71,000 |
BOATMAN DEBORAH A |
NEIGHBORS LARRY MICHAEL |
|||||
|
6/30/2000 |
|
Deeds |
$67,000 |
PRUITT KENNETH R & RITA J |
BOATMAN DEBORAH A |
|||||
| Last Mailed Notice of Value (N.O.V.) Information/History | ||||||||
|---|---|---|---|---|---|---|---|---|
| Year | Date | Market Value | Taxable Market Value | Gross Assessed | Exemption | Net Assessed | ||
|
2026 |
02/23/2026 |
167,500 |
163,759 |
18,012 |
1,000 |
17,012 |
||
|
2025 |
02/14/2025 |
167,000 |
158,990 |
17,488 |
1,000 |
16,488 |
||
|
2024 |
02/13/2024 |
164,500 |
154,360 |
16,979 |
1,000 |
15,979 |
||
|
2023 |
02/14/2023 |
164,500 |
149,865 |
16,485 |
1,000 |
15,485 |
||
|
2022 |
03/15/2022 |
145,500 |
145,500 |
16,005 |
0 |
16,005 |
||
| Property Building Permit History | |||||||||||
|---|---|---|---|---|---|---|---|---|---|---|---|
| Issued | Permit # | Provided by | Bldg # | Description | Est Construction Cost | Status | |||||
| No Building Permit records returned. | |||||||||||
| Click button on building number to access detailed information: | ||||||
|---|---|---|---|---|---|---|
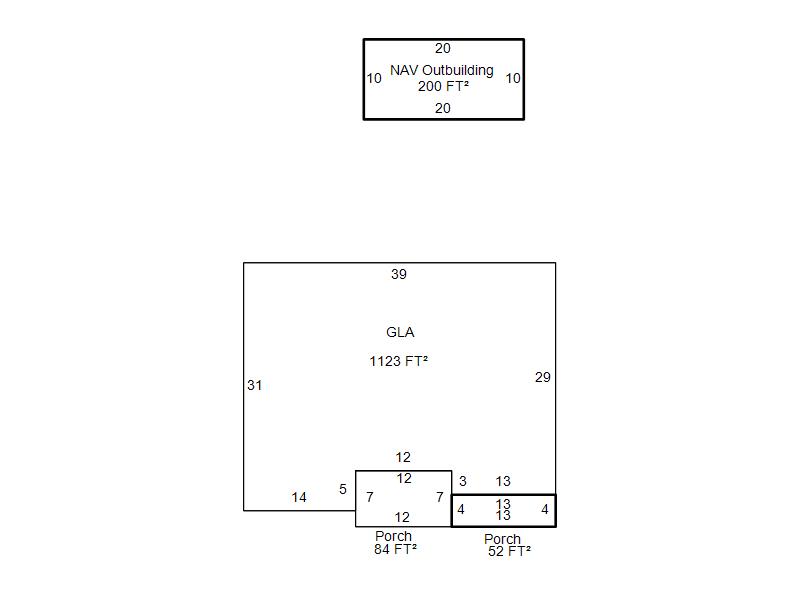
| Bldg # | Vacant/Improved Land | Bldg Description | Year Built | SqFt | # Stories | |
|
1 |
Improved |
Ranch 1 Story |
1932 |
1,123 |
1 Stories |
|