|
|
|
| Larry Stein Oklahoma County Assessor (405) 713-1200 - Public Access System |
|
|
|
|
|
|
| Real Property Display - Screen Produced 4/12/2026 12:52:20 PM | ||||
|---|---|---|---|---|
| Account: R063742850 | Type: Residential | Location: |
2355 NW 20TH ST |
|
| Building Name/Occupant: |
|
OKLAHOMA CITY |
||
| Owner Name 1: | GRAMAJO MAINOR MOISES |
Parcel PIN#: |
2717-06-374-2850 |
|
| Owner Name 2: | 1/4 section #: |
2717 |
||
| Owner Name 3: | Parent Acct: |
|
||
| Billing Address: | 2249 NW 21ST ST | Tax District: |
|
|
| City, State, Zip | OKLAHOMA CITY, OK 73107 | School System: |
Oklahoma City #89 |
|
|
Country: (If noted) |
Land Size: |
0.1148 Acres |
||
|
Land Value: 21,750 |
|
|||
|
Sect 30-T12N-R3W Qtr NE |
AURORA ADDITION
Block
008
Lot
000
|
|||
| Full Legal Description: AURORA ADDITION 008 000 W50FT OF S100FT OF SW4 |
| Photo & Sketch (if available) | Comp Sales (ordered by relevancy) |
|
||||||||||||||||||
|
||||||||||||||||||||
| Value History (*The County Treasurer 405-713-1300 posts & collects actual tax amounts. Contact information HERE) | |||||||||||||
|---|---|---|---|---|---|---|---|---|---|---|---|---|---|
| Year | Market Value | Taxable Mkt Value | Gross Assessed | Exemption | Net Assessed | Millage | Est. Tax | Tax Savings | |||||
|
2026 |
151,500 |
110,828 |
12,190 |
0 |
12,190 |
122.90 |
$1,498 |
$550 |
|||||
|
2025 |
148,000 |
105,551 |
11,609 |
0 |
11,609 |
122.90 |
$1,427 |
$574 |
|||||
|
2024 |
143,000 |
100,525 |
11,057 |
0 |
11,057 |
123.89 |
$1,370 |
$579 |
|||||
|
2023 |
141,500 |
95,739 |
10,530 |
0 |
10,530 |
122.82 |
$1,293 |
$618 |
|||||
|
2022 |
110,000 |
91,180 |
10,028 |
0 |
10,028 |
117.63 |
$1,180 |
$244 |
|||||
| Property Account Status/Adjustments/Exemptions | ||||||
|---|---|---|---|---|---|---|
| Account # | Exemption Description | Amount | ||||
| No adjustment/exemption records returned. | ||||||
| Property Deed Transaction History (Recorded in the County Clerk's Office) | |||||||
|---|---|---|---|---|---|---|---|
| Date | Type | Book | Page | Price | Grantor | Grantee | |
|
1/18/2023 |
|
Hmstd Off & |
$0 |
GRAMAJO MOISES V |
GRAMAJO MAINOR MOISES |
||
|
3/2/2022 |
|
Hmstd Off & |
$0 |
PEREZ TIMOTEA M |
GRAMAJO MOISES V |
||
|
7/26/2001 |
|
Deeds |
$40,000 |
BRADLEY BOB & SHIRLEY A CO TRS BRADLEY FAMILY TRUST |
PEREZ TIMOTEA M |
||
|
2/4/1998 |
|
Historical |
$0 |
BRADLEY ROBERT O & SHIRLEY A |
BRADLEY BOB & SHIRLEY A CO TRS |
||
|
2/1/1985 |
|
Historical |
$33,000 |
|
BRADLEY ROBERT O & SHIRLEY A |
||
| Last Mailed Notice of Value (N.O.V.) Information/History | ||||||||
|---|---|---|---|---|---|---|---|---|
| Year | Date | Market Value | Taxable Market Value | Gross Assessed | Exemption | Net Assessed | ||
|
2026 |
02/23/2026 |
151,500 |
110,828 |
12,190 |
0 |
12,190 |
||
|
2025 |
02/14/2025 |
148,000 |
105,551 |
11,609 |
0 |
11,609 |
||
|
2024 |
02/13/2024 |
143,000 |
100,525 |
11,057 |
0 |
11,057 |
||
|
2023 |
02/14/2023 |
141,500 |
95,739 |
10,530 |
0 |
10,530 |
||
|
2022 |
03/15/2022 |
110,000 |
91,180 |
10,028 |
0 |
10,028 |
||
| Property Building Permit History | |||||||||||
|---|---|---|---|---|---|---|---|---|---|---|---|
| Issued | Permit # | Provided by | Bldg # | Description | Est Construction Cost | Status | |||||
| No Building Permit records returned. | |||||||||||
| Click button on building number to access detailed information: | ||||||
|---|---|---|---|---|---|---|
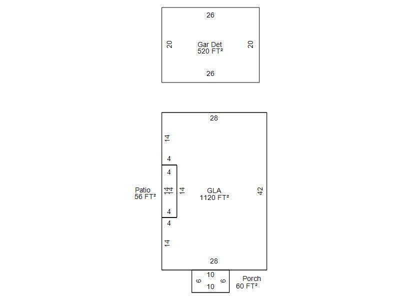
| Bldg # | Vacant/Improved Land | Bldg Description | Year Built | SqFt | # Stories | |
|
1 |
Improved |
Ranch 1 Story |
1927 |
1,120 |
1 Stories |
|