|
|
|
| Larry Stein Oklahoma County Assessor (405) 713-1200 - Public Access System |
|
|
|
|
|
|
| Real Property Display - Screen Produced 4/12/2026 12:50:54 PM | ||||
|---|---|---|---|---|
| Account: R063743180 | Type: Residential | Location: |
2432 NW 21ST ST |
|
| Building Name/Occupant: |
|
OKLAHOMA CITY |
||
| Owner Name 1: | AANV LLC |
Parcel PIN#: |
2717-06-374-3180 |
|
| Owner Name 2: | 1/4 section #: |
2717 |
||
| Owner Name 3: | Parent Acct: |
|
||
| Billing Address: | 4609 BRIAR FOREST CT | Tax District: |
|
|
| City, State, Zip | EDMOND, OK 73025 | School System: |
Oklahoma City #89 |
|
|
Country: (If noted) |
Land Size: |
0.1575 Acres |
||
|
Land Value: 29,841 |
|
|||
|
Sect 30-T12N-R3W Qtr NE |
AURORA ADDITION
Block
009
Lot
000
|
|||
| Full Legal Description: AURORA ADDITION 009 000 LOTS 17 & 18 |
| Photo & Sketch (if available) | Comp Sales (ordered by relevancy) |
|
||||||||||||||||||
|
||||||||||||||||||||
| Value History (*The County Treasurer 405-713-1300 posts & collects actual tax amounts. Contact information HERE) | |||||||||||||
|---|---|---|---|---|---|---|---|---|---|---|---|---|---|
| Year | Market Value | Taxable Mkt Value | Gross Assessed | Exemption | Net Assessed | Millage | Est. Tax | Tax Savings | |||||
|
2026 |
300,000 |
179,019 |
19,691 |
0 |
19,691 |
122.90 |
$2,420 |
$1,636 |
|||||
|
2025 |
299,500 |
170,495 |
18,754 |
0 |
18,754 |
122.90 |
$2,305 |
$1,744 |
|||||
|
2024 |
294,000 |
162,377 |
17,860 |
0 |
17,860 |
123.89 |
$2,213 |
$1,794 |
|||||
|
2023 |
282,000 |
154,645 |
17,010 |
0 |
17,010 |
122.82 |
$2,089 |
$1,721 |
|||||
|
2022 |
229,000 |
147,281 |
16,199 |
0 |
16,199 |
117.63 |
$1,906 |
$1,057 |
|||||
| Property Account Status/Adjustments/Exemptions | ||
|---|---|---|
| Account # | Exemption Description | Amount |
|
R063743180 |
5% Capped Account |
0 |
| Property Deed Transaction History (Recorded in the County Clerk's Office) | ||||||||||
|---|---|---|---|---|---|---|---|---|---|---|
| Date | Type | Book | Page | Price | Grantor | Grantee | ||||
|
3/25/2019 |
|
Hmstd Off & |
$0 |
DEHAGHANI MAHIN KHODAYAR |
AANV LLC |
|||||
|
12/14/2004 |
|
Deeds |
$102,000 |
MEIGS DERECK |
DEHAGHANI MAHIN KHODAYAR |
|||||
|
12/13/2004 |
|
Deeds |
$0 |
HAUBRICH JOHN D |
MEIGS DERECK |
|||||
|
6/17/2002 |
|
Deeds |
$56,500 |
HAUBRICH JOHN D |
MEIGS DERECK |
|||||
|
10/31/2000 |
|
Deeds |
$0 |
LOVELESS WALTER W LOVELESS LYNN |
LOVELESS LYNN LOVELESS PEGGY A |
|||||
| Last Mailed Notice of Value (N.O.V.) Information/History | ||||||||
|---|---|---|---|---|---|---|---|---|
| Year | Date | Market Value | Taxable Market Value | Gross Assessed | Exemption | Net Assessed | ||
|
2026 |
02/23/2026 |
300,000 |
179,019 |
19,691 |
0 |
19,691 |
||
|
2025 |
02/14/2025 |
299,500 |
170,495 |
18,754 |
0 |
18,754 |
||
|
2024 |
02/13/2024 |
294,000 |
162,377 |
17,860 |
0 |
17,860 |
||
|
2023 |
02/14/2023 |
282,000 |
154,645 |
17,010 |
0 |
17,010 |
||
|
2022 |
03/15/2022 |
229,000 |
147,281 |
16,199 |
0 |
16,199 |
||
| Property Building Permit History | |||||||||||
|---|---|---|---|---|---|---|---|---|---|---|---|
| Issued | Permit # | Provided by | Bldg # | Description | Est Construction Cost | Status | |||||
| No Building Permit records returned. | |||||||||||
| Click button on building number to access detailed information: | ||||||
|---|---|---|---|---|---|---|
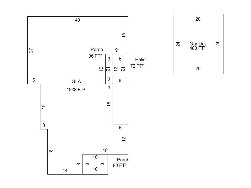
| Bldg # | Vacant/Improved Land | Bldg Description | Year Built | SqFt | # Stories | |
|
1 |
Improved |
Duplex One Story |
1929 |
1,938 |
1 Stories |
|