|
|
|
| Larry Stein Oklahoma County Assessor (405) 713-1200 - Public Access System |
|
|
|
|
|
|
| Real Property Display - Screen Produced 4/12/2026 5:00:58 PM | ||||
|---|---|---|---|---|
| Account: R063984500 | Type: Residential | Location: |
2209 NW 22ND ST |
|
| Building Name/Occupant: |
|
OKLAHOMA CITY |
||
| Owner Name 1: | WOODY LINDA R TRS |
Parcel PIN#: |
2717-06-398-4500 |
|
| Owner Name 2: | WOODY LINDA R ROWLAND TRUST | 1/4 section #: |
2717 |
|
| Owner Name 3: | Parent Acct: |
|
||
| Billing Address: | 2209 NW 22ND ST | Tax District: |
|
|
| City, State, Zip | OKLAHOMA CITY, OK 73107-3519 | School System: |
Oklahoma City #89 |
|
|
Country: (If noted) |
Land Size: |
0.1722 Acres |
||
|
Land Value: 32,625 |
|
|||
|
Sect 30-T12N-R3W Qtr NE |
LAS VEGAS AMENDED
Block
002
Lot
012
|
|||
| Full Legal Description: LAS VEGAS AMENDED 002 012 |
| Photo & Sketch (if available) | Comp Sales (ordered by relevancy) |
|
||||||||||||||||||
|
||||||||||||||||||||
| Value History (*The County Treasurer 405-713-1300 posts & collects actual tax amounts. Contact information HERE) | |||||||||||||
|---|---|---|---|---|---|---|---|---|---|---|---|---|---|
| Year | Market Value | Taxable Mkt Value | Gross Assessed | Exemption | Net Assessed | Millage | Est. Tax | Tax Savings | |||||
|
2026 |
166,500 |
84,352 |
9,278 |
1,000 |
8,278 |
122.90 |
$1,017 |
$1,233 |
|||||
|
2025 |
162,500 |
84,352 |
9,278 |
1,000 |
8,278 |
122.90 |
$1,017 |
$1,179 |
|||||
|
2024 |
160,000 |
84,352 |
9,278 |
1,000 |
8,278 |
123.89 |
$1,026 |
$1,155 |
|||||
|
2023 |
159,500 |
84,352 |
9,278 |
1,000 |
8,278 |
122.82 |
$1,017 |
$1,138 |
|||||
|
2022 |
126,500 |
84,352 |
9,278 |
1,000 |
8,278 |
117.63 |
$974 |
$663 |
|||||
| Property Account Status/Adjustments/Exemptions | ||
|---|---|---|
| Account # | Exemption Description | Amount |
|
R063984500 |
3% Cap Homestead |
0 |
|
R063984500 |
Freeze Senior Valuation |
0 |
|
R063984500 |
Homestead |
1,000 |
| Property Deed Transaction History (Recorded in the County Clerk's Office) | ||||||||||
|---|---|---|---|---|---|---|---|---|---|---|
| Date | Type | Book | Page | Price | Grantor | Grantee | ||||
|
6/12/2018 |
|
Deeds |
$0 |
WOODY LINDA ROWLAND |
WOODY LINDA R TRS |
|||||
|
10/28/2011 |
|
Deeds |
$88,000 |
WOODY DAVID E II |
WOODY LINDA ROWLAND |
|||||
|
7/23/1999 |
|
Deeds |
$43,500 |
FLORA PATRICIA ANN |
WOODY DAVID E II |
|||||
|
7/13/1999 |
|
Deeds |
$0 |
FLORA PATRICIA ANN |
FLORA PATRICIA ANN |
|||||
|
8/2/1994 |
|
Historical |
$26,500 |
GROTEFEND RICHARD & MARIANNA C |
FLORA PATRICIA ANN |
|||||
| Last Mailed Notice of Value (N.O.V.) Information/History | ||||||||
|---|---|---|---|---|---|---|---|---|
| Year | Date | Market Value | Taxable Market Value | Gross Assessed | Exemption | Net Assessed | ||
|
2026 |
02/23/2026 |
166,500 |
84,352 |
9,278 |
1,000 |
8,278 |
||
|
2025 |
02/14/2025 |
162,500 |
84,352 |
9,278 |
1,000 |
8,278 |
||
|
2024 |
02/13/2024 |
160,000 |
84,352 |
9,278 |
1,000 |
8,278 |
||
|
2023 |
02/14/2023 |
159,500 |
84,352 |
9,278 |
1,000 |
8,278 |
||
|
2022 |
03/15/2022 |
126,500 |
84,352 |
9,278 |
1,000 |
8,278 |
||
| Property Building Permit History | |||||||||||
|---|---|---|---|---|---|---|---|---|---|---|---|
| Issued | Permit # | Provided by | Bldg # | Description | Est Construction Cost | Status | |||||
| No Building Permit records returned. | |||||||||||
| Click button on building number to access detailed information: | ||||||
|---|---|---|---|---|---|---|
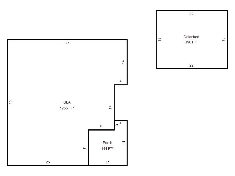
| Bldg # | Vacant/Improved Land | Bldg Description | Year Built | SqFt | # Stories | |
|
1 |
Improved |
Ranch 1 Story |
1926 |
1,255 |
1 Stories |
|