|
|
|
| Larry Stein Oklahoma County Assessor (405) 713-1200 - Public Access System |
|
|
|
|
|
|
| Real Property Display - Screen Produced 4/12/2026 5:00:57 PM | ||||
|---|---|---|---|---|
| Account: R063987050 | Type: Residential | Location: |
2249 NW 22ND ST |
|
| Building Name/Occupant: |
|
OKLAHOMA CITY |
||
| Owner Name 1: | BOLVIN BYRON |
Parcel PIN#: |
2717-06-398-7050 |
|
| Owner Name 2: | 1/4 section #: |
2717 |
||
| Owner Name 3: | Parent Acct: |
|
||
| Billing Address: | PO BOX 5582 | Tax District: |
|
|
| City, State, Zip | EDMOND, OK 73083 | School System: |
Oklahoma City #89 |
|
|
Country: (If noted) |
Land Size: |
0.1963 Acres |
||
|
Land Value: 37,193 |
|
|||
|
Sect 30-T12N-R3W Qtr NE |
LAS VEGAS AMENDED
Block
003
Lot
009
|
|||
| Full Legal Description: LAS VEGAS AMENDED 003 009 |
| No comparable sales report available. | ||||||||||||||||||||||
|
||||||||||||||||||||||
| Value History (*The County Treasurer 405-713-1300 posts & collects actual tax amounts. Contact information HERE) | |||||||||||||
|---|---|---|---|---|---|---|---|---|---|---|---|---|---|
| Year | Market Value | Taxable Mkt Value | Gross Assessed | Exemption | Net Assessed | Millage | Est. Tax | Tax Savings | |||||
|
2026 |
273,198 |
183,661 |
20,202 |
0 |
20,202 |
122.90 |
$2,483 |
$1,210 |
|||||
|
2025 |
261,649 |
174,916 |
19,240 |
0 |
19,240 |
122.90 |
$2,365 |
$1,173 |
|||||
|
2024 |
246,708 |
166,587 |
18,324 |
0 |
18,324 |
123.89 |
$2,270 |
$1,092 |
|||||
|
2023 |
209,007 |
158,655 |
17,452 |
0 |
17,452 |
122.82 |
$2,143 |
$680 |
|||||
|
2022 |
205,041 |
151,100 |
16,619 |
0 |
16,619 |
117.63 |
$1,955 |
$698 |
|||||
| Property Account Status/Adjustments/Exemptions | ||
|---|---|---|
| Account # | Exemption Description | Amount |
|
R063987050 |
5% Capped Account |
0 |
| Property Deed Transaction History (Recorded in the County Clerk's Office) | |||||||
|---|---|---|---|---|---|---|---|
| Date | Type | Book | Page | Price | Grantor | Grantee | |
|
11/6/2024 |
|
Hmstd Off & |
$0 |
BOLVIN BYRON & JANA |
BOLVIN BYRON |
||
|
1/27/1998 |
|
Historical |
$29,500 |
WOMACK CHARLES E & BERNICE L |
BOLVIN BYRON & JANA |
||
|
12/1/1986 |
|
Historical |
$0 |
STONE FRANCES M |
WOMACK CHARLES E & BERNICE L |
||
|
11/1/1983 |
|
Historical |
$0 |
|
STONE FRANCES M |
||
| Last Mailed Notice of Value (N.O.V.) Information/History | ||||||||
|---|---|---|---|---|---|---|---|---|
| Year | Date | Market Value | Taxable Market Value | Gross Assessed | Exemption | Net Assessed | ||
|
2026 |
02/23/2026 |
273,198 |
183,661 |
20,202 |
0 |
20,202 |
||
|
2025 |
02/14/2025 |
261,649 |
174,916 |
19,240 |
0 |
19,240 |
||
|
2024 |
02/13/2024 |
246,708 |
166,587 |
18,324 |
0 |
18,324 |
||
|
2023 |
02/14/2023 |
209,007 |
158,655 |
17,452 |
0 |
17,452 |
||
|
2022 |
03/15/2022 |
205,041 |
151,100 |
16,619 |
0 |
16,619 |
||
| Property Building Permit History | ||||||
|---|---|---|---|---|---|---|
| Issued | Permit # | Provided by | Bldg # | Description | Est Construction Cost | Status |
|
11/30/1994 |
10193988 |
OKLAHOMA CITY |
1 |
Fire Remodel |
8,000 |
Inactive |
| Click button on building number to access detailed information: | ||||||
|---|---|---|---|---|---|---|
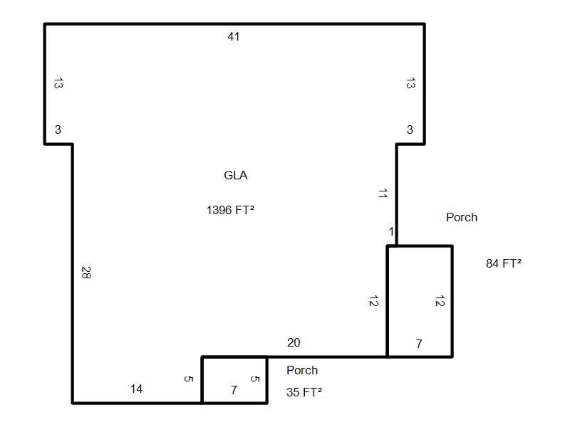
| Bldg # | Vacant/Improved Land | Bldg Description | Year Built | SqFt | # Stories | |
|
1 |
Improved |
Duplex One Story |
1927 |
1,396 |
1 Stories |
|
|
2 |
Improved |
1½ Story Fin |
1939 |
975 |
1.5 Stories |
|