|
|
|
| Larry Stein Oklahoma County Assessor (405) 713-1200 - Public Access System |
|
|
|
|
|
|
| Real Property Display - Screen Produced 4/15/2026 4:33:47 AM | ||||
|---|---|---|---|---|
| Account: R064061960 | Type: Residential | Location: |
2124 NW 21ST ST |
|
| Building Name/Occupant: |
|
OKLAHOMA CITY |
||
| Owner Name 1: | BUNDRICK JILLIAN KATHLEEN |
Parcel PIN#: |
2717-06-406-1960 |
|
| Owner Name 2: | BUNDRICK NELSON S | 1/4 section #: |
2717 |
|
| Owner Name 3: | Parent Acct: |
|
||
| Billing Address: | 2124 NW 21ST ST | Tax District: |
|
|
| City, State, Zip | OKLAHOMA CITY, OK 73107-3514 | School System: |
Oklahoma City #89 |
|
|
Country: (If noted) |
Land Size: |
0.2583 Acres |
||
|
Land Value: 48,938 |
|
|||
|
Sect 30-T12N-R3W Qtr NE |
LAS VEGAS ADDITION
Block
007
Lot
005
|
|||
| Full Legal Description: LAS VEGAS ADDITION 007 005 |
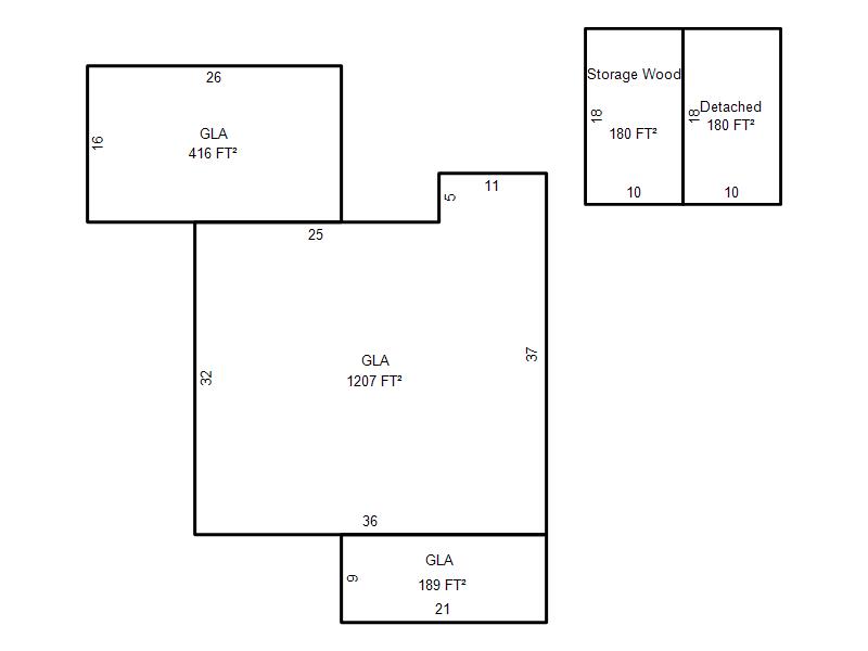
| Photo & Sketch (if available) | Comp Sales (ordered by relevancy) |
|
||||||||||||||||||
|
||||||||||||||||||||
| Value History (*The County Treasurer 405-713-1300 posts & collects actual tax amounts. Contact information HERE) | |||||||||||||
|---|---|---|---|---|---|---|---|---|---|---|---|---|---|
| Year | Market Value | Taxable Mkt Value | Gross Assessed | Exemption | Net Assessed | Millage | Est. Tax | Tax Savings | |||||
|
2026 |
243,500 |
193,087 |
21,239 |
1,000 |
20,239 |
122.90 |
$2,487 |
$804 |
|||||
|
2025 |
250,000 |
187,464 |
20,620 |
1,000 |
19,620 |
122.90 |
$2,411 |
$968 |
|||||
|
2024 |
251,000 |
182,004 |
20,020 |
1,000 |
19,020 |
123.89 |
$2,356 |
$1,064 |
|||||
|
2023 |
243,500 |
176,703 |
19,437 |
1,000 |
18,437 |
122.82 |
$2,264 |
$1,025 |
|||||
|
2022 |
194,500 |
171,557 |
18,870 |
1,000 |
17,870 |
117.63 |
$2,102 |
$414 |
|||||
| Property Account Status/Adjustments/Exemptions | ||
|---|---|---|
| Account # | Exemption Description | Amount |
|
R064061960 |
3% Cap Homestead |
0 |
|
R064061960 |
Homestead |
1,000 |
| Property Deed Transaction History (Recorded in the County Clerk's Office) | ||||||||||
|---|---|---|---|---|---|---|---|---|---|---|
| Date | Type | Book | Page | Price | Grantor | Grantee | ||||
|
1/11/2017 |
|
Deeds |
$150,500 |
CONAWAY JASON M |
BUNDRICK JILLIAN KATHLEEN |
|||||
|
9/16/2005 |
|
Deeds |
$91,500 |
HELPING HANDS COMMUNICATION INC DBA NICHOLAS ROBERT CORP |
CONAWAY JASON M |
|||||
|
2/8/2005 |
|
Deeds |
$55,000 |
OWINY BENSON |
HELPING HANDS COMMUNICATION INC DBA NICHOLAS ROBERT CORP |
|||||
|
1/29/2002 |
|
Deeds |
$43,000 |
COUNTRYWIDE HOMES LOANS INC DBA AMERICAS WHOLESALE LENDER |
OWINY BENSON |
|||||
|
8/28/2001 |
|
Hmstd Off & |
$0 |
BEAN ROBERT C & STACEY R |
COUNTRYWIDE HOMES LOANS INC DBA AMERICAS WHOLESALE LENDER |
|||||
| Last Mailed Notice of Value (N.O.V.) Information/History | ||||||||
|---|---|---|---|---|---|---|---|---|
| Year | Date | Market Value | Taxable Market Value | Gross Assessed | Exemption | Net Assessed | ||
|
2026 |
02/23/2026 |
243,500 |
193,087 |
21,239 |
1,000 |
20,239 |
||
|
2025 |
02/14/2025 |
250,000 |
187,464 |
20,620 |
1,000 |
19,620 |
||
|
2024 |
02/13/2024 |
251,000 |
182,004 |
20,020 |
1,000 |
19,020 |
||
|
2023 |
02/14/2023 |
243,500 |
176,703 |
19,437 |
1,000 |
18,437 |
||
|
2022 |
03/15/2022 |
194,500 |
171,557 |
18,870 |
1,000 |
17,870 |
||
| Property Building Permit History | ||||||
|---|---|---|---|---|---|---|
| Issued | Permit # | Provided by | Bldg # | Description | Est Construction Cost | Status |
|
8/23/2001 |
10194001 |
OKLAHOMA CITY |
1 |
Demolish |
0 |
Inactive |
| Click button on building number to access detailed information: | ||||||
|---|---|---|---|---|---|---|
| Bldg # | Vacant/Improved Land | Bldg Description | Year Built | SqFt | # Stories | |
|
1 |
Improved |
Ranch 1 Story |
1923 |
1,812 |
1 Stories |
|