|
|
|
| Larry Stein Oklahoma County Assessor (405) 713-1200 - Public Access System |
|
|
|
|
|
|
| Real Property Display - Screen Produced 4/15/2026 4:26:01 AM | ||||
|---|---|---|---|---|
| Account: R064062200 | Type: Residential | Location: |
2201 NW 20TH ST |
|
| Building Name/Occupant: |
|
OKLAHOMA CITY |
||
| Owner Name 1: | MITTON RICHARD EUGENE II & CARA LISA |
Parcel PIN#: |
2717-06-406-2200 |
|
| Owner Name 2: | 1/4 section #: |
2717 |
||
| Owner Name 3: | Parent Acct: |
|
||
| Billing Address: | 2201 NW 20TH ST | Tax District: |
|
|
| City, State, Zip | OKLAHOMA CITY, OK 73107 | School System: |
Oklahoma City #89 |
|
|
Country: (If noted) |
Land Size: |
0.2583 Acres |
||
|
Land Value: 48,938 |
|
|||
|
Sect 30-T12N-R3W Qtr NE |
LAS VEGAS ADDITION
Block
008
Lot
012
|
|||
| Full Legal Description: LAS VEGAS ADDITION 008 012 |
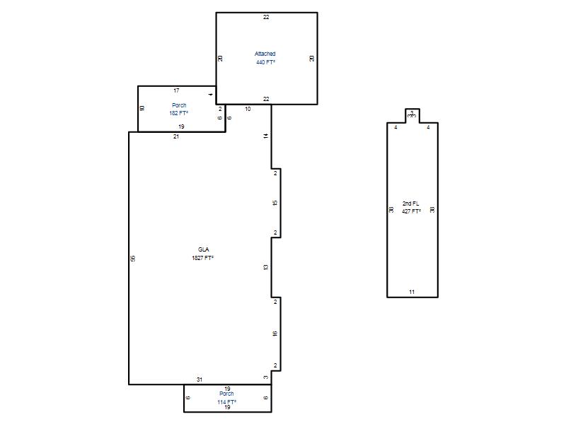
| Photo & Sketch (if available) | Comp Sales (ordered by relevancy) |
|
||||||||||||||||||
|
||||||||||||||||||||
| Value History (*The County Treasurer 405-713-1300 posts & collects actual tax amounts. Contact information HERE) | |||||||||||||
|---|---|---|---|---|---|---|---|---|---|---|---|---|---|
| Year | Market Value | Taxable Mkt Value | Gross Assessed | Exemption | Net Assessed | Millage | Est. Tax | Tax Savings | |||||
|
2026 |
439,500 |
354,718 |
39,018 |
1,000 |
38,018 |
122.90 |
$4,673 |
$1,269 |
|||||
|
2025 |
436,000 |
344,387 |
37,882 |
1,000 |
36,882 |
122.90 |
$4,533 |
$1,361 |
|||||
|
2024 |
488,500 |
334,357 |
36,779 |
1,000 |
35,779 |
123.89 |
$4,433 |
$2,225 |
|||||
|
2023 |
460,000 |
324,619 |
35,708 |
1,000 |
34,708 |
122.82 |
$4,263 |
$1,952 |
|||||
|
2022 |
386,000 |
315,165 |
34,667 |
1,000 |
33,667 |
117.63 |
$3,960 |
$1,034 |
|||||
| Property Account Status/Adjustments/Exemptions | ||
|---|---|---|
| Account # | Exemption Description | Amount |
|
R064062200 |
3% Cap Homestead |
0 |
|
R064062200 |
Homestead |
1,000 |
| Property Deed Transaction History (Recorded in the County Clerk's Office) | |||||||
|---|---|---|---|---|---|---|---|
| Date | Type | Book | Page | Price | Grantor | Grantee | |
|
10/11/2018 |
|
Deeds |
$0 |
MITTON RICHARD EUGENE II |
MITTON RICHARD EUGENE II & CARA LISA |
||
|
9/14/2017 |
|
Deeds |
$17,000 |
BURKHEAD THOMAS ANTHONY |
MITTON RICHARD EUGENE II |
||
|
6/22/1988 |
|
Historical |
$49,000 |
KIRK LARRY THOMAS |
BURKHEAD THOMAS ANTHONY |
||
|
12/1/1980 |
|
Historical |
$0 |
|
KIRK LARRY THOMAS |
||
| Last Mailed Notice of Value (N.O.V.) Information/History | ||||||||
|---|---|---|---|---|---|---|---|---|
| Year | Date | Market Value | Taxable Market Value | Gross Assessed | Exemption | Net Assessed | ||
|
2026 |
02/23/2026 |
439,500 |
354,718 |
39,018 |
1,000 |
38,018 |
||
|
2025 |
02/14/2025 |
436,000 |
344,387 |
37,882 |
1,000 |
36,882 |
||
|
2024 |
02/13/2024 |
488,500 |
334,357 |
36,779 |
1,000 |
35,779 |
||
|
2023 |
02/14/2023 |
460,000 |
324,619 |
35,708 |
1,000 |
34,708 |
||
|
2022 |
03/15/2022 |
386,000 |
315,165 |
34,667 |
1,000 |
33,667 |
||
| Property Building Permit History | ||||||
|---|---|---|---|---|---|---|
| Issued | Permit # | Provided by | Bldg # | Description | Est Construction Cost | Status |
|
3/28/2018 |
|
|
|
Main Dwellin |
265,000 |
Inactive |
|
2/27/2018 |
|
|
|
Demolish |
|
Inactive |
| Click button on building number to access detailed information: | ||||||
|---|---|---|---|---|---|---|
| Bldg # | Vacant/Improved Land | Bldg Description | Year Built | SqFt | # Stories | |
|
1 |
Improved |
1½ Story Fin |
2018 |
2,254 |
1.5 Stories |
|