|
|
|
| Larry Stein Oklahoma County Assessor (405) 713-1200 - Public Access System |
|
|
|
|
|
|
| Real Property Display - Screen Produced 4/12/2026 6:21:29 PM | ||||
|---|---|---|---|---|
| Account: R064065400 | Type: Residential | Location: |
2207 NW 18TH ST |
|
| Building Name/Occupant: |
|
OKLAHOMA CITY |
||
| Owner Name 1: | DW ACQUISITIONS LLC |
Parcel PIN#: |
2717-06-406-5400 |
|
| Owner Name 2: | 1/4 section #: |
2717 |
||
| Owner Name 3: | Parent Acct: |
|
||
| Billing Address: | 2207 NW 18TH ST | Tax District: |
|
|
| City, State, Zip | OKLAHOMA CITY, OK 73107-4022 | School System: |
Oklahoma City #89 |
|
|
Country: (If noted) |
Land Size: |
0.2583 Acres |
||
|
Land Value: 48,938 |
|
|||
|
Sect 30-T12N-R3W Qtr NE |
LAS VEGAS ADDITION
Block
014
Lot
011
|
|||
| Full Legal Description: LAS VEGAS ADDITION 014 011 |
| Photo & Sketch (if available) | Comp Sales (ordered by relevancy) |
|
||||||||||||||||||
|
||||||||||||||||||||
| Value History (*The County Treasurer 405-713-1300 posts & collects actual tax amounts. Contact information HERE) | |||||||||||||
|---|---|---|---|---|---|---|---|---|---|---|---|---|---|
| Year | Market Value | Taxable Mkt Value | Gross Assessed | Exemption | Net Assessed | Millage | Est. Tax | Tax Savings | |||||
|
2026 |
329,000 |
329,000 |
36,190 |
0 |
36,190 |
122.90 |
$4,448 |
$0 |
|||||
|
2025 |
325,000 |
325,000 |
35,750 |
0 |
35,750 |
122.90 |
$4,394 |
$0 |
|||||
|
2024 |
402,889 |
402,889 |
44,317 |
0 |
44,317 |
123.89 |
$5,491 |
$0 |
|||||
|
2023 |
354,061 |
258,185 |
28,400 |
1,000 |
27,400 |
122.82 |
$3,365 |
$1,418 |
|||||
|
2022 |
350,571 |
250,666 |
27,572 |
1,000 |
26,572 |
117.63 |
$3,126 |
$1,410 |
|||||
| Property Account Status/Adjustments/Exemptions | ||
|---|---|---|
| Account # | Exemption Description | Amount |
|
R064065400 |
5% Capped Account |
0 |
| Property Deed Transaction History (Recorded in the County Clerk's Office) | ||||||||||
|---|---|---|---|---|---|---|---|---|---|---|
| Date | Type | Book | Page | Price | Grantor | Grantee | ||||
|
11/6/2024 |
|
Hmstd Off & |
$0 |
LARSEN ALAN |
DW ACQUISITIONS LLC |
|||||
|
10/11/2024 |
|
Hmstd Off & |
$0 |
DW ACQUISITIONS LLC |
LARSEN ALAN |
|||||
|
4/6/2023 |
|
Deeds |
$175,000 |
MARTIN KIMBERLI A & TIMOTHY G |
DW ACQUISITIONS LLC |
|||||
|
7/18/2003 |
|
Deeds |
$139,000 |
CLEVELAND DERRICK W |
MARTIN KIMBERLI A & TIMOTHY G |
|||||
|
6/30/2000 |
|
Deeds |
$129,000 |
VANN CONNIE JEAN |
CLEVELAND DERRICK W |
|||||
| Last Mailed Notice of Value (N.O.V.) Information/History | ||||||||
|---|---|---|---|---|---|---|---|---|
| Year | Date | Market Value | Taxable Market Value | Gross Assessed | Exemption | Net Assessed | ||
|
2026 |
03/30/2026 |
329,000 |
329,000 |
36,190 |
0 |
36,190 |
||
|
2024 |
02/13/2024 |
402,889 |
402,889 |
44,317 |
0 |
44,317 |
||
|
2023 |
02/14/2023 |
354,061 |
258,185 |
28,400 |
1,000 |
27,400 |
||
|
2022 |
03/15/2022 |
350,571 |
250,666 |
27,572 |
1,000 |
26,572 |
||
|
2021 |
03/19/2021 |
289,457 |
243,366 |
26,770 |
1,000 |
25,770 |
||
| Property Building Permit History | |||||||||||
|---|---|---|---|---|---|---|---|---|---|---|---|
| Issued | Permit # | Provided by | Bldg # | Description | Est Construction Cost | Status | |||||
| No Building Permit records returned. | |||||||||||
| Click button on building number to access detailed information: | ||||||
|---|---|---|---|---|---|---|
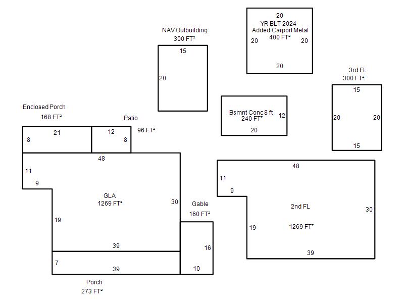
| Bldg # | Vacant/Improved Land | Bldg Description | Year Built | SqFt | # Stories | |
|
1 |
Improved |
2½ Story |
1915 |
2,838 |
2.5 Stories |
|