|
|
|
| Larry Stein Oklahoma County Assessor (405) 713-1200 - Public Access System |
|
|
|
|
|
|
| Real Property Display - Screen Produced 4/15/2026 4:38:31 AM | ||||
|---|---|---|---|---|
| Account: R064066900 | Type: Residential | Location: |
2100 NW 18TH ST |
|
| Building Name/Occupant: |
|
OKLAHOMA CITY |
||
| Owner Name 1: | HENDERSON JEFFREY E & ANGLEA K |
Parcel PIN#: |
2717-06-406-6900 |
|
| Owner Name 2: | 1/4 section #: |
2717 |
||
| Owner Name 3: | Parent Acct: |
|
||
| Billing Address: | 2100 NW 18TH ST | Tax District: |
|
|
| City, State, Zip | OKLAHOMA CITY, OK 73107-4021 | School System: |
Oklahoma City #89 |
|
|
Country: (If noted) |
Land Size: |
0.2583 Acres |
||
|
Land Value: 48,938 |
|
|||
|
Sect 30-T12N-R3W Qtr NE |
LAS VEGAS ADDITION
Block
018
Lot
001
|
|||
| Full Legal Description: LAS VEGAS ADDITION 018 001 |
| Photo & Sketch (if available) | Comp Sales (ordered by relevancy) |
|
||||||||||||||||||
|
||||||||||||||||||||
| Value History (*The County Treasurer 405-713-1300 posts & collects actual tax amounts. Contact information HERE) | |||||||||||||
|---|---|---|---|---|---|---|---|---|---|---|---|---|---|
| Year | Market Value | Taxable Mkt Value | Gross Assessed | Exemption | Net Assessed | Millage | Est. Tax | Tax Savings | |||||
|
2026 |
267,500 |
213,614 |
23,497 |
1,000 |
22,497 |
122.90 |
$2,765 |
$851 |
|||||
|
2025 |
265,500 |
207,393 |
22,812 |
0 |
22,812 |
122.90 |
$2,804 |
$786 |
|||||
|
2024 |
261,000 |
197,518 |
21,726 |
0 |
21,726 |
123.89 |
$2,692 |
$865 |
|||||
|
2023 |
257,500 |
188,113 |
20,692 |
0 |
20,692 |
122.82 |
$2,541 |
$937 |
|||||
|
2022 |
212,500 |
179,156 |
19,706 |
0 |
19,706 |
117.63 |
$2,318 |
$431 |
|||||
| Property Account Status/Adjustments/Exemptions | ||
|---|---|---|
| Account # | Exemption Description | Amount |
|
R064066900 |
Homestead |
1,000 |
|
R064066900 |
3% Cap Homestead |
0 |
| Property Deed Transaction History (Recorded in the County Clerk's Office) | ||||||||||
|---|---|---|---|---|---|---|---|---|---|---|
| Date | Type | Book | Page | Price | Grantor | Grantee | ||||
|
9/3/2009 |
|
Deeds |
$136,000 |
URASH RICHARD G & JENNIFER L NONES |
HENDERSON JEFFREY E & ANGLEA K |
|||||
|
1/25/2008 |
|
Deeds |
$130,000 |
SANNER EMILY KAY |
URASH RICHARD G & JENNIFER L NONES |
|||||
|
12/28/2006 |
|
Deeds |
$130,000 |
KING TAMMY J |
SANNER EMILY KAY |
|||||
|
3/3/1997 |
|
Historical |
$0 |
RODER JEANNE A |
KING TAMMY J |
|||||
|
9/1/1994 |
|
Historical |
$60,000 |
LOONEY KNOX L & MARGARET L |
RODER JEANNE A |
|||||
| Last Mailed Notice of Value (N.O.V.) Information/History | ||||||||
|---|---|---|---|---|---|---|---|---|
| Year | Date | Market Value | Taxable Market Value | Gross Assessed | Exemption | Net Assessed | ||
|
2026 |
02/23/2026 |
267,500 |
217,762 |
23,953 |
0 |
23,953 |
||
|
2025 |
02/14/2025 |
265,500 |
207,393 |
22,812 |
0 |
22,812 |
||
|
2024 |
02/13/2024 |
261,000 |
197,518 |
21,726 |
0 |
21,726 |
||
|
2023 |
02/14/2023 |
257,500 |
188,113 |
20,692 |
0 |
20,692 |
||
|
2022 |
03/15/2022 |
212,500 |
179,156 |
19,706 |
0 |
19,706 |
||
| Property Building Permit History | |||||||||||
|---|---|---|---|---|---|---|---|---|---|---|---|
| Issued | Permit # | Provided by | Bldg # | Description | Est Construction Cost | Status | |||||
| No Building Permit records returned. | |||||||||||
| Click button on building number to access detailed information: | ||||||
|---|---|---|---|---|---|---|
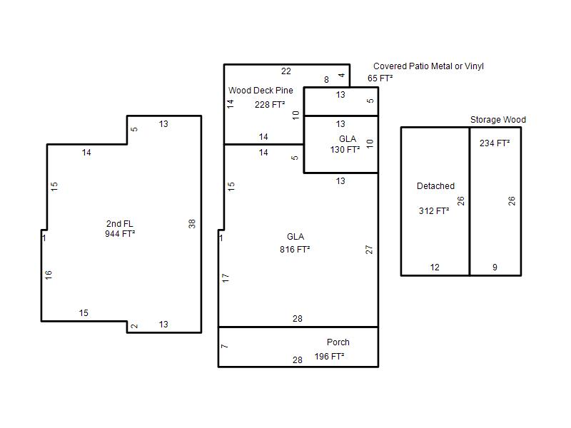
| Bldg # | Vacant/Improved Land | Bldg Description | Year Built | SqFt | # Stories | |
|
1 |
Improved |
2 Story |
1919 |
1,890 |
2 Stories |
|