|
|
|
| Larry Stein Oklahoma County Assessor (405) 713-1200 - Public Access System |
|
|
|
|
|
|
| Real Property Display - Screen Produced 4/12/2026 6:08:43 PM | ||||
|---|---|---|---|---|
| Account: R060042870 | Type: Residential | Location: |
2632 NW 15TH ST |
|
| Building Name/Occupant: |
|
OKLAHOMA CITY |
||
| Owner Name 1: | MILLAR SARAH DENISE TRS |
Parcel PIN#: |
2719-06-004-2870 |
|
| Owner Name 2: | MILLAR SARAH DENISE REV TRUST | 1/4 section #: |
2719 |
|
| Owner Name 3: | Parent Acct: |
|
||
| Billing Address: | 2632 NW 15TH ST | Tax District: |
|
|
| City, State, Zip | OKLAHOMA CITY, OK 73107 | School System: |
Oklahoma City #89 |
|
|
Country: (If noted) |
Land Size: |
0.1722 Acres |
||
|
Land Value: 32,625 |
|
|||
|
Sect 30-T12N-R3W Qtr SW |
MILLERS BOULEVARD AMD
Block
013
Lot
009
|
|||
| Full Legal Description: MILLERS BOULEVARD AMD 013 009 |
| Photo & Sketch (if available) | Comp Sales (ordered by relevancy) |
|
||||||||||||||||||
|
||||||||||||||||||||
| Value History (*The County Treasurer 405-713-1300 posts & collects actual tax amounts. Contact information HERE) | |||||||||||||
|---|---|---|---|---|---|---|---|---|---|---|---|---|---|
| Year | Market Value | Taxable Mkt Value | Gross Assessed | Exemption | Net Assessed | Millage | Est. Tax | Tax Savings | |||||
|
2026 |
302,000 |
217,221 |
23,894 |
1,000 |
22,894 |
122.90 |
$2,814 |
$1,269 |
|||||
|
2025 |
311,000 |
217,221 |
23,894 |
1,000 |
22,894 |
122.90 |
$2,814 |
$1,391 |
|||||
|
2024 |
305,000 |
217,221 |
23,894 |
1,000 |
22,894 |
123.89 |
$2,836 |
$1,320 |
|||||
|
2023 |
293,500 |
217,221 |
23,893 |
1,000 |
22,893 |
122.82 |
$2,812 |
$1,153 |
|||||
|
2022 |
242,500 |
210,895 |
23,196 |
1,000 |
22,196 |
117.63 |
$2,611 |
$527 |
|||||
| Property Account Status/Adjustments/Exemptions | ||
|---|---|---|
| Account # | Exemption Description | Amount |
|
R060042870 |
Freeze Senior Valuation |
0 |
|
R060042870 |
3% Cap Homestead |
0 |
|
R060042870 |
Homestead |
1,000 |
| Property Deed Transaction History (Recorded in the County Clerk's Office) | ||||||||||
|---|---|---|---|---|---|---|---|---|---|---|
| Date | Type | Book | Page | Price | Grantor | Grantee | ||||
|
5/1/2017 |
|
Deeds |
$193,000 |
KRAFT SAMANTHA L |
MILLAR SARAH DENISE TRS |
|||||
|
6/30/2014 |
|
Deeds |
$165,000 |
WHITAKER MATT |
KRAFT SAMANTHA L |
|||||
|
11/9/2009 |
|
Deeds |
$164,000 |
KINNE MEGAN A |
WHITAKER MATT |
|||||
|
12/19/2007 |
|
Deeds |
$148,000 |
TASSLES ETC LLC |
KINNE MEGAN A |
|||||
|
6/11/2007 |
|
Deeds |
$82,000 |
MARTIN TERRI G |
TASSLES ETC LLC |
|||||
| Last Mailed Notice of Value (N.O.V.) Information/History | ||||||||
|---|---|---|---|---|---|---|---|---|
| Year | Date | Market Value | Taxable Market Value | Gross Assessed | Exemption | Net Assessed | ||
|
2025 |
02/14/2025 |
311,000 |
217,221 |
23,894 |
1,000 |
22,894 |
||
|
2024 |
02/13/2024 |
305,000 |
217,221 |
23,894 |
1,000 |
22,894 |
||
|
2023 |
02/14/2023 |
293,500 |
217,221 |
23,893 |
1,000 |
22,893 |
||
|
2022 |
03/15/2022 |
242,500 |
210,895 |
23,196 |
1,000 |
22,196 |
||
|
2021 |
03/19/2021 |
215,000 |
204,753 |
22,522 |
1,000 |
21,522 |
||
| Property Building Permit History | |||||||||||
|---|---|---|---|---|---|---|---|---|---|---|---|
| Issued | Permit # | Provided by | Bldg # | Description | Est Construction Cost | Status | |||||
| No Building Permit records returned. | |||||||||||
| Click button on building number to access detailed information: | ||||||
|---|---|---|---|---|---|---|
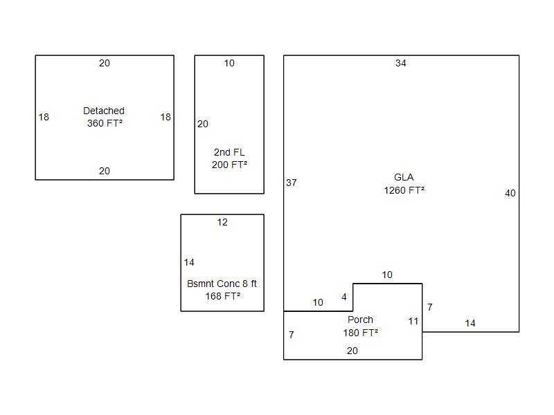
| Bldg # | Vacant/Improved Land | Bldg Description | Year Built | SqFt | # Stories | |
|
1 |
Improved |
1½ Story Fin |
1928 |
1,460 |
1.5 Stories |
|