|
|
|
| Larry Stein Oklahoma County Assessor (405) 713-1200 - Public Access System |
|
|
|
|
|
|
| Real Property Display - Screen Produced 4/14/2026 4:41:27 AM | ||||
|---|---|---|---|---|
| Account: R060042890 | Type: Residential | Location: |
2640 NW 15TH ST |
|
| Building Name/Occupant: |
|
OKLAHOMA CITY |
||
| Owner Name 1: | MURPHY CHRISTOPHER A |
Parcel PIN#: |
2719-06-004-2890 |
|
| Owner Name 2: | 1/4 section #: |
2719 |
||
| Owner Name 3: | Parent Acct: |
|
||
| Billing Address: | 2640 NW 15TH ST | Tax District: |
|
|
| City, State, Zip | OKLAHOMA CITY, OK 73107 | School System: |
Oklahoma City #89 |
|
|
Country: (If noted) |
Land Size: |
0.1722 Acres |
||
|
Land Value: 32,625 |
|
|||
|
Sect 30-T12N-R3W Qtr SW |
MILLERS BOULEVARD AMD
Block
013
Lot
011
|
|||
| Full Legal Description: MILLERS BOULEVARD AMD 013 011 |
| Photo & Sketch (if available) | Comp Sales (ordered by relevancy) |
|
||||||||||||||||||
|
||||||||||||||||||||
| Value History (*The County Treasurer 405-713-1300 posts & collects actual tax amounts. Contact information HERE) | |||||||||||||
|---|---|---|---|---|---|---|---|---|---|---|---|---|---|
| Year | Market Value | Taxable Mkt Value | Gross Assessed | Exemption | Net Assessed | Millage | Est. Tax | Tax Savings | |||||
|
2026 |
239,500 |
215,083 |
23,658 |
0 |
23,658 |
122.90 |
$2,908 |
$330 |
|||||
|
2025 |
246,000 |
204,841 |
22,531 |
0 |
22,531 |
122.90 |
$2,769 |
$556 |
|||||
|
2024 |
241,000 |
195,087 |
21,458 |
0 |
21,458 |
123.89 |
$2,659 |
$626 |
|||||
|
2023 |
233,000 |
185,798 |
20,437 |
0 |
20,437 |
122.82 |
$2,510 |
$638 |
|||||
|
2022 |
188,500 |
176,951 |
19,463 |
0 |
19,463 |
117.63 |
$2,290 |
$149 |
|||||
| Property Account Status/Adjustments/Exemptions | ||
|---|---|---|
| Account # | Exemption Description | Amount |
|
R060042890 |
5% Capped Account |
0 |
| Property Deed Transaction History (Recorded in the County Clerk's Office) | ||||||||||
|---|---|---|---|---|---|---|---|---|---|---|
| Date | Type | Book | Page | Price | Grantor | Grantee | ||||
|
11/14/2017 |
|
Deeds |
$160,000 |
SIMPSON BOBBY J |
MURPHY CHRISTOPHER A |
|||||
|
4/12/2016 |
|
Deeds |
$0 |
SIMPSON SUSAN BLAIR |
SIMPSON BOBBY J |
|||||
|
4/21/2008 |
|
Deeds |
$146,000 |
COATS CHRISTOPHER R & ERIN W |
SIMPSON BOBBY J |
|||||
|
5/31/2002 |
|
Deeds |
$77,000 |
ASHMORE GLENN A |
COATS CHRISTOPHER R & ERIN W |
|||||
|
10/20/1993 |
|
Historical |
$27,500 |
SWINK ROBERT L & MARY E |
ASHMORE GLENN A |
|||||
| Last Mailed Notice of Value (N.O.V.) Information/History | ||||||||
|---|---|---|---|---|---|---|---|---|
| Year | Date | Market Value | Taxable Market Value | Gross Assessed | Exemption | Net Assessed | ||
|
2026 |
02/23/2026 |
239,500 |
215,083 |
23,658 |
0 |
23,658 |
||
|
2025 |
02/14/2025 |
246,000 |
204,841 |
22,531 |
0 |
22,531 |
||
|
2024 |
02/13/2024 |
241,000 |
195,087 |
21,458 |
0 |
21,458 |
||
|
2023 |
02/14/2023 |
233,000 |
185,798 |
20,437 |
0 |
20,437 |
||
|
2022 |
03/15/2022 |
188,500 |
176,951 |
19,463 |
0 |
19,463 |
||
| Property Building Permit History | |||||||||||
|---|---|---|---|---|---|---|---|---|---|---|---|
| Issued | Permit # | Provided by | Bldg # | Description | Est Construction Cost | Status | |||||
| No Building Permit records returned. | |||||||||||
| Click button on building number to access detailed information: | ||||||
|---|---|---|---|---|---|---|
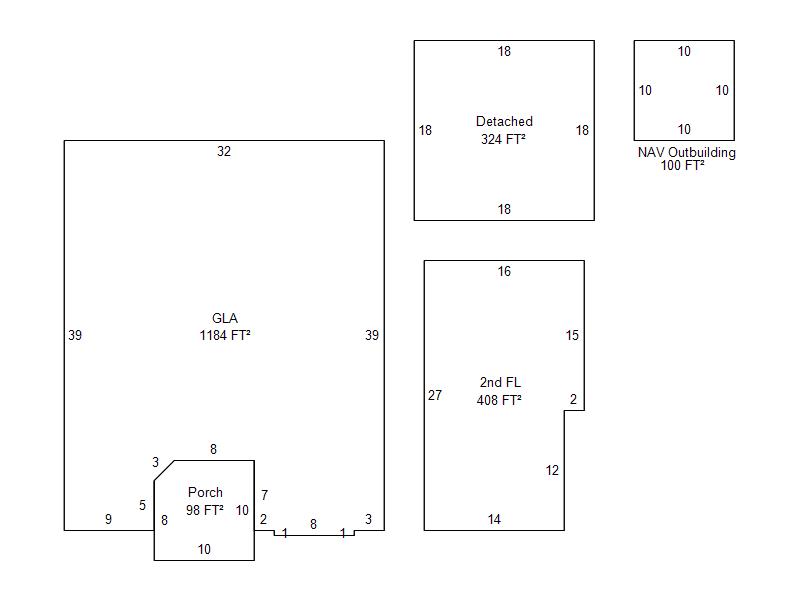
| Bldg # | Vacant/Improved Land | Bldg Description | Year Built | SqFt | # Stories | |
|
1 |
Improved |
1½ Story Fin |
1928 |
1,592 |
1.5 Stories |
|