|
|
|
| Larry Stein Oklahoma County Assessor (405) 713-1200 - Public Access System |
|
|
|
|
|
|
| Real Property Display - Screen Produced 4/12/2026 6:08:43 PM | ||||
|---|---|---|---|---|
| Account: R060042990 | Type: Residential | Location: |
2621 NW 14TH ST |
|
| Building Name/Occupant: |
|
OKLAHOMA CITY |
||
| Owner Name 1: | SMITH EDGAR W |
Parcel PIN#: |
2719-06-004-2990 |
|
| Owner Name 2: | 1/4 section #: |
2719 |
||
| Owner Name 3: | Parent Acct: |
|
||
| Billing Address: | 2621 NW 14TH ST | Tax District: |
|
|
| City, State, Zip | OKLAHOMA CITY, OK 73107-4817 | School System: |
Oklahoma City #89 |
|
|
Country: (If noted) |
Land Size: |
0.1722 Acres |
||
|
Land Value: 32,625 |
|
|||
|
Sect 30-T12N-R3W Qtr SW |
MILLERS BOULEVARD AMD
Block
013
Lot
021
|
|||
| Full Legal Description: MILLERS BOULEVARD AMD 013 021 |
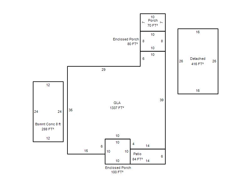
| Photo & Sketch (if available) | Comp Sales (ordered by relevancy) |
|
||||||||||||||||||
|
||||||||||||||||||||
| Value History (*The County Treasurer 405-713-1300 posts & collects actual tax amounts. Contact information HERE) | |||||||||||||
|---|---|---|---|---|---|---|---|---|---|---|---|---|---|
| Year | Market Value | Taxable Mkt Value | Gross Assessed | Exemption | Net Assessed | Millage | Est. Tax | Tax Savings | |||||
|
2026 |
241,000 |
177,344 |
19,507 |
1,000 |
18,507 |
122.90 |
$2,275 |
$983 |
|||||
|
2025 |
247,500 |
172,179 |
18,939 |
1,000 |
17,939 |
122.90 |
$2,205 |
$1,141 |
|||||
|
2024 |
238,500 |
167,165 |
18,387 |
1,000 |
17,387 |
123.89 |
$2,154 |
$1,096 |
|||||
|
2023 |
231,000 |
162,297 |
17,851 |
1,000 |
16,851 |
122.82 |
$2,070 |
$1,051 |
|||||
|
2022 |
190,000 |
157,570 |
17,331 |
1,000 |
16,331 |
117.63 |
$1,921 |
$537 |
|||||
| Property Account Status/Adjustments/Exemptions | ||
|---|---|---|
| Account # | Exemption Description | Amount |
|
R060042990 |
Homestead |
1,000 |
|
R060042990 |
3% Cap Homestead |
0 |
| Property Deed Transaction History (Recorded in the County Clerk's Office) | |||||||
|---|---|---|---|---|---|---|---|
| Date | Type | Book | Page | Price | Grantor | Grantee | |
|
6/18/2012 |
|
Deeds |
$138,000 |
LINKE WILLIAM & MCOLLENE |
SMITH EDGAR W |
||
|
12/4/2002 |
|
Deeds |
$84,000 |
YAKLIN LAWRENCE F |
LINKE WILLIAM & MCOLLENE |
||
|
12/27/1994 |
|
Historical |
$39,000 |
DEVINE DANNY D |
YAKLIN LAWRENCE F |
||
|
8/29/1989 |
|
Historical |
$0 |
|
DEVINE DANNY D |
||
| Last Mailed Notice of Value (N.O.V.) Information/History | ||||||||
|---|---|---|---|---|---|---|---|---|
| Year | Date | Market Value | Taxable Market Value | Gross Assessed | Exemption | Net Assessed | ||
|
2026 |
02/23/2026 |
241,000 |
177,344 |
19,507 |
1,000 |
18,507 |
||
|
2025 |
02/14/2025 |
247,500 |
172,179 |
18,939 |
1,000 |
17,939 |
||
|
2024 |
02/13/2024 |
238,500 |
167,165 |
18,387 |
1,000 |
17,387 |
||
|
2023 |
02/14/2023 |
231,000 |
162,297 |
17,851 |
1,000 |
16,851 |
||
|
2022 |
03/15/2022 |
190,000 |
157,570 |
17,331 |
1,000 |
16,331 |
||
| Property Building Permit History | |||||||||||
|---|---|---|---|---|---|---|---|---|---|---|---|
| Issued | Permit # | Provided by | Bldg # | Description | Est Construction Cost | Status | |||||
| No Building Permit records returned. | |||||||||||
| Click button on building number to access detailed information: | ||||||
|---|---|---|---|---|---|---|
| Bldg # | Vacant/Improved Land | Bldg Description | Year Built | SqFt | # Stories | |
|
1 |
Improved |
Ranch 1 Story |
1929 |
1,337 |
1 Stories |
|