|
|
|
| Larry Stein Oklahoma County Assessor (405) 713-1200 - Public Access System |
|
|
|
|
|
|
| Real Property Display - Screen Produced 4/12/2026 6:07:40 PM | ||||
|---|---|---|---|---|
| Account: R064140020 | Type: Residential | Location: |
2504 NW 16TH ST |
|
| Building Name/Occupant: |
|
OKLAHOMA CITY |
||
| Owner Name 1: | OASIS PROPERTIES INC |
Parcel PIN#: |
2719-06-414-0020 |
|
| Owner Name 2: | 1/4 section #: |
2719 |
||
| Owner Name 3: | Parent Acct: |
|
||
| Billing Address: | 6317 NW 23RD ST | Tax District: |
|
|
| City, State, Zip | BETHANY, OK 73008-5931 | School System: |
Oklahoma City #89 |
|
|
Country: (If noted) |
Land Size: |
0.1779 Acres |
||
|
Land Value: 33,713 |
|
|||
|
Sect 30-T12N-R3W Qtr SW |
MILLERS BOULEVARD
Block
001
Lot
000
|
|||
| Full Legal Description: MILLERS BOULEVARD 001 000 W25FT LOT 1 & E25FT LOT 2 |
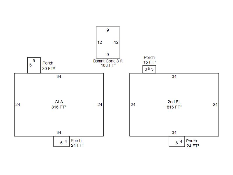
| Photo & Sketch (if available) | Comp Sales (ordered by relevancy) |
|
||||||||||||||||||
|
||||||||||||||||||||
| Value History (*The County Treasurer 405-713-1300 posts & collects actual tax amounts. Contact information HERE) | |||||||||||||
|---|---|---|---|---|---|---|---|---|---|---|---|---|---|
| Year | Market Value | Taxable Mkt Value | Gross Assessed | Exemption | Net Assessed | Millage | Est. Tax | Tax Savings | |||||
|
2026 |
202,500 |
106,687 |
11,734 |
0 |
11,734 |
122.90 |
$1,442 |
$1,295 |
|||||
|
2025 |
204,000 |
101,607 |
11,176 |
0 |
11,176 |
122.90 |
$1,374 |
$1,384 |
|||||
|
2024 |
197,000 |
96,769 |
10,643 |
0 |
10,643 |
123.89 |
$1,319 |
$1,366 |
|||||
|
2023 |
181,000 |
92,161 |
10,137 |
0 |
10,137 |
122.82 |
$1,245 |
$1,200 |
|||||
|
2022 |
144,500 |
87,773 |
9,653 |
0 |
9,653 |
117.63 |
$1,136 |
$734 |
|||||
| Property Account Status/Adjustments/Exemptions | ||
|---|---|---|
| Account # | Exemption Description | Amount |
|
R064140020 |
5% Capped Account |
0 |
| Property Deed Transaction History (Recorded in the County Clerk's Office) | ||||||||||
|---|---|---|---|---|---|---|---|---|---|---|
| Date | Type | Book | Page | Price | Grantor | Grantee | ||||
|
9/30/2013 |
|
Mult Parcel |
$211,000 |
HATCHER MARK E |
OASIS PROPERTIES INC |
|||||
|
6/29/2007 |
|
Mult Parcel |
$180,000 |
SOONER SKY PROPERTIES LLC |
HATCHER MARK E |
|||||
|
10/31/2003 |
|
Mult Parcel |
$150,000 |
2500 NW 16TH STREET LLC |
SOONER SKY PROPERTIES LLC |
|||||
|
5/26/1998 |
|
Historical |
$20,000 |
LEE MARGIE D |
2500 NW 16TH ST LLC |
|||||
|
12/29/1989 |
|
Historical |
$0 |
FLESHMAN MARGUERITE E TRS |
LEE MARGIE D |
|||||
| Last Mailed Notice of Value (N.O.V.) Information/History | ||||||||
|---|---|---|---|---|---|---|---|---|
| Year | Date | Market Value | Taxable Market Value | Gross Assessed | Exemption | Net Assessed | ||
|
2026 |
02/23/2026 |
202,500 |
106,687 |
11,734 |
0 |
11,734 |
||
|
2025 |
02/14/2025 |
204,000 |
101,607 |
11,176 |
0 |
11,176 |
||
|
2024 |
02/13/2024 |
197,000 |
96,769 |
10,643 |
0 |
10,643 |
||
|
2023 |
02/14/2023 |
181,000 |
92,161 |
10,137 |
0 |
10,137 |
||
|
2022 |
03/15/2022 |
144,500 |
87,773 |
9,653 |
0 |
9,653 |
||
| Property Building Permit History | |||||||||||
|---|---|---|---|---|---|---|---|---|---|---|---|
| Issued | Permit # | Provided by | Bldg # | Description | Est Construction Cost | Status | |||||
| No Building Permit records returned. | |||||||||||
| Click button on building number to access detailed information: | ||||||
|---|---|---|---|---|---|---|
| Bldg # | Vacant/Improved Land | Bldg Description | Year Built | SqFt | # Stories | |
|
1 |
Improved |
Duplex Two Story |
1941 |
1,632 |
2 Stories |
|