|
|
|
| Larry Stein Oklahoma County Assessor (405) 713-1200 - Public Access System |
|
|
|
|
|
|
| Real Property Display - Screen Produced 4/12/2026 6:07:40 PM | ||||
|---|---|---|---|---|
| Account: R064140040 | Type: Residential | Location: |
2512 NW 16TH ST |
|
| Building Name/Occupant: |
|
OKLAHOMA CITY |
||
| Owner Name 1: | LARA CARMEN MARIA |
Parcel PIN#: |
2719-06-414-0040 |
|
| Owner Name 2: | 1/4 section #: |
2719 |
||
| Owner Name 3: | Parent Acct: |
|
||
| Billing Address: | 2512 NW 16TH ST | Tax District: |
|
|
| City, State, Zip | OKLAHOMA CITY, OK 73107-4840 | School System: |
Oklahoma City #89 |
|
|
Country: (If noted) |
Land Size: |
0.1779 Acres |
||
|
Land Value: 33,713 |
|
|||
|
Sect 30-T12N-R3W Qtr SW |
MILLERS BOULEVARD
Block
001
Lot
003
|
|||
| Full Legal Description: MILLERS BOULEVARD 001 003 E50FT |
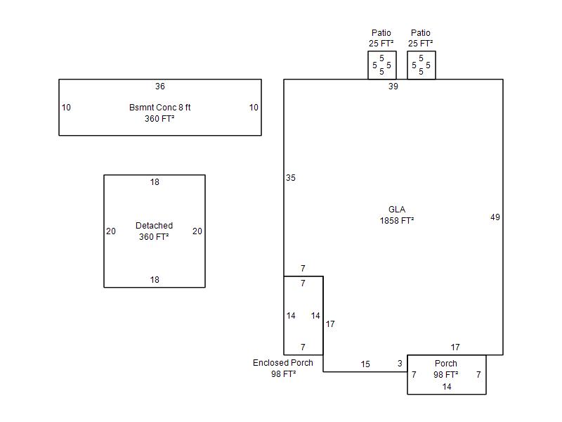
| Photo & Sketch (if available) | Comp Sales (ordered by relevancy) |
|
||||||||||||||||||
|
||||||||||||||||||||
| Value History (*The County Treasurer 405-713-1300 posts & collects actual tax amounts. Contact information HERE) | |||||||||||||
|---|---|---|---|---|---|---|---|---|---|---|---|---|---|
| Year | Market Value | Taxable Mkt Value | Gross Assessed | Exemption | Net Assessed | Millage | Est. Tax | Tax Savings | |||||
|
2026 |
224,000 |
117,274 |
12,899 |
0 |
12,899 |
122.90 |
$1,585 |
$1,443 |
|||||
|
2025 |
219,000 |
111,690 |
12,285 |
0 |
12,285 |
122.90 |
$1,510 |
$1,451 |
|||||
|
2024 |
211,000 |
106,372 |
11,700 |
0 |
11,700 |
123.89 |
$1,450 |
$1,426 |
|||||
|
2023 |
199,000 |
101,307 |
11,143 |
0 |
11,143 |
122.82 |
$1,369 |
$1,320 |
|||||
|
2022 |
155,000 |
96,483 |
10,612 |
0 |
10,612 |
117.63 |
$1,248 |
$757 |
|||||
| Property Account Status/Adjustments/Exemptions | ||
|---|---|---|
| Account # | Exemption Description | Amount |
|
R064140040 |
5% Capped Account |
0 |
| Property Deed Transaction History (Recorded in the County Clerk's Office) | |||||||
|---|---|---|---|---|---|---|---|
| Date | Type | Book | Page | Price | Grantor | Grantee | |
|
6/17/2002 |
|
Deeds |
$25,000 |
ALLEN ILLA MAE |
LARA CARMEN MARIA |
||
|
8/18/1989 |
|
Historical |
$0 |
ALLEN ELMER & ILLA |
ALLEN ILLA MAE |
||
|
11/11/1911 |
|
Historical |
$0 |
|
ALLEN ELMER & ILLA |
||
| Last Mailed Notice of Value (N.O.V.) Information/History | ||||||||
|---|---|---|---|---|---|---|---|---|
| Year | Date | Market Value | Taxable Market Value | Gross Assessed | Exemption | Net Assessed | ||
|
2026 |
02/23/2026 |
224,000 |
117,274 |
12,899 |
0 |
12,899 |
||
|
2025 |
02/14/2025 |
219,000 |
111,690 |
12,285 |
0 |
12,285 |
||
|
2024 |
02/13/2024 |
211,000 |
106,372 |
11,700 |
0 |
11,700 |
||
|
2023 |
02/14/2023 |
199,000 |
101,307 |
11,143 |
0 |
11,143 |
||
|
2022 |
03/15/2022 |
155,000 |
96,483 |
10,612 |
0 |
10,612 |
||
| Property Building Permit History | |||||||||||
|---|---|---|---|---|---|---|---|---|---|---|---|
| Issued | Permit # | Provided by | Bldg # | Description | Est Construction Cost | Status | |||||
| No Building Permit records returned. | |||||||||||
| Click button on building number to access detailed information: | ||||||
|---|---|---|---|---|---|---|
| Bldg # | Vacant/Improved Land | Bldg Description | Year Built | SqFt | # Stories | |
|
1 |
Improved |
Duplex One Story |
1925 |
1,858 |
1 Stories |
|