|
|
|
| Larry Stein Oklahoma County Assessor (405) 713-1200 - Public Access System |
|
|
|
|
|
|
| Real Property Display - Screen Produced 4/14/2026 4:41:28 AM | ||||
|---|---|---|---|---|
| Account: R064140070 | Type: Residential | Location: |
2528 NW 16TH ST |
|
| Building Name/Occupant: |
|
OKLAHOMA CITY |
||
| Owner Name 1: | BURKHALTER JOHN E |
Parcel PIN#: |
2719-06-414-0070 |
|
| Owner Name 2: | 1/4 section #: |
2719 |
||
| Owner Name 3: | Parent Acct: |
|
||
| Billing Address: | 2528 NW 16TH ST | Tax District: |
|
|
| City, State, Zip | OKLAHOMA CITY, OK 73107 | School System: |
Oklahoma City #89 |
|
|
Country: (If noted) |
Land Size: |
0.1779 Acres |
||
|
Land Value: 33,713 |
|
|||
|
Sect 30-T12N-R3W Qtr SW |
MILLERS BOULEVARD
Block
001
Lot
000
|
|||
| Full Legal Description: MILLERS BOULEVARD 001 000 W25FT OF LOT 5 & E25FT LOT 6 |
| Photo & Sketch (if available) | Comp Sales (ordered by relevancy) |
|
||||||||||||||||||
|
||||||||||||||||||||
| Value History (*The County Treasurer 405-713-1300 posts & collects actual tax amounts. Contact information HERE) | |||||||||||||
|---|---|---|---|---|---|---|---|---|---|---|---|---|---|
| Year | Market Value | Taxable Mkt Value | Gross Assessed | Exemption | Net Assessed | Millage | Est. Tax | Tax Savings | |||||
|
2026 |
217,500 |
104,550 |
11,499 |
1,000 |
10,499 |
122.90 |
$1,291 |
$1,650 |
|||||
|
2025 |
217,000 |
101,505 |
11,165 |
1,000 |
10,165 |
122.90 |
$1,249 |
$1,684 |
|||||
|
2024 |
211,000 |
98,549 |
10,839 |
1,000 |
9,839 |
123.89 |
$1,219 |
$1,656 |
|||||
|
2023 |
194,500 |
95,679 |
10,524 |
0 |
10,524 |
122.82 |
$1,293 |
$1,335 |
|||||
|
2022 |
151,500 |
91,123 |
10,022 |
0 |
10,022 |
117.63 |
$1,179 |
$781 |
|||||
| Property Account Status/Adjustments/Exemptions | ||
|---|---|---|
| Account # | Exemption Description | Amount |
|
R064140070 |
Homestead |
1,000 |
|
R064140070 |
3% Cap Homestead |
0 |
| Property Deed Transaction History (Recorded in the County Clerk's Office) | ||||||||||
|---|---|---|---|---|---|---|---|---|---|---|
| Date | Type | Book | Page | Price | Grantor | Grantee | ||||
|
3/16/2005 |
|
Deeds |
$0 |
HOWLAND WANDA J |
BURKHALTER JOHN ELDON |
|||||
|
2/24/2005 |
|
Deeds |
$0 |
BURKHALTER JOHN E & WANDA J |
HOWLAND WANDA J |
|||||
|
9/3/1998 |
|
Historical |
$12,500 |
FORTENBERRY GLORIANE M |
BURKHALTER JOHN E |
|||||
|
9/6/1995 |
|
Historical |
$0 |
MARCUM GLORAINE |
FORTENBERRY GLORIANE M |
|||||
|
5/16/1990 |
|
Historical |
$0 |
FORTENBERRY FRANK D & GLORIANE |
FORTENBERRY FRANK D & GLORIANE |
|||||
| Last Mailed Notice of Value (N.O.V.) Information/History | ||||||||
|---|---|---|---|---|---|---|---|---|
| Year | Date | Market Value | Taxable Market Value | Gross Assessed | Exemption | Net Assessed | ||
|
2026 |
02/23/2026 |
217,500 |
104,550 |
11,499 |
1,000 |
10,499 |
||
|
2025 |
02/14/2025 |
217,000 |
101,505 |
11,165 |
1,000 |
10,165 |
||
|
2024 |
02/13/2024 |
211,000 |
98,549 |
10,839 |
1,000 |
9,839 |
||
|
2023 |
02/14/2023 |
194,500 |
95,679 |
10,524 |
0 |
10,524 |
||
|
2022 |
03/15/2022 |
151,500 |
91,123 |
10,022 |
0 |
10,022 |
||
| Property Building Permit History | |||||||||||
|---|---|---|---|---|---|---|---|---|---|---|---|
| Issued | Permit # | Provided by | Bldg # | Description | Est Construction Cost | Status | |||||
| No Building Permit records returned. | |||||||||||
| Click button on building number to access detailed information: | ||||||
|---|---|---|---|---|---|---|
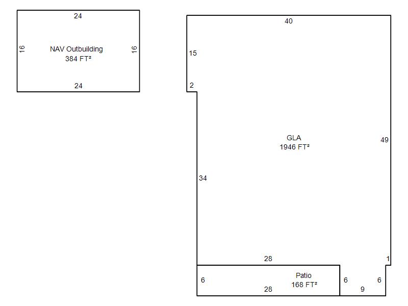
| Bldg # | Vacant/Improved Land | Bldg Description | Year Built | SqFt | # Stories | |
|
1 |
Improved |
Duplex One Story |
1930 |
1,946 |
1 Stories |
|