|
|
|
| Larry Stein Oklahoma County Assessor (405) 713-1200 - Public Access System |
|
|
|
|
|
|
| Real Property Display - Screen Produced 4/12/2026 6:10:03 PM | ||||
|---|---|---|---|---|
| Account: R064141200 | Type: Residential | Location: |
2541 NW 11TH ST |
|
| Building Name/Occupant: |
|
OKLAHOMA CITY |
||
| Owner Name 1: | RED EARTH PROPERTY MANAGEMENT LLC |
Parcel PIN#: |
2719-06-414-1200 |
|
| Owner Name 2: | 1/4 section #: |
2719 |
||
| Owner Name 3: | Parent Acct: |
|
||
| Billing Address: | 2298 NW 223RD ST | Tax District: |
|
|
| City, State, Zip | EDMOND , OK 73025 | School System: |
Oklahoma City #89 |
|
|
Country: (If noted) |
Land Size: |
0.1722 Acres |
||
|
Land Value: 32,625 |
|
|||
|
Sect 30-T12N-R3W Qtr SW |
MILLERS BOULEVARD
Block
005
Lot
000
|
|||
| Full Legal Description: MILLERS BOULEVARD 005 000 E25FT OF LOT 9 & W25FT LOT 10 |
| Photo & Sketch (if available) | Comp Sales (ordered by relevancy) |
|
||||||||||||||||||
|
||||||||||||||||||||
| Value History (*The County Treasurer 405-713-1300 posts & collects actual tax amounts. Contact information HERE) | |||||||||||||
|---|---|---|---|---|---|---|---|---|---|---|---|---|---|
| Year | Market Value | Taxable Mkt Value | Gross Assessed | Exemption | Net Assessed | Millage | Est. Tax | Tax Savings | |||||
|
2026 |
193,500 |
134,678 |
14,814 |
0 |
14,814 |
122.90 |
$1,821 |
$795 |
|||||
|
2025 |
190,000 |
128,265 |
14,108 |
0 |
14,108 |
122.90 |
$1,734 |
$835 |
|||||
|
2024 |
184,500 |
122,158 |
13,436 |
0 |
13,436 |
123.89 |
$1,665 |
$850 |
|||||
|
2023 |
174,500 |
116,341 |
12,797 |
0 |
12,797 |
122.82 |
$1,572 |
$786 |
|||||
|
2022 |
134,500 |
110,801 |
12,187 |
0 |
12,187 |
117.63 |
$1,434 |
$307 |
|||||
| Property Account Status/Adjustments/Exemptions | ||
|---|---|---|
| Account # | Exemption Description | Amount |
|
R064141200 |
5% Capped Account |
0 |
| Property Deed Transaction History (Recorded in the County Clerk's Office) | ||||||||||
|---|---|---|---|---|---|---|---|---|---|---|
| Date | Type | Book | Page | Price | Grantor | Grantee | ||||
|
10/15/2018 |
|
Mult Parcel |
$591,000 |
TD & J LLC |
RED EARTH PROPERTY MANAGEMENT LLC |
|||||
|
12/14/2017 |
|
Deeds |
$101,500 |
JARRED D SMITH LLC |
TD & J LLC |
|||||
|
11/6/2017 |
|
Deeds |
$85,000 |
SR INVESTMENTS INC |
JARRED D SMITH LLC |
|||||
|
7/28/1998 |
|
Historical |
$17,000 |
GOODWIN MARK A |
SR INVESTMENTS INC |
|||||
|
4/14/1992 |
|
Historical |
$20,000 |
LUMBERMENS INVESTMENT |
GOODWIN MARK A |
|||||
| Last Mailed Notice of Value (N.O.V.) Information/History | ||||||||
|---|---|---|---|---|---|---|---|---|
| Year | Date | Market Value | Taxable Market Value | Gross Assessed | Exemption | Net Assessed | ||
|
2026 |
02/23/2026 |
193,500 |
134,678 |
14,814 |
0 |
14,814 |
||
|
2025 |
02/14/2025 |
190,000 |
128,265 |
14,108 |
0 |
14,108 |
||
|
2024 |
02/13/2024 |
184,500 |
122,158 |
13,436 |
0 |
13,436 |
||
|
2023 |
02/14/2023 |
174,500 |
116,341 |
12,797 |
0 |
12,797 |
||
|
2022 |
03/15/2022 |
134,500 |
110,801 |
12,187 |
0 |
12,187 |
||
| Property Building Permit History | |||||||||||
|---|---|---|---|---|---|---|---|---|---|---|---|
| Issued | Permit # | Provided by | Bldg # | Description | Est Construction Cost | Status | |||||
| No Building Permit records returned. | |||||||||||
| Click button on building number to access detailed information: | ||||||
|---|---|---|---|---|---|---|
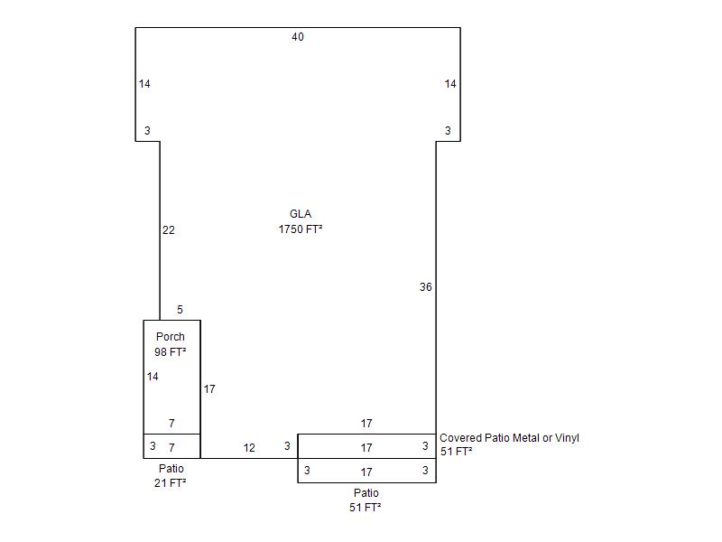
| Bldg # | Vacant/Improved Land | Bldg Description | Year Built | SqFt | # Stories | |
|
1 |
Improved |
Duplex One Story |
1926 |
1,750 |
1 Stories |
|