|
|
|
| Larry Stein Oklahoma County Assessor (405) 713-1200 - Public Access System |
|
|
|
|
|
|
| Real Property Display - Screen Produced 4/12/2026 6:12:51 PM | ||||
|---|---|---|---|---|
| Account: R064141260 | Type: Residential | Location: |
2521 NW 11TH ST |
|
| Building Name/Occupant: |
|
OKLAHOMA CITY |
||
| Owner Name 1: | MEJICANOS ENTERPRISES LLC |
Parcel PIN#: |
2719-06-414-1260 |
|
| Owner Name 2: | 1/4 section #: |
2719 |
||
| Owner Name 3: | Parent Acct: |
|
||
| Billing Address: | 2700 NW 40TH ST | Tax District: |
|
|
| City, State, Zip | OKLAHOMA CITY, OK 73112 | School System: |
Oklahoma City #89 |
|
|
Country: (If noted) |
Land Size: |
0.1722 Acres |
||
|
Land Value: 32,625 |
|
|||
|
Sect 30-T12N-R3W Qtr SW |
MILLERS BOULEVARD
Block
005
Lot
013
|
|||
| Full Legal Description: MILLERS BOULEVARD 005 013 W50FT |
| Photo & Sketch (if available) | Comp Sales (ordered by relevancy) |
|
||||||||||||||||||
|
||||||||||||||||||||
| Value History (*The County Treasurer 405-713-1300 posts & collects actual tax amounts. Contact information HERE) | |||||||||||||
|---|---|---|---|---|---|---|---|---|---|---|---|---|---|
| Year | Market Value | Taxable Mkt Value | Gross Assessed | Exemption | Net Assessed | Millage | Est. Tax | Tax Savings | |||||
|
2026 |
236,500 |
176,763 |
19,443 |
0 |
19,443 |
122.90 |
$2,390 |
$808 |
|||||
|
2025 |
238,500 |
168,346 |
18,517 |
0 |
18,517 |
122.90 |
$2,276 |
$948 |
|||||
|
2024 |
230,500 |
160,330 |
17,635 |
0 |
17,635 |
123.89 |
$2,185 |
$956 |
|||||
|
2023 |
212,500 |
152,696 |
16,795 |
0 |
16,795 |
122.82 |
$2,063 |
$808 |
|||||
|
2022 |
165,000 |
145,425 |
15,996 |
0 |
15,996 |
117.63 |
$1,882 |
$253 |
|||||
| Property Account Status/Adjustments/Exemptions | ||
|---|---|---|
| Account # | Exemption Description | Amount |
|
R064141260 |
5% Capped Account |
0 |
| Property Deed Transaction History (Recorded in the County Clerk's Office) | ||||||||||
|---|---|---|---|---|---|---|---|---|---|---|
| Date | Type | Book | Page | Price | Grantor | Grantee | ||||
|
3/24/2026 |
|
Hmstd Off & |
$0 |
BARRIOS HENRY |
LOPEZ A JANNETH M |
|||||
|
3/24/2026 |
|
Hmstd Off & |
$0 |
LOPEZ A JANNETH M |
MEJICANOS ENTERPRISES LLC |
|||||
|
5/12/2020 |
|
Deeds |
$50,000 |
RODAS JORGE & YAMILET |
BARRIOS HENRY |
|||||
|
10/26/2005 |
|
Deeds |
$75,000 |
SPEED DAVID LANDON |
RODAS JORGE & YAMILET |
|||||
|
4/4/1996 |
|
Historical |
$18,000 |
BAKER RICHARD D & LEILA M |
SPEED DAVID LANDON |
|||||
| Last Mailed Notice of Value (N.O.V.) Information/History | ||||||||
|---|---|---|---|---|---|---|---|---|
| Year | Date | Market Value | Taxable Market Value | Gross Assessed | Exemption | Net Assessed | ||
|
2026 |
02/23/2026 |
236,500 |
176,763 |
19,443 |
0 |
19,443 |
||
|
2025 |
02/14/2025 |
238,500 |
168,346 |
18,517 |
0 |
18,517 |
||
|
2024 |
02/13/2024 |
230,500 |
160,330 |
17,635 |
0 |
17,635 |
||
|
2023 |
02/14/2023 |
212,500 |
152,696 |
16,795 |
0 |
16,795 |
||
|
2022 |
03/15/2022 |
165,000 |
145,425 |
15,996 |
0 |
15,996 |
||
| Property Building Permit History | |||||||||||
|---|---|---|---|---|---|---|---|---|---|---|---|
| Issued | Permit # | Provided by | Bldg # | Description | Est Construction Cost | Status | |||||
| No Building Permit records returned. | |||||||||||
| Click button on building number to access detailed information: | ||||||
|---|---|---|---|---|---|---|
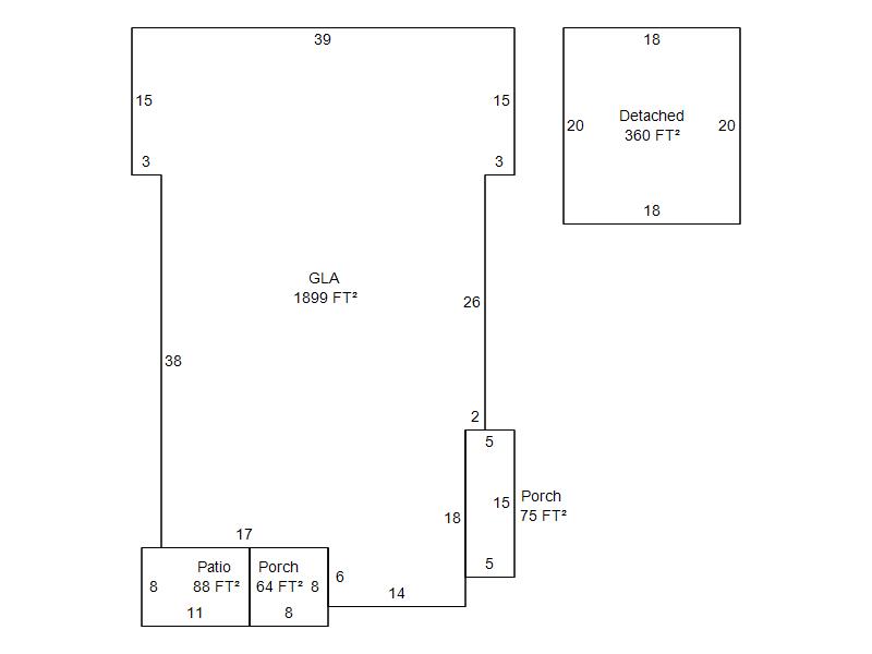
| Bldg # | Vacant/Improved Land | Bldg Description | Year Built | SqFt | # Stories | |
|
1 |
Improved |
Duplex One Story |
1932 |
1,899 |
1 Stories |
|