|
|
|
| Larry Stein Oklahoma County Assessor (405) 713-1200 - Public Access System |
|
|
|
|
|
|
| Real Property Display - Screen Produced 4/12/2026 6:12:51 PM | ||||
|---|---|---|---|---|
| Account: R064141280 | Type: Residential | Location: |
2513 NW 11TH ST |
|
| Building Name/Occupant: |
|
OKLAHOMA CITY |
||
| Owner Name 1: | MAPLE AVENUE PROPERTY LLC |
Parcel PIN#: |
2719-06-414-1280 |
|
| Owner Name 2: | 1/4 section #: |
2719 |
||
| Owner Name 3: | Parent Acct: |
|
||
| Billing Address: | 620 N 25TH ST | Tax District: |
|
|
| City, State, Zip | BOISE, ID 83702-3828 | School System: |
Oklahoma City #89 |
|
|
Country: (If noted) |
Land Size: |
0.1722 Acres |
||
|
Land Value: 32,625 |
|
|||
|
Sect 30-T12N-R3W Qtr SW |
MILLERS BOULEVARD
Block
005
Lot
014
|
|||
| Full Legal Description: MILLERS BOULEVARD 005 014 E50FT |
| Photo & Sketch (if available) | Comp Sales (ordered by relevancy) |
|
||||||||||||||||||
|
||||||||||||||||||||
| Value History (*The County Treasurer 405-713-1300 posts & collects actual tax amounts. Contact information HERE) | |||||||||||||
|---|---|---|---|---|---|---|---|---|---|---|---|---|---|
| Year | Market Value | Taxable Mkt Value | Gross Assessed | Exemption | Net Assessed | Millage | Est. Tax | Tax Savings | |||||
|
2026 |
226,000 |
226,000 |
24,860 |
0 |
24,860 |
122.90 |
$3,055 |
$0 |
|||||
|
2025 |
227,500 |
227,500 |
25,025 |
0 |
25,025 |
122.90 |
$3,076 |
$0 |
|||||
|
2024 |
220,500 |
83,044 |
9,133 |
0 |
9,133 |
123.89 |
$1,132 |
$1,873 |
|||||
|
2023 |
201,500 |
79,090 |
8,699 |
1,000 |
7,699 |
122.82 |
$946 |
$1,777 |
|||||
|
2022 |
156,500 |
79,090 |
8,699 |
1,000 |
7,699 |
117.63 |
$906 |
$1,119 |
|||||
| Property Account Status/Adjustments/Exemptions | ||
|---|---|---|
| Account # | Exemption Description | Amount |
|
R064141280 |
5% Capped Account |
0 |
| Property Deed Transaction History (Recorded in the County Clerk's Office) | ||||||||||
|---|---|---|---|---|---|---|---|---|---|---|
| Date | Type | Book | Page | Price | Grantor | Grantee | ||||
|
9/24/2024 |
|
Sheriff's/Ma |
$175,000 |
LOCKWOOD ROBERT L JR |
MAPLE AVENUE PROPERTY LLC |
|||||
|
12/27/2006 |
|
Deeds |
$0 |
LOCKWOOD ROBERT L JR |
LOCKWOOD ROBERT L JR |
|||||
|
2/26/2001 |
|
Deeds |
$0 |
LOCKWOOD ROBERT L JR LOCKWOOD ROBERT L SR |
LOCKWOOD ROBERT L JR |
|||||
|
2/26/2001 |
|
Deeds |
$0 |
LOCKWOOD ROBERT L JR |
LOCKWOOD ROBERT L JR |
|||||
|
12/21/1998 |
|
Historical |
$19,000 |
HOME EQUITIES |
LOCKWOOD ROBERT L JR |
|||||
| Last Mailed Notice of Value (N.O.V.) Information/History | ||||||||
|---|---|---|---|---|---|---|---|---|
| Year | Date | Market Value | Taxable Market Value | Gross Assessed | Exemption | Net Assessed | ||
|
2025 |
02/14/2025 |
227,500 |
227,500 |
25,025 |
0 |
25,025 |
||
|
2024 |
02/13/2024 |
220,500 |
83,044 |
9,133 |
0 |
9,133 |
||
|
2023 |
02/14/2023 |
201,500 |
79,090 |
8,699 |
1,000 |
7,699 |
||
|
2022 |
03/15/2022 |
156,500 |
79,090 |
8,699 |
1,000 |
7,699 |
||
|
2021 |
03/19/2021 |
129,500 |
79,090 |
8,699 |
1,000 |
7,699 |
||
| Property Building Permit History | |||||||||||
|---|---|---|---|---|---|---|---|---|---|---|---|
| Issued | Permit # | Provided by | Bldg # | Description | Est Construction Cost | Status | |||||
| No Building Permit records returned. | |||||||||||
| Click button on building number to access detailed information: | ||||||
|---|---|---|---|---|---|---|
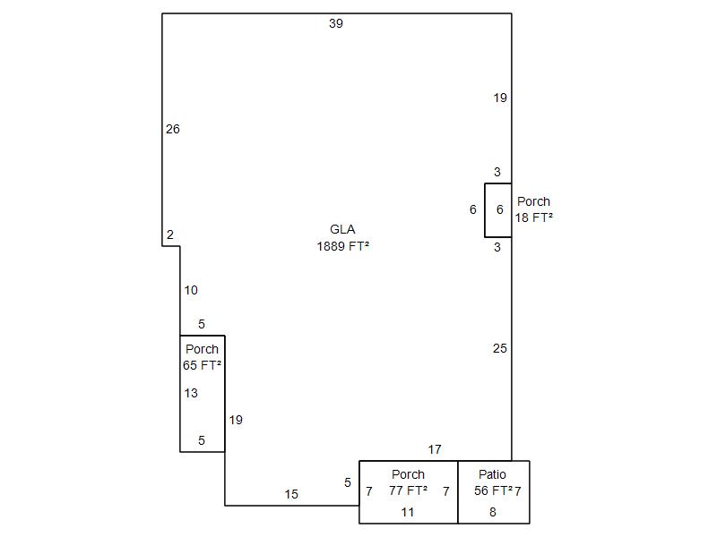
| Bldg # | Vacant/Improved Land | Bldg Description | Year Built | SqFt | # Stories | |
|
1 |
Improved |
Duplex One Story |
1929 |
1,889 |
1 Stories |
|