|
|
|
| Larry Stein Oklahoma County Assessor (405) 713-1200 - Public Access System |
|
|
|
|
|
|
| Real Property Display - Screen Produced 4/12/2026 6:08:44 PM | ||||
|---|---|---|---|---|
| Account: R064142010 | Type: Residential | Location: |
2600 NW 12TH ST |
|
| Building Name/Occupant: |
|
OKLAHOMA CITY |
||
| Owner Name 1: | MAHISTEDT ERIC |
Parcel PIN#: |
2719-06-414-2010 |
|
| Owner Name 2: | MAHLSTEDT KRISTEN | 1/4 section #: |
2719 |
|
| Owner Name 3: | Parent Acct: |
|
||
| Billing Address: | 1228 MASTERPIECE DR | Tax District: |
|
|
| City, State, Zip | OCEANSIDE, CA 92057-7808 | School System: |
Oklahoma City #89 |
|
|
Country: (If noted) |
Land Size: |
0.1641 Acres |
||
|
Land Value: 31,103 |
|
|||
|
Sect 30-T12N-R3W Qtr SW |
MILLERS BOULEVARD
Block
010
Lot
000
|
|||
| Full Legal Description: MILLERS BOULEVARD 010 000 N143FT OF E50FT OF LOT 1 |
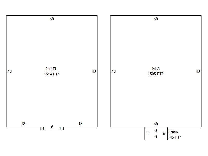
| Photo & Sketch (if available) | Comp Sales (ordered by relevancy) |
|
||||||||||||||||||
|
||||||||||||||||||||
| Value History (*The County Treasurer 405-713-1300 posts & collects actual tax amounts. Contact information HERE) | |||||||||||||
|---|---|---|---|---|---|---|---|---|---|---|---|---|---|
| Year | Market Value | Taxable Mkt Value | Gross Assessed | Exemption | Net Assessed | Millage | Est. Tax | Tax Savings | |||||
|
2026 |
330,000 |
330,000 |
36,300 |
0 |
36,300 |
122.90 |
$4,461 |
$0 |
|||||
|
2025 |
316,000 |
316,000 |
34,760 |
0 |
34,760 |
122.90 |
$4,272 |
$0 |
|||||
|
2024 |
321,500 |
236,734 |
26,040 |
0 |
26,040 |
123.89 |
$3,226 |
$1,155 |
|||||
|
2023 |
285,000 |
225,461 |
24,799 |
0 |
24,799 |
122.82 |
$3,046 |
$804 |
|||||
|
2022 |
246,000 |
214,725 |
23,619 |
0 |
23,619 |
117.63 |
$2,778 |
$405 |
|||||
| Property Account Status/Adjustments/Exemptions | ||
|---|---|---|
| Account # | Exemption Description | Amount |
|
R064142010 |
5% Capped Account |
0 |
| Property Deed Transaction History (Recorded in the County Clerk's Office) | ||||||||||
|---|---|---|---|---|---|---|---|---|---|---|
| Date | Type | Book | Page | Price | Grantor | Grantee | ||||
|
10/11/2024 |
|
Deeds |
$350,000 |
2600 NW 12 LLC |
MAHISTEDT ERIC |
|||||
|
5/29/2020 |
|
Deeds |
$205,000 |
HOME AT LAST INC |
2600 NW 12 LLC |
|||||
|
6/12/2015 |
|
Deeds |
$127,000 |
WELDE ENTERPRISES |
HOME AT LAST INC |
|||||
|
11/9/2009 |
|
Hmstd Off & |
$0 |
WELDE ENTERPRISES LLC |
WELDE ENTERPRISES |
|||||
|
6/27/2006 |
|
Other |
$0 |
WELDE SHAWNN & CHARLES |
WELDE ENTERPRISES LLC |
|||||
| Last Mailed Notice of Value (N.O.V.) Information/History | ||||||||
|---|---|---|---|---|---|---|---|---|
| Year | Date | Market Value | Taxable Market Value | Gross Assessed | Exemption | Net Assessed | ||
|
2026 |
02/23/2026 |
330,000 |
330,000 |
36,300 |
0 |
36,300 |
||
|
2025 |
02/14/2025 |
316,000 |
316,000 |
34,760 |
0 |
34,760 |
||
|
2024 |
02/13/2024 |
321,500 |
236,734 |
26,040 |
0 |
26,040 |
||
|
2023 |
02/14/2023 |
285,000 |
225,461 |
24,799 |
0 |
24,799 |
||
|
2022 |
03/15/2022 |
246,000 |
214,725 |
23,619 |
0 |
23,619 |
||
| Property Building Permit History | |||||||||||
|---|---|---|---|---|---|---|---|---|---|---|---|
| Issued | Permit # | Provided by | Bldg # | Description | Est Construction Cost | Status | |||||
| No Building Permit records returned. | |||||||||||
| Click button on building number to access detailed information: | ||||||
|---|---|---|---|---|---|---|
| Bldg # | Vacant/Improved Land | Bldg Description | Year Built | SqFt | # Stories | |
|
1 |
Improved |
Apartment <= 3 Stories |
1925 |
3,019 |
2 Stories |
|