|
|
|
| Larry Stein Oklahoma County Assessor (405) 713-1200 - Public Access System |
|
|
|
|
|
|
| Real Property Display - Screen Produced 4/14/2026 4:42:52 AM | ||||
|---|---|---|---|---|
| Account: R064142030 | Type: Residential | Location: |
2608 NW 12TH ST |
|
| Building Name/Occupant: |
|
OKLAHOMA CITY |
||
| Owner Name 1: | BAILEY LEVI A |
Parcel PIN#: |
2719-06-414-2030 |
|
| Owner Name 2: | BAILEY EDEN A | 1/4 section #: |
2719 |
|
| Owner Name 3: | Parent Acct: |
|
||
| Billing Address: | 314 TANGLEWOOD LN | Tax District: |
|
|
| City, State, Zip | HIGHLAND VILLAGE, TX 75077 | School System: |
Oklahoma City #89 |
|
|
Country: (If noted) |
UNITED STATES |
Land Size: |
0.1722 Acres |
|
|
Land Value: 32,625 |
|
|||
|
Sect 30-T12N-R3W Qtr SW |
MILLERS BOULEVARD
Block
010
Lot
000
|
|||
| Full Legal Description: MILLERS BOULEVARD 010 000 W42FT OF LOT 2 & E8FT LOT 3 |
| Photo & Sketch (if available) | Comp Sales (ordered by relevancy) |
|
||||||||||||||||||
|
||||||||||||||||||||
| Value History (*The County Treasurer 405-713-1300 posts & collects actual tax amounts. Contact information HERE) | |||||||||||||
|---|---|---|---|---|---|---|---|---|---|---|---|---|---|
| Year | Market Value | Taxable Mkt Value | Gross Assessed | Exemption | Net Assessed | Millage | Est. Tax | Tax Savings | |||||
|
2026 |
218,000 |
163,363 |
17,969 |
0 |
17,969 |
122.90 |
$2,209 |
$739 |
|||||
|
2025 |
220,500 |
155,584 |
17,113 |
0 |
17,113 |
122.90 |
$2,103 |
$878 |
|||||
|
2024 |
214,500 |
148,176 |
16,299 |
0 |
16,299 |
123.89 |
$2,019 |
$904 |
|||||
|
2023 |
197,000 |
141,120 |
15,523 |
0 |
15,523 |
122.82 |
$1,907 |
$755 |
|||||
|
2022 |
153,500 |
134,400 |
14,784 |
0 |
14,784 |
117.63 |
$1,739 |
$247 |
|||||
| Property Account Status/Adjustments/Exemptions | ||
|---|---|---|
| Account # | Exemption Description | Amount |
|
R064142030 |
5% Capped Account |
0 |
| Property Deed Transaction History (Recorded in the County Clerk's Office) | ||||||||||
|---|---|---|---|---|---|---|---|---|---|---|
| Date | Type | Book | Page | Price | Grantor | Grantee | ||||
|
5/16/2019 |
|
Deeds |
$130,000 |
GUINN TRENT & ELAINE |
BAILEY LEVI A |
|||||
|
3/24/2017 |
|
Deeds |
$95,000 |
J RHODES PROPERTIES LLC |
GUINN TRENT & ELAINE |
|||||
|
2/6/2015 |
|
Mult Parcel |
$180,000 |
METHVIN JOHN R |
J RHODES PROPERTIES LLC |
|||||
|
8/10/2010 |
|
Deeds |
$24,000 |
MOORE LARRY L |
METHVIN JOHN R |
|||||
|
8/6/2010 |
|
Deeds |
$24,000 |
MARTIN C L JR & VIRGINA SUE |
METHVIN JOHN R |
|||||
| Last Mailed Notice of Value (N.O.V.) Information/History | ||||||||
|---|---|---|---|---|---|---|---|---|
| Year | Date | Market Value | Taxable Market Value | Gross Assessed | Exemption | Net Assessed | ||
|
2026 |
02/23/2026 |
218,000 |
163,363 |
17,969 |
0 |
17,969 |
||
|
2025 |
02/14/2025 |
220,500 |
155,584 |
17,113 |
0 |
17,113 |
||
|
2024 |
02/13/2024 |
214,500 |
148,176 |
16,299 |
0 |
16,299 |
||
|
2023 |
02/14/2023 |
197,000 |
141,120 |
15,523 |
0 |
15,523 |
||
|
2022 |
03/15/2022 |
153,500 |
134,400 |
14,784 |
0 |
14,784 |
||
| Property Building Permit History | ||||||
|---|---|---|---|---|---|---|
| Issued | Permit # | Provided by | Bldg # | Description | Est Construction Cost | Status |
|
4/30/1998 |
10194076 |
OKLAHOMA CITY |
1 |
Fire Remodel |
9,000 |
Inactive |
| Click button on building number to access detailed information: | ||||||
|---|---|---|---|---|---|---|
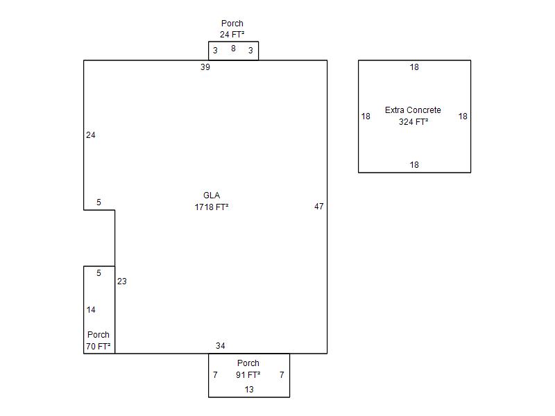
| Bldg # | Vacant/Improved Land | Bldg Description | Year Built | SqFt | # Stories | |
|
1 |
Improved |
Duplex One Story |
1926 |
1,718 |
1 Stories |
|