|
|
|
| Larry Stein Oklahoma County Assessor (405) 713-1200 - Public Access System |
|
|
|
|
|
|
| Real Property Display - Screen Produced 4/14/2026 4:53:16 AM | ||||
|---|---|---|---|---|
| Account: R064142080 | Type: Residential | Location: |
2632 NW 12TH ST |
|
| Building Name/Occupant: |
|
OKLAHOMA CITY |
||
| Owner Name 1: | THOMAS CHARLES |
Parcel PIN#: |
2719-06-414-2080 |
|
| Owner Name 2: | 1/4 section #: |
2719 |
||
| Owner Name 3: | Parent Acct: |
|
||
| Billing Address: | 2632 NW 12TH ST | Tax District: |
|
|
| City, State, Zip | OKLAHOMA CITY, OK 73107 | School System: |
Oklahoma City #89 |
|
|
Country: (If noted) |
Land Size: |
0.1722 Acres |
||
|
Land Value: 32,625 |
|
|||
|
Sect 30-T12N-R3W Qtr SW |
MILLERS BOULEVARD
Block
010
Lot
000
|
|||
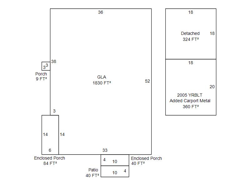
| Full Legal Description: MILLERS BOULEVARD 010 000 W5FT OF LOT 5 & E45FT LOT 6 |
| Photo & Sketch (if available) | Comp Sales (ordered by relevancy) |
|
||||||||||||||||||
|
||||||||||||||||||||
| Value History (*The County Treasurer 405-713-1300 posts & collects actual tax amounts. Contact information HERE) | |||||||||||||
|---|---|---|---|---|---|---|---|---|---|---|---|---|---|
| Year | Market Value | Taxable Mkt Value | Gross Assessed | Exemption | Net Assessed | Millage | Est. Tax | Tax Savings | |||||
|
2026 |
238,000 |
223,986 |
24,638 |
0 |
24,638 |
122.90 |
$3,028 |
$189 |
|||||
|
2025 |
244,000 |
213,320 |
23,464 |
0 |
23,464 |
122.90 |
$2,884 |
$415 |
|||||
|
2024 |
240,500 |
203,162 |
22,347 |
0 |
22,347 |
123.89 |
$2,769 |
$509 |
|||||
|
2023 |
232,000 |
193,488 |
21,283 |
0 |
21,283 |
122.82 |
$2,614 |
$520 |
|||||
|
2022 |
189,500 |
184,275 |
20,270 |
0 |
20,270 |
117.63 |
$2,384 |
$68 |
|||||
| Property Account Status/Adjustments/Exemptions | ||
|---|---|---|
| Account # | Exemption Description | Amount |
|
R064142080 |
5% Capped Account |
0 |
| Property Deed Transaction History (Recorded in the County Clerk's Office) | ||||||||||
|---|---|---|---|---|---|---|---|---|---|---|
| Date | Type | Book | Page | Price | Grantor | Grantee | ||||
|
3/1/2018 |
|
Deeds |
$180,000 |
SHAFFER JANET L |
THOMAS CHARLES |
|||||
|
6/27/2014 |
|
Deeds |
$131,000 |
VAUGHN OLEN D |
SHAFFER JANET L |
|||||
|
6/27/2014 |
|
Deeds |
$0 |
VAUGHN OLEN D |
SHAFFER JANET L |
|||||
|
2/24/2014 |
|
Hmstd Off & |
$0 |
VAUGHN JAMES E |
VAUGHN OLEN D |
|||||
|
6/4/2007 |
|
Deeds |
$0 |
VAUGHN JAMES E KINTZ WARWICK W |
VAUGHN JAMES E |
|||||
| Last Mailed Notice of Value (N.O.V.) Information/History | ||||||||
|---|---|---|---|---|---|---|---|---|
| Year | Date | Market Value | Taxable Market Value | Gross Assessed | Exemption | Net Assessed | ||
|
2026 |
02/23/2026 |
238,000 |
223,986 |
24,638 |
0 |
24,638 |
||
|
2025 |
02/14/2025 |
244,000 |
213,320 |
23,464 |
0 |
23,464 |
||
|
2024 |
02/13/2024 |
240,500 |
203,162 |
22,347 |
0 |
22,347 |
||
|
2023 |
02/14/2023 |
232,000 |
193,488 |
21,283 |
0 |
21,283 |
||
|
2022 |
03/15/2022 |
189,500 |
184,275 |
20,270 |
0 |
20,270 |
||
| Property Building Permit History | |||||||||||
|---|---|---|---|---|---|---|---|---|---|---|---|
| Issued | Permit # | Provided by | Bldg # | Description | Est Construction Cost | Status | |||||
| No Building Permit records returned. | |||||||||||
| Click button on building number to access detailed information: | ||||||
|---|---|---|---|---|---|---|
| Bldg # | Vacant/Improved Land | Bldg Description | Year Built | SqFt | # Stories | |
|
1 |
Improved |
Ranch 1 Story |
1926 |
1,830 |
1 Stories |
|