|
|
|
| Larry Stein Oklahoma County Assessor (405) 713-1200 - Public Access System |
|
|
|
|
|
|
| Real Property Display - Screen Produced 4/14/2026 4:41:27 AM | ||||
|---|---|---|---|---|
| Account: R064142220 | Type: Residential | Location: |
2619 NW 11TH ST |
|
| Building Name/Occupant: |
|
OKLAHOMA CITY |
||
| Owner Name 1: | DELACRUZ LUIS HUMBERTO |
Parcel PIN#: |
2719-06-414-2220 |
|
| Owner Name 2: | RUIZ LESBIA GRAMAJO | 1/4 section #: |
2719 |
|
| Owner Name 3: | Parent Acct: |
|
||
| Billing Address: | 4333 NW 25TH ST | Tax District: |
|
|
| City, State, Zip | OKLAHOMA CITY, OK 73107-1012 | School System: |
Oklahoma City #89 |
|
|
Country: (If noted) |
Land Size: |
0.1722 Acres |
||
|
Land Value: 32,625 |
|
|||
|
Sect 30-T12N-R3W Qtr SW |
MILLERS BOULEVARD
Block
010
Lot
000
|
|||
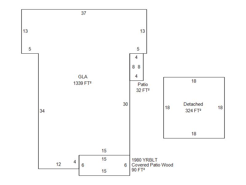
| Full Legal Description: MILLERS BOULEVARD 010 000 E37FT OF LOT 14 W13FT LOT 15 |
| Photo & Sketch (if available) | Comp Sales (ordered by relevancy) |
|
||||||||||||||||||
|
||||||||||||||||||||
| Value History (*The County Treasurer 405-713-1300 posts & collects actual tax amounts. Contact information HERE) | |||||||||||||
|---|---|---|---|---|---|---|---|---|---|---|---|---|---|
| Year | Market Value | Taxable Mkt Value | Gross Assessed | Exemption | Net Assessed | Millage | Est. Tax | Tax Savings | |||||
|
2026 |
172,500 |
71,106 |
7,821 |
0 |
7,821 |
122.90 |
$961 |
$1,371 |
|||||
|
2025 |
169,000 |
67,720 |
7,448 |
0 |
7,448 |
122.90 |
$916 |
$1,369 |
|||||
|
2024 |
163,500 |
64,496 |
7,093 |
0 |
7,093 |
123.89 |
$879 |
$1,349 |
|||||
|
2023 |
155,000 |
61,425 |
6,756 |
0 |
6,756 |
122.82 |
$830 |
$1,264 |
|||||
|
2022 |
119,500 |
58,500 |
6,433 |
0 |
6,433 |
117.63 |
$757 |
$789 |
|||||
| Property Account Status/Adjustments/Exemptions | ||
|---|---|---|
| Account # | Exemption Description | Amount |
|
R064142220 |
5% Capped Account |
0 |
| Property Deed Transaction History (Recorded in the County Clerk's Office) | ||||||||||
|---|---|---|---|---|---|---|---|---|---|---|
| Date | Type | Book | Page | Price | Grantor | Grantee | ||||
|
4/1/1997 |
|
Historical |
$0 |
CHEONG ARMANDO |
DELACRUZ LUIS HUMBERTO |
|||||
|
9/4/1991 |
|
Historical |
$0 |
SECRETARY OF HOUSING |
CHEONG ARMANDO |
|||||
|
7/23/1991 |
|
Historical |
$0 |
POURKHOSROW GHASEM & TERILYN G |
SECRETARY OF HOUSING |
|||||
|
11/9/1990 |
|
Historical |
$0 |
POURKHOSROW GHASEM & TERILYN G |
POURKHOSROW GHASEM & TERILYN G |
|||||
|
11/1/1990 |
|
Historical |
$0 |
MERZ JIM |
POURKHOSROW GHASEM & TERILYN G |
|||||
| Last Mailed Notice of Value (N.O.V.) Information/History | ||||||||
|---|---|---|---|---|---|---|---|---|
| Year | Date | Market Value | Taxable Market Value | Gross Assessed | Exemption | Net Assessed | ||
|
2026 |
02/23/2026 |
172,500 |
71,106 |
7,821 |
0 |
7,821 |
||
|
2025 |
02/14/2025 |
169,000 |
67,720 |
7,448 |
0 |
7,448 |
||
|
2024 |
02/13/2024 |
163,500 |
64,496 |
7,093 |
0 |
7,093 |
||
|
2023 |
02/14/2023 |
155,000 |
61,425 |
6,756 |
0 |
6,756 |
||
|
2022 |
03/15/2022 |
119,500 |
58,500 |
6,433 |
0 |
6,433 |
||
| Property Building Permit History | |||||||||||
|---|---|---|---|---|---|---|---|---|---|---|---|
| Issued | Permit # | Provided by | Bldg # | Description | Est Construction Cost | Status | |||||
| No Building Permit records returned. | |||||||||||
| Click button on building number to access detailed information: | ||||||
|---|---|---|---|---|---|---|
| Bldg # | Vacant/Improved Land | Bldg Description | Year Built | SqFt | # Stories | |
|
1 |
Improved |
Duplex One Story |
1930 |
1,339 |
1 Stories |
|