|
|
|
| Larry Stein Oklahoma County Assessor (405) 713-1200 - Public Access System |
|
|
|
|
|
|
| Real Property Display - Screen Produced 4/14/2026 4:44:33 AM | ||||
|---|---|---|---|---|
| Account: R064142480 | Type: Residential | Location: |
2613 NW 12TH ST |
|
| Building Name/Occupant: |
|
OKLAHOMA CITY |
||
| Owner Name 1: | EMCO PROPERTIES LLC |
Parcel PIN#: |
2719-06-414-2480 |
|
| Owner Name 2: | 1/4 section #: |
2719 |
||
| Owner Name 3: | Parent Acct: |
|
||
| Billing Address: | 2636 NW 15TH ST | Tax District: |
|
|
| City, State, Zip | OKLAHOMA CITY, OK 73107-4824 | School System: |
Oklahoma City #89 |
|
|
Country: (If noted) |
Land Size: |
0.1722 Acres |
||
|
Land Value: 32,625 |
|
|||
|
Sect 30-T12N-R3W Qtr SW |
MILLERS BOULEVARD
Block
011
Lot
015
|
|||
| Full Legal Description: MILLERS BOULEVARD 011 015 E50FT OF W63FT |
| Photo & Sketch (if available) | Comp Sales (ordered by relevancy) |
|
||||||||||||||||||
|
||||||||||||||||||||
| Value History (*The County Treasurer 405-713-1300 posts & collects actual tax amounts. Contact information HERE) | |||||||||||||
|---|---|---|---|---|---|---|---|---|---|---|---|---|---|
| Year | Market Value | Taxable Mkt Value | Gross Assessed | Exemption | Net Assessed | Millage | Est. Tax | Tax Savings | |||||
|
2026 |
249,000 |
152,173 |
16,738 |
0 |
16,738 |
122.90 |
$2,057 |
$1,309 |
|||||
|
2025 |
252,500 |
144,927 |
15,941 |
0 |
15,941 |
122.90 |
$1,959 |
$1,454 |
|||||
|
2024 |
249,500 |
138,026 |
15,181 |
0 |
15,181 |
123.89 |
$1,881 |
$1,519 |
|||||
|
2023 |
234,500 |
131,454 |
14,459 |
0 |
14,459 |
122.82 |
$1,776 |
$1,392 |
|||||
|
2022 |
186,500 |
125,195 |
13,770 |
0 |
13,770 |
117.63 |
$1,620 |
$793 |
|||||
| Property Account Status/Adjustments/Exemptions | ||
|---|---|---|
| Account # | Exemption Description | Amount |
|
R064142480 |
5% Capped Account |
0 |
| Property Deed Transaction History (Recorded in the County Clerk's Office) | ||||||||||
|---|---|---|---|---|---|---|---|---|---|---|
| Date | Type | Book | Page | Price | Grantor | Grantee | ||||
|
1/24/2017 |
|
Hmstd Off & |
$0 |
WATSON JEFFREY M PHILLIPS NEELY A |
EMCO PROPERTIES LLC |
|||||
|
6/21/2016 |
|
Deeds |
$108,000 |
WAZZAN INVESTMENTS LLC |
WATSON JEFFREY M PHILLIPS NEELY A |
|||||
|
12/19/2014 |
|
Deeds |
$54,000 |
ARENDS CHARLES E |
WAZZAN INVESTMENTS LLC |
|||||
|
9/25/1996 |
|
Historical |
$0 |
ARENDS PHILLIP G |
ARENDS CHARLES E |
|||||
|
12/13/1989 |
|
Historical |
$36,000 |
ADMR OF VETERANS AFFAIRS |
ARENDS PHILLIP G |
|||||
| Last Mailed Notice of Value (N.O.V.) Information/History | ||||||||
|---|---|---|---|---|---|---|---|---|
| Year | Date | Market Value | Taxable Market Value | Gross Assessed | Exemption | Net Assessed | ||
|
2026 |
02/23/2026 |
249,000 |
152,173 |
16,738 |
0 |
16,738 |
||
|
2025 |
02/14/2025 |
252,500 |
144,927 |
15,941 |
0 |
15,941 |
||
|
2024 |
02/13/2024 |
249,500 |
138,026 |
15,181 |
0 |
15,181 |
||
|
2023 |
02/14/2023 |
234,500 |
131,454 |
14,459 |
0 |
14,459 |
||
|
2022 |
03/15/2022 |
186,500 |
125,195 |
13,770 |
0 |
13,770 |
||
| Property Building Permit History | |||||||||||
|---|---|---|---|---|---|---|---|---|---|---|---|
| Issued | Permit # | Provided by | Bldg # | Description | Est Construction Cost | Status | |||||
| No Building Permit records returned. | |||||||||||
| Click button on building number to access detailed information: | ||||||
|---|---|---|---|---|---|---|
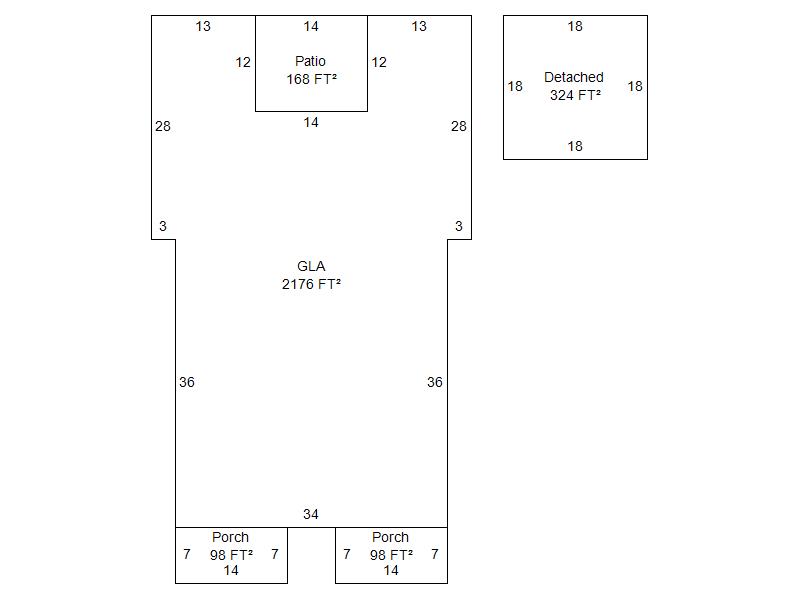
| Bldg # | Vacant/Improved Land | Bldg Description | Year Built | SqFt | # Stories | |
|
1 |
Improved |
Duplex One Story |
1926 |
2,176 |
1 Stories |
|