|
|
|
| Larry Stein Oklahoma County Assessor (405) 713-1200 - Public Access System |
|
|
|
|
|
|
| Real Property Display - Screen Produced 4/12/2026 6:21:28 PM | ||||
|---|---|---|---|---|
| Account: R064143140 | Type: Residential | Location: |
2630 NW 16TH ST |
|
| Building Name/Occupant: |
|
OKLAHOMA CITY |
||
| Owner Name 1: | NGUYEN HANH LUONG NGHIA |
Parcel PIN#: |
2719-06-414-3140 |
|
| Owner Name 2: | 1/4 section #: |
2719 |
||
| Owner Name 3: | Parent Acct: |
|
||
| Billing Address: | 2630 NW 16TH ST | Tax District: |
|
|
| City, State, Zip | OKLAHOMA CITY, OK 73107-4842 | School System: |
Oklahoma City #89 |
|
|
Country: (If noted) |
Land Size: |
0.1722 Acres |
||
|
Land Value: 32,625 |
|
|||
|
Sect 30-T12N-R3W Qtr SW |
MILLERS BOULEVARD
Block
014
Lot
000
|
|||
| Full Legal Description: MILLERS BOULEVARD 014 000 W5FT OF LOT 5 & E45FT LOT 6 |
| Photo & Sketch (if available) | Comp Sales (ordered by relevancy) |
|
||||||||||||||||||
|
||||||||||||||||||||
| Value History (*The County Treasurer 405-713-1300 posts & collects actual tax amounts. Contact information HERE) | |||||||||||||
|---|---|---|---|---|---|---|---|---|---|---|---|---|---|
| Year | Market Value | Taxable Mkt Value | Gross Assessed | Exemption | Net Assessed | Millage | Est. Tax | Tax Savings | |||||
|
2026 |
196,000 |
100,171 |
11,018 |
0 |
11,018 |
122.90 |
$1,354 |
$1,296 |
|||||
|
2025 |
193,500 |
95,401 |
10,493 |
0 |
10,493 |
122.90 |
$1,290 |
$1,326 |
|||||
|
2024 |
187,000 |
90,859 |
9,993 |
0 |
9,993 |
123.89 |
$1,238 |
$1,310 |
|||||
|
2023 |
177,500 |
86,533 |
9,518 |
0 |
9,518 |
122.82 |
$1,169 |
$1,229 |
|||||
|
2022 |
137,000 |
82,413 |
9,064 |
0 |
9,064 |
117.63 |
$1,066 |
$706 |
|||||
| Property Account Status/Adjustments/Exemptions | ||
|---|---|---|
| Account # | Exemption Description | Amount |
|
R064143140 |
5% Capped Account |
0 |
| Property Deed Transaction History (Recorded in the County Clerk's Office) | |||||||
|---|---|---|---|---|---|---|---|
| Date | Type | Book | Page | Price | Grantor | Grantee | |
|
7/24/2006 |
|
Deeds |
$5,000 |
TRAN NAM VAN NGUYEN LY THI |
NGUYEN HANH LUONG NGHIA |
||
|
9/13/1999 |
|
Deeds |
$30,000 |
NGUYEN THANH VAN & LAN XUAN T NGUYEN THU VAN & PHUONG THI T |
TRAN NAM VAN NGUYEN LY THI |
||
|
4/20/1992 |
|
Historical |
$0 |
THU VAN NUGUYEN & PHUONG THI T |
NGUYEN THANH VAN & LAN XUAN T |
||
|
4/1/1980 |
|
Historical |
$0 |
|
THU VAN NUGUYEN & PHUONG THI T |
||
| Last Mailed Notice of Value (N.O.V.) Information/History | ||||||||
|---|---|---|---|---|---|---|---|---|
| Year | Date | Market Value | Taxable Market Value | Gross Assessed | Exemption | Net Assessed | ||
|
2026 |
02/23/2026 |
196,000 |
100,171 |
11,018 |
0 |
11,018 |
||
|
2025 |
02/14/2025 |
193,500 |
95,401 |
10,493 |
0 |
10,493 |
||
|
2024 |
02/13/2024 |
187,000 |
90,859 |
9,993 |
0 |
9,993 |
||
|
2023 |
02/14/2023 |
177,500 |
86,533 |
9,518 |
0 |
9,518 |
||
|
2022 |
03/15/2022 |
137,000 |
82,413 |
9,064 |
0 |
9,064 |
||
| Property Building Permit History | |||||||||||
|---|---|---|---|---|---|---|---|---|---|---|---|
| Issued | Permit # | Provided by | Bldg # | Description | Est Construction Cost | Status | |||||
| No Building Permit records returned. | |||||||||||
| Click button on building number to access detailed information: | ||||||
|---|---|---|---|---|---|---|
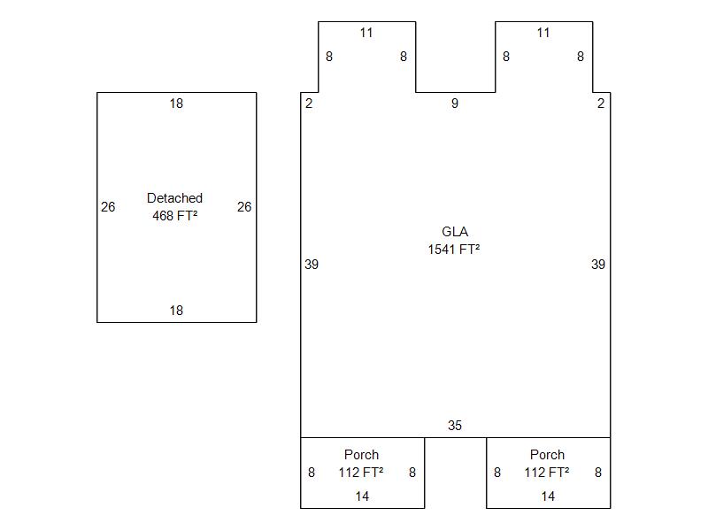
| Bldg # | Vacant/Improved Land | Bldg Description | Year Built | SqFt | # Stories | |
|
1 |
Improved |
Duplex One Story |
1928 |
1,541 |
1 Stories |
|