|
|
|
| Larry Stein Oklahoma County Assessor (405) 713-1200 - Public Access System |
|
|
|
|
|
|
| Real Property Display - Screen Produced 4/14/2026 4:54:03 AM | ||||
|---|---|---|---|---|
| Account: R064144360 | Type: Residential | Location: |
2700 NW 16TH ST |
|
| Building Name/Occupant: |
|
OKLAHOMA CITY |
||
| Owner Name 1: | BALLARD GLASGOW GAYLE |
Parcel PIN#: |
2719-06-414-4360 |
|
| Owner Name 2: | 1/4 section #: |
2719 |
||
| Owner Name 3: | Parent Acct: |
|
||
| Billing Address: | 218 GLASGOW RD | Tax District: |
|
|
| City, State, Zip | PETROLIA, TX 76377 | School System: |
Oklahoma City #89 |
|
|
Country: (If noted) |
Land Size: |
0.1205 Acres |
||
|
Land Value: 22,838 |
|
|||
|
Sect 30-T12N-R3W Qtr SW |
MILLERS BOULEVARD
Block
015
Lot
000
|
|||
| Full Legal Description: MILLERS BOULEVARD 015 000 E50FT OF LOT 1 |
| Photo & Sketch (if available) | Comp Sales (ordered by relevancy) |
|
||||||||||||||||||
|
||||||||||||||||||||
| Value History (*The County Treasurer 405-713-1300 posts & collects actual tax amounts. Contact information HERE) | |||||||||||||
|---|---|---|---|---|---|---|---|---|---|---|---|---|---|
| Year | Market Value | Taxable Mkt Value | Gross Assessed | Exemption | Net Assessed | Millage | Est. Tax | Tax Savings | |||||
|
2026 |
267,500 |
267,500 |
29,425 |
0 |
29,425 |
122.90 |
$3,616 |
$0 |
|||||
|
2025 |
275,500 |
275,500 |
30,305 |
0 |
30,305 |
122.90 |
$3,724 |
$0 |
|||||
|
2024 |
270,000 |
270,000 |
29,700 |
0 |
29,700 |
123.89 |
$3,680 |
$0 |
|||||
|
2023 |
261,000 |
261,000 |
28,710 |
0 |
28,710 |
122.82 |
$3,526 |
$0 |
|||||
|
2022 |
238,000 |
209,527 |
23,047 |
1,000 |
22,047 |
117.63 |
$2,594 |
$486 |
|||||
| Property Account Status/Adjustments/Exemptions | ||
|---|---|---|
| Account # | Exemption Description | Amount |
|
R064144360 |
5% Capped Account |
0 |
| Property Deed Transaction History (Recorded in the County Clerk's Office) | ||||||||||
|---|---|---|---|---|---|---|---|---|---|---|
| Date | Type | Book | Page | Price | Grantor | Grantee | ||||
|
12/13/2022 |
|
Deeds |
$260,000 |
TACKETT MAXWELL G |
BALLARD GLASGOW GAYLE |
|||||
|
12/28/2018 |
|
Deeds |
$203,000 |
REAVIS JOHN C |
TACKETT MAXWELL G |
|||||
|
11/20/2013 |
|
Deeds |
$140,000 |
GOTTSCHALK RON S |
REAVIS JOHN C |
|||||
|
10/19/2012 |
|
Deeds |
$135,000 |
RAMAY JAMES C JR |
GOTTSCHALK RON S |
|||||
|
1/10/2006 |
|
Deeds |
$106,000 |
RAMAY ROSEY L RAMAY JAMES C JR |
RAMAY JAMES C JR |
|||||
| Last Mailed Notice of Value (N.O.V.) Information/History | ||||||||
|---|---|---|---|---|---|---|---|---|
| Year | Date | Market Value | Taxable Market Value | Gross Assessed | Exemption | Net Assessed | ||
|
2025 |
02/14/2025 |
275,500 |
275,500 |
30,305 |
0 |
30,305 |
||
|
2024 |
02/13/2024 |
270,000 |
270,000 |
29,700 |
0 |
29,700 |
||
|
2023 |
02/14/2023 |
261,000 |
261,000 |
28,710 |
0 |
28,710 |
||
|
2022 |
03/15/2022 |
238,000 |
209,527 |
23,047 |
1,000 |
22,047 |
||
|
2021 |
03/19/2021 |
221,000 |
203,425 |
22,376 |
1,000 |
21,376 |
||
| Property Building Permit History | |||||||||||
|---|---|---|---|---|---|---|---|---|---|---|---|
| Issued | Permit # | Provided by | Bldg # | Description | Est Construction Cost | Status | |||||
| No Building Permit records returned. | |||||||||||
| Click button on building number to access detailed information: | ||||||
|---|---|---|---|---|---|---|
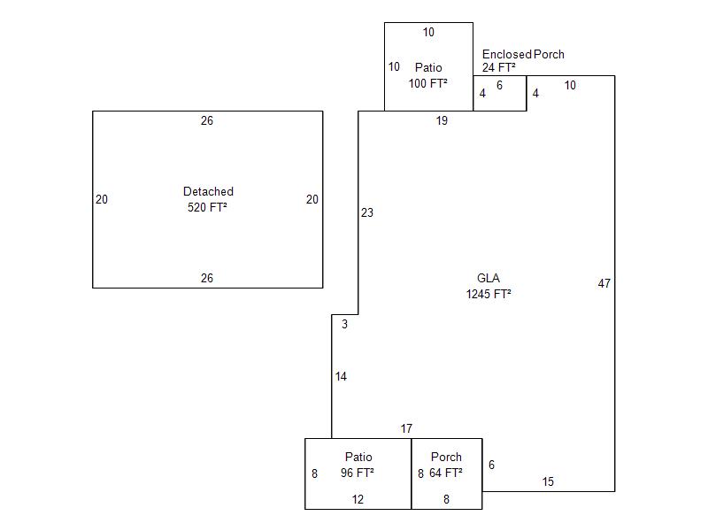
| Bldg # | Vacant/Improved Land | Bldg Description | Year Built | SqFt | # Stories | |
|
1 |
Improved |
Ranch 1 Story |
1928 |
1,245 |
1 Stories |
|