|
|
|
| Larry Stein Oklahoma County Assessor (405) 713-1200 - Public Access System |
|
|
|
|
|
|
| Real Property Display - Screen Produced 4/14/2026 4:33:30 AM | ||||
|---|---|---|---|---|
| Account: R064144550 | Type: Residential | Location: |
2712 NW 16TH ST |
|
| Building Name/Occupant: |
|
OKLAHOMA CITY |
||
| Owner Name 1: | MONTOYA NESTOR S & GLADYS F |
Parcel PIN#: |
2719-06-414-4550 |
|
| Owner Name 2: | 1/4 section #: |
2719 |
||
| Owner Name 3: | Parent Acct: |
|
||
| Billing Address: | 1944 NW 19TH ST | Tax District: |
|
|
| City, State, Zip | OKLAHOMA CITY, OK 73106-1604 | School System: |
Oklahoma City #89 |
|
|
Country: (If noted) |
Land Size: |
0.1779 Acres |
||
|
Land Value: 33,713 |
|
|||
|
Sect 30-T12N-R3W Qtr SW |
MILLERS BOULEVARD
Block
015
Lot
013
|
|||
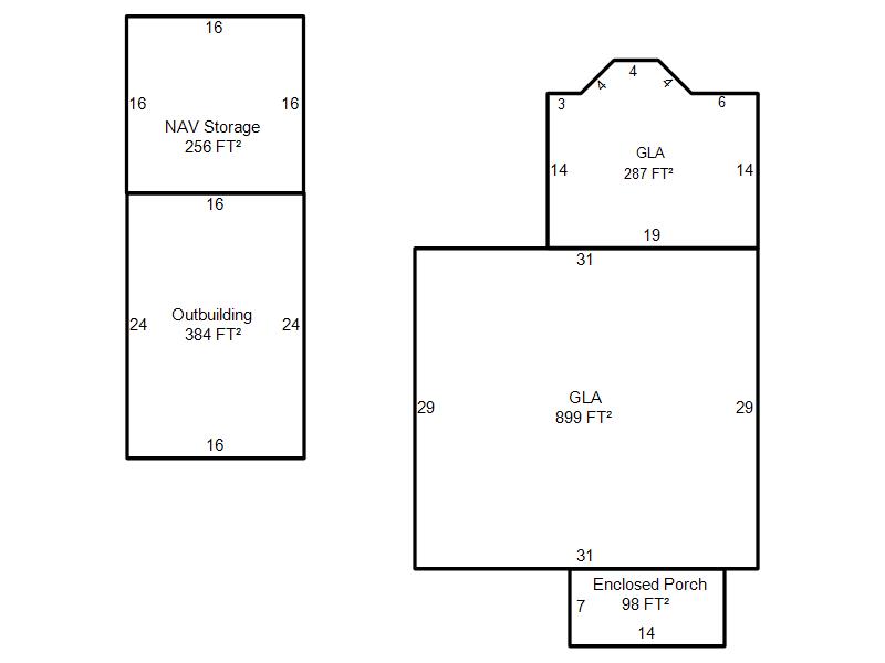
| Full Legal Description: MILLERS BOULEVARD 015 013 E50FT |
| Photo & Sketch (if available) | Comp Sales (ordered by relevancy) |
|
||||||||||||||||||
|
||||||||||||||||||||
| Value History (*The County Treasurer 405-713-1300 posts & collects actual tax amounts. Contact information HERE) | |||||||||||||
|---|---|---|---|---|---|---|---|---|---|---|---|---|---|
| Year | Market Value | Taxable Mkt Value | Gross Assessed | Exemption | Net Assessed | Millage | Est. Tax | Tax Savings | |||||
|
2026 |
171,500 |
126,772 |
13,944 |
0 |
13,944 |
122.90 |
$1,714 |
$605 |
|||||
|
2025 |
174,500 |
120,736 |
13,280 |
0 |
13,280 |
122.90 |
$1,632 |
$727 |
|||||
|
2024 |
166,000 |
114,987 |
12,648 |
0 |
12,648 |
123.89 |
$1,567 |
$695 |
|||||
|
2023 |
160,000 |
109,512 |
12,045 |
0 |
12,045 |
122.82 |
$1,480 |
$682 |
|||||
|
2022 |
124,500 |
104,298 |
11,472 |
0 |
11,472 |
117.63 |
$1,350 |
$261 |
|||||
| Property Account Status/Adjustments/Exemptions | ||||||
|---|---|---|---|---|---|---|
| Account # | Exemption Description | Amount | ||||
| No adjustment/exemption records returned. | ||||||
| Property Deed Transaction History (Recorded in the County Clerk's Office) | |||||||
|---|---|---|---|---|---|---|---|
| Date | Type | Book | Page | Price | Grantor | Grantee | |
|
3/11/2021 |
|
Hmstd Off & |
$0 |
HUAMAN NESTOR S MONTOYA |
MONTOYA NESTOR S & GLADYS F |
||
|
5/24/2002 |
|
Deeds |
$25,000 |
HOUSEHOLD FINANCE CORP III |
HUAMAN NESTOR S MONTOYA |
||
|
4/2/2002 |
|
Hmstd Off & |
$0 |
SARSYCKI ROBERT G & NANCY J |
HOUSEHOLD FINANCE CORP III |
||
|
10/1/1983 |
|
Historical |
$0 |
|
SARSYCKI ROBERT G & NANCY J |
||
| Last Mailed Notice of Value (N.O.V.) Information/History | ||||||||
|---|---|---|---|---|---|---|---|---|
| Year | Date | Market Value | Taxable Market Value | Gross Assessed | Exemption | Net Assessed | ||
|
2026 |
02/23/2026 |
171,500 |
126,772 |
13,944 |
0 |
13,944 |
||
|
2025 |
02/14/2025 |
174,500 |
120,736 |
13,280 |
0 |
13,280 |
||
|
2024 |
02/13/2024 |
166,000 |
114,987 |
12,648 |
0 |
12,648 |
||
|
2023 |
02/14/2023 |
160,000 |
109,512 |
12,045 |
0 |
12,045 |
||
|
2022 |
03/15/2022 |
124,500 |
104,298 |
11,472 |
0 |
11,472 |
||
| Property Building Permit History | |||||||||||
|---|---|---|---|---|---|---|---|---|---|---|---|
| Issued | Permit # | Provided by | Bldg # | Description | Est Construction Cost | Status | |||||
| No Building Permit records returned. | |||||||||||
| Click button on building number to access detailed information: | ||||||
|---|---|---|---|---|---|---|
| Bldg # | Vacant/Improved Land | Bldg Description | Year Built | SqFt | # Stories | |
|
1 |
Improved |
Ranch 1 Story |
1926 |
1,186 |
1 Stories |
|