|
|
|
| Larry Stein Oklahoma County Assessor (405) 713-1200 - Public Access System |
|
|
|
|
|
|
| Real Property Display - Screen Produced 4/15/2026 4:18:10 AM | ||||
|---|---|---|---|---|
| Account: R064144645 | Type: Residential | Location: |
1512 N ROSS AVE |
|
| Building Name/Occupant: |
|
OKLAHOMA CITY |
||
| Owner Name 1: | BRITTON JUSTIN |
Parcel PIN#: |
2719-06-414-4645 |
|
| Owner Name 2: | BRITTON EVERETT | 1/4 section #: |
2719 |
|
| Owner Name 3: | Parent Acct: |
|
||
| Billing Address: | 1512 N ROSS AVE | Tax District: |
|
|
| City, State, Zip | OKLAHOMA CITY, OK 73107-4743 | School System: |
Oklahoma City #89 |
|
|
Country: (If noted) |
Land Size: |
0.2720 Acres |
||
|
Land Value: 51,548 |
|
|||
|
Sect 30-T12N-R3W Qtr SW |
MILLERS BOULEVARD
Block
016
Lot
009
|
|||
| Full Legal Description: MILLERS BOULEVARD 016 009 |
| No comparable sales report available. | ||||||||||||||||||||||
|
||||||||||||||||||||||
| Value History (*The County Treasurer 405-713-1300 posts & collects actual tax amounts. Contact information HERE) | |||||||||||||
|---|---|---|---|---|---|---|---|---|---|---|---|---|---|
| Year | Market Value | Taxable Mkt Value | Gross Assessed | Exemption | Net Assessed | Millage | Est. Tax | Tax Savings | |||||
|
2026 |
162,488 |
104,140 |
11,454 |
1,000 |
10,454 |
122.90 |
$1,285 |
$912 |
|||||
|
2025 |
160,178 |
101,107 |
11,120 |
1,000 |
10,120 |
122.90 |
$1,244 |
$921 |
|||||
|
2024 |
152,740 |
98,163 |
10,797 |
1,000 |
9,797 |
123.89 |
$1,214 |
$868 |
|||||
|
2023 |
141,768 |
95,304 |
10,483 |
1,000 |
9,483 |
122.82 |
$1,165 |
$751 |
|||||
|
2022 |
139,071 |
92,529 |
10,176 |
1,000 |
9,176 |
117.63 |
$1,080 |
$720 |
|||||
| Property Account Status/Adjustments/Exemptions | ||
|---|---|---|
| Account # | Exemption Description | Amount |
|
R064144645 |
Homestead |
1,000 |
|
R064144645 |
3% Cap Homestead |
0 |
| Property Deed Transaction History (Recorded in the County Clerk's Office) | |||||||
|---|---|---|---|---|---|---|---|
| Date | Type | Book | Page | Price | Grantor | Grantee | |
|
6/11/1999 |
|
Deeds |
$19,000 |
ECKSTEIN KATHLEEN |
ECKSTEIN MARY NELL |
||
|
6/11/1999 |
|
Deeds |
$19,000 |
ECKSTEIN MARY NELL |
BRITTON JUSTIN |
||
|
7/1/1986 |
|
Historical |
$0 |
|
ECKSTEIN KATHLEEN |
||
| Last Mailed Notice of Value (N.O.V.) Information/History | ||||||||
|---|---|---|---|---|---|---|---|---|
| Year | Date | Market Value | Taxable Market Value | Gross Assessed | Exemption | Net Assessed | ||
|
2026 |
02/23/2026 |
162,488 |
104,140 |
11,454 |
1,000 |
10,454 |
||
|
2025 |
02/14/2025 |
160,178 |
101,107 |
11,120 |
1,000 |
10,120 |
||
|
2024 |
02/13/2024 |
152,740 |
98,163 |
10,797 |
1,000 |
9,797 |
||
|
2023 |
02/14/2023 |
141,768 |
95,304 |
10,483 |
1,000 |
9,483 |
||
|
2022 |
03/15/2022 |
139,071 |
92,529 |
10,176 |
1,000 |
9,176 |
||
| Property Building Permit History | |||||||||||
|---|---|---|---|---|---|---|---|---|---|---|---|
| Issued | Permit # | Provided by | Bldg # | Description | Est Construction Cost | Status | |||||
| No Building Permit records returned. | |||||||||||
| Click button on building number to access detailed information: | ||||||
|---|---|---|---|---|---|---|
| Bldg # | Vacant/Improved Land | Bldg Description | Year Built | SqFt | # Stories | |
|
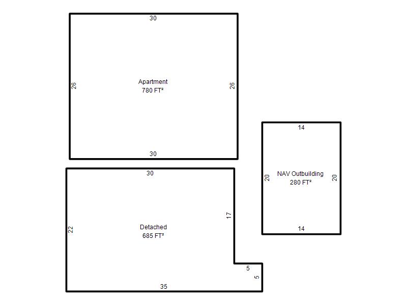
1 |
Improved |
Detached Garage |
1953 |
0 |
1 Stories |
|