|
|
|
| Larry Stein Oklahoma County Assessor (405) 713-1200 - Public Access System |
|
|
|
|
|
|
| Real Property Display - Screen Produced 4/12/2026 6:18:26 PM | ||||
|---|---|---|---|---|
| Account: R064144720 | Type: Residential | Location: |
1415 N MILLER BLVD |
|
| Building Name/Occupant: |
|
OKLAHOMA CITY |
||
| Owner Name 1: | MID AMERICA INDUSTRIES OPERATING LLC |
Parcel PIN#: |
2719-06-414-4720 |
|
| Owner Name 2: | 1/4 section #: |
2719 |
||
| Owner Name 3: | Parent Acct: |
|
||
| Billing Address: | 1409 N MILLER BLVD | Tax District: |
|
|
| City, State, Zip | OKLAHOMA CITY, OK 73107-4835 | School System: |
Oklahoma City #89 |
|
|
Country: (If noted) |
Land Size: |
0.2184 Acres |
||
|
Land Value: 41,384 |
|
|||
|
Sect 30-T12N-R3W Qtr SW |
MILLERS BOULEVARD
Block
017
Lot
000
|
|||
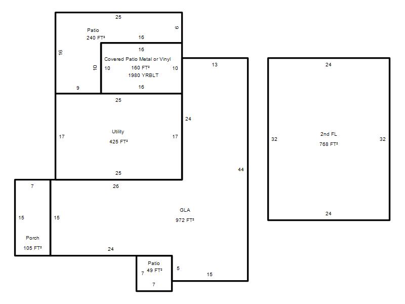
| Full Legal Description: MILLERS BOULEVARD BLK 17 PT LOTS 1 & 2 BEG 149.35FT N OF SE/C SD BLK 17 LOT 3 TH W73.07FT TH NELY25.07FT TH W77.23FT TH N52.03FT TH E149.78FT TH S75.66FT TO BEG CONT .2184 ACRS MORE OR LESS |
| Photo & Sketch (if available) | Comp Sales (ordered by relevancy) |
|
||||||||||||||||||
|
||||||||||||||||||||
| Value History (*The County Treasurer 405-713-1300 posts & collects actual tax amounts. Contact information HERE) | |||||||||||||
|---|---|---|---|---|---|---|---|---|---|---|---|---|---|
| Year | Market Value | Taxable Mkt Value | Gross Assessed | Exemption | Net Assessed | Millage | Est. Tax | Tax Savings | |||||
|
2026 |
234,000 |
171,581 |
18,873 |
0 |
18,873 |
122.90 |
$2,320 |
$844 |
|||||
|
2025 |
226,946 |
163,411 |
17,974 |
0 |
17,974 |
122.90 |
$2,209 |
$859 |
|||||
|
2024 |
229,500 |
160,810 |
17,688 |
0 |
17,688 |
123.89 |
$2,192 |
$936 |
|||||
|
2023 |
220,000 |
153,153 |
16,846 |
0 |
16,846 |
122.82 |
$2,069 |
$903 |
|||||
|
2022 |
168,000 |
145,860 |
16,044 |
0 |
16,044 |
117.63 |
$1,887 |
$286 |
|||||
| Property Account Status/Adjustments/Exemptions | ||
|---|---|---|
| Account # | Exemption Description | Amount |
|
R064144720 |
5% Capped Account |
0 |
| Property Deed Transaction History (Recorded in the County Clerk's Office) | ||||||||||
|---|---|---|---|---|---|---|---|---|---|---|
| Date | Type | Book | Page | Price | Grantor | Grantee | ||||
|
7/1/2025 |
|
Hmstd Off & |
$0 |
MID AMERICA INDUSTRIES OPERATING LLC |
MID AMERICA INDUSTRIES OPERATING LLC |
|||||
|
6/12/2018 |
|
Hmstd Off & |
$0 |
HELTZEN ROLF |
MID AMERICA INDUSTRIES OPERATING LLC |
|||||
|
11/17/2015 |
|
Deeds |
$110,000 |
WELDE SHAWNNY |
HELTZEN ROLF |
|||||
|
4/14/2006 |
|
Other |
$0 |
SECRETARY OF HOUSING & URBAN DEV |
WELDE SHAWNNY |
|||||
|
3/24/2006 |
|
Deeds |
$0 |
FLORES JUANA HERNANDEZ JUAN |
SECRETARY OF HOUSING & URBAN DEV |
|||||
| Last Mailed Notice of Value (N.O.V.) Information/History | ||||||||
|---|---|---|---|---|---|---|---|---|
| Year | Date | Market Value | Taxable Market Value | Gross Assessed | Exemption | Net Assessed | ||
|
2026 |
02/23/2026 |
234,000 |
171,581 |
18,873 |
0 |
18,873 |
||
|
2025 |
02/14/2025 |
234,500 |
168,850 |
18,573 |
0 |
18,573 |
||
|
2024 |
02/13/2024 |
229,500 |
160,810 |
17,688 |
0 |
17,688 |
||
|
2023 |
02/14/2023 |
220,000 |
153,153 |
16,846 |
0 |
16,846 |
||
|
2022 |
03/15/2022 |
168,000 |
145,860 |
16,044 |
0 |
16,044 |
||
| Property Building Permit History | |||||||||||
|---|---|---|---|---|---|---|---|---|---|---|---|
| Issued | Permit # | Provided by | Bldg # | Description | Est Construction Cost | Status | |||||
| No Building Permit records returned. | |||||||||||
| Click button on building number to access detailed information: | ||||||
|---|---|---|---|---|---|---|
| Bldg # | Vacant/Improved Land | Bldg Description | Year Built | SqFt | # Stories | |
|
1 |
Improved |
2 Story |
1936 |
1,740 |
2 Stories |
|