|
|
|
| Larry Stein Oklahoma County Assessor (405) 713-1200 - Public Access System |
|
|
|
|
|
|
| Real Property Display - Screen Produced 4/14/2026 6:14:34 AM | ||||
|---|---|---|---|---|
| Account: R064144735 | Type: Residential | Location: |
1403 N MILLER BLVD |
|
| Building Name/Occupant: |
|
OKLAHOMA CITY |
||
| Owner Name 1: | MID AMERICA INDUSTRIES OPERATING LLC |
Parcel PIN#: |
2719-06-414-4735 |
|
| Owner Name 2: | 1/4 section #: |
2719 |
||
| Owner Name 3: | Parent Acct: |
|
||
| Billing Address: | 1409 N MILLER BLVD | Tax District: |
|
|
| City, State, Zip | OKLAHOMA CITY, OK 73107-4835 | School System: |
Oklahoma City #89 |
|
|
Country: (If noted) |
Land Size: |
0.1874 Acres |
||
|
Land Value: 35,509 |
|
|||
|
Sect 30-T12N-R3W Qtr SW |
MILLERS BOULEVARD
Block
017
Lot
003
|
|||
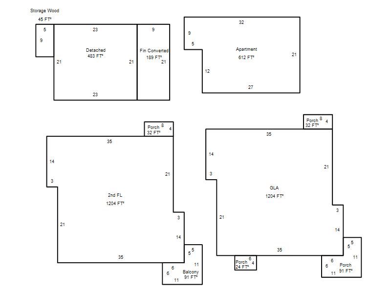
| Full Legal Description: MILLERS BOULEVARD PT BLK 17 LOT 3 BEG SE/C LOT 3 TH W111.74FT TH N70.34FT TH E11.5FT TH N2FT TH E100.72FT TH S73.92FT TO BEG CONT .1874 ACRS MORE OR LESS |
| Photo & Sketch (if available) | Comp Sales (ordered by relevancy) |
|
||||||||||||||||||
|
||||||||||||||||||||
| Value History (*The County Treasurer 405-713-1300 posts & collects actual tax amounts. Contact information HERE) | |||||||||||||
|---|---|---|---|---|---|---|---|---|---|---|---|---|---|
| Year | Market Value | Taxable Mkt Value | Gross Assessed | Exemption | Net Assessed | Millage | Est. Tax | Tax Savings | |||||
|
2026 |
294,000 |
157,849 |
17,362 |
0 |
17,362 |
122.90 |
$2,134 |
$1,841 |
|||||
|
2025 |
278,071 |
150,333 |
16,536 |
0 |
16,536 |
122.90 |
$2,032 |
$1,727 |
|||||
|
2024 |
292,000 |
150,089 |
16,509 |
0 |
16,509 |
123.89 |
$2,045 |
$1,934 |
|||||
|
2023 |
270,000 |
142,942 |
15,722 |
0 |
15,722 |
122.82 |
$1,931 |
$1,717 |
|||||
|
2022 |
215,500 |
136,136 |
14,974 |
0 |
14,974 |
117.63 |
$1,762 |
$1,027 |
|||||
| Property Account Status/Adjustments/Exemptions | ||
|---|---|---|
| Account # | Exemption Description | Amount |
|
R064144735 |
5% Capped Account |
0 |
| Property Deed Transaction History (Recorded in the County Clerk's Office) | ||||||||||
|---|---|---|---|---|---|---|---|---|---|---|
| Date | Type | Book | Page | Price | Grantor | Grantee | ||||
|
7/1/2025 |
|
Hmstd Off & |
$0 |
MID AMERICA INDUSTRIES OPERATING LLC |
MID AMERICA INDUSTRIES OPERATING LLC |
|||||
|
6/12/2018 |
|
Hmstd Off & |
$0 |
HELTZEN ROLF |
MID AMERICA INDUSTRIES OPERATING LLC |
|||||
|
3/7/2007 |
|
Deeds |
$124,500 |
WEAKS LINDA E & W MICHAEL TRS WEAKS LINDA E REV TRUST |
HELTZEN ROLF |
|||||
|
8/18/1998 |
|
Historical |
$0 |
WEAKS WILLIAM M & LINDA E |
WEAKS LINDA E & W MICHAEL TRS |
|||||
|
1/19/1996 |
|
Historical |
$60,000 |
LITTLE CHARLES E & LEAH A |
WEAKS WILLIAM M & LINDA |
|||||
| Last Mailed Notice of Value (N.O.V.) Information/History | ||||||||
|---|---|---|---|---|---|---|---|---|
| Year | Date | Market Value | Taxable Market Value | Gross Assessed | Exemption | Net Assessed | ||
|
2026 |
02/23/2026 |
294,000 |
157,849 |
17,362 |
0 |
17,362 |
||
|
2025 |
02/14/2025 |
291,500 |
157,593 |
17,334 |
0 |
17,334 |
||
|
2024 |
02/13/2024 |
292,000 |
150,089 |
16,509 |
0 |
16,509 |
||
|
2023 |
02/14/2023 |
270,000 |
142,942 |
15,722 |
0 |
15,722 |
||
|
2022 |
03/15/2022 |
215,500 |
136,136 |
14,974 |
0 |
14,974 |
||
| Property Building Permit History | |||||||||||
|---|---|---|---|---|---|---|---|---|---|---|---|
| Issued | Permit # | Provided by | Bldg # | Description | Est Construction Cost | Status | |||||
| No Building Permit records returned. | |||||||||||
| Click button on building number to access detailed information: | ||||||
|---|---|---|---|---|---|---|
| Bldg # | Vacant/Improved Land | Bldg Description | Year Built | SqFt | # Stories | |
|
1 |
Improved |
Duplex Two Story |
1935 |
2,408 |
2 Stories |
|