|
|
|
| Larry Stein Oklahoma County Assessor (405) 713-1200 - Public Access System |
|
|
|
|
|
|
| Real Property Display - Screen Produced 4/15/2026 4:38:42 AM | ||||
|---|---|---|---|---|
| Account: R064144910 | Type: Residential | Location: |
2733 NW 12TH ST |
|
| Building Name/Occupant: |
|
OKLAHOMA CITY |
||
| Owner Name 1: | WALLS KEVIN W |
Parcel PIN#: |
2719-06-414-4910 |
|
| Owner Name 2: | 1/4 section #: |
2719 |
||
| Owner Name 3: | Parent Acct: |
|
||
| Billing Address: | 3324 NW 172ND TER | Tax District: |
|
|
| City, State, Zip | EDMOND, OK 73012 | School System: |
Oklahoma City #89 |
|
|
Country: (If noted) |
Land Size: |
0.2583 Acres |
||
|
Land Value: 48,938 |
|
|||
|
Sect 30-T12N-R3W Qtr SW |
MILLERS BOULEVARD
Block
018
Lot
007
|
|||
| Full Legal Description: MILLERS BOULEVARD 018 007 |
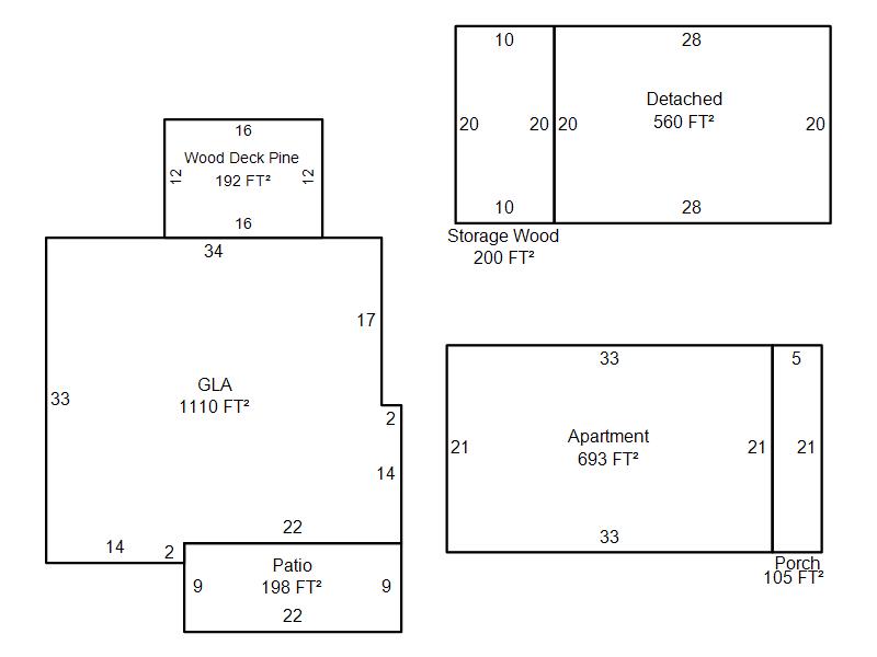
| Photo & Sketch (if available) | Comp Sales (ordered by relevancy) |
|
||||||||||||||||||
|
||||||||||||||||||||
| Value History (*The County Treasurer 405-713-1300 posts & collects actual tax amounts. Contact information HERE) | |||||||||||||
|---|---|---|---|---|---|---|---|---|---|---|---|---|---|
| Year | Market Value | Taxable Mkt Value | Gross Assessed | Exemption | Net Assessed | Millage | Est. Tax | Tax Savings | |||||
|
2026 |
217,500 |
160,301 |
17,632 |
0 |
17,632 |
122.90 |
$2,167 |
$773 |
|||||
|
2025 |
219,000 |
152,668 |
16,792 |
0 |
16,792 |
122.90 |
$2,064 |
$897 |
|||||
|
2024 |
212,000 |
145,399 |
15,993 |
0 |
15,993 |
123.89 |
$1,981 |
$908 |
|||||
|
2023 |
201,500 |
138,476 |
15,232 |
0 |
15,232 |
122.82 |
$1,871 |
$851 |
|||||
|
2022 |
156,500 |
131,882 |
14,505 |
0 |
14,505 |
117.63 |
$1,706 |
$319 |
|||||
| Property Account Status/Adjustments/Exemptions | ||
|---|---|---|
| Account # | Exemption Description | Amount |
|
R064144910 |
5% Capped Account |
0 |
| Property Deed Transaction History (Recorded in the County Clerk's Office) | ||||||||||
|---|---|---|---|---|---|---|---|---|---|---|
| Date | Type | Book | Page | Price | Grantor | Grantee | ||||
|
5/16/2003 |
|
Deeds |
$0 |
WALLS KEVIN W & ELIZABETH A MCMANUS CLARENCE E |
WALLS KEVIN W |
|||||
|
5/7/1999 |
|
Deeds |
$60,000 |
NICHOLS JAMES S & JUDY K |
WALLS KEVIN W & ELIZABETH A |
|||||
|
11/9/1995 |
|
Historical |
$0 |
MATTHEWS JEFFREY L |
NICHOLS JAMES S & JUDY K |
|||||
|
8/14/1995 |
|
Historical |
$0 |
MATTHEWS P DOUGLAS |
MATTHEWS JEFFREY L |
|||||
|
6/30/1995 |
|
Historical |
$0 |
MATTHEWS P DOUGLAS & KATHLEEN |
MATTHEWS P DOUGLAS |
|||||
| Last Mailed Notice of Value (N.O.V.) Information/History | ||||||||
|---|---|---|---|---|---|---|---|---|
| Year | Date | Market Value | Taxable Market Value | Gross Assessed | Exemption | Net Assessed | ||
|
2026 |
02/23/2026 |
217,500 |
160,301 |
17,632 |
0 |
17,632 |
||
|
2025 |
02/14/2025 |
219,000 |
152,668 |
16,792 |
0 |
16,792 |
||
|
2024 |
02/13/2024 |
212,000 |
145,399 |
15,993 |
0 |
15,993 |
||
|
2023 |
02/14/2023 |
201,500 |
138,476 |
15,232 |
0 |
15,232 |
||
|
2022 |
03/15/2022 |
156,500 |
131,882 |
14,505 |
0 |
14,505 |
||
| Property Building Permit History | |||||||||||
|---|---|---|---|---|---|---|---|---|---|---|---|
| Issued | Permit # | Provided by | Bldg # | Description | Est Construction Cost | Status | |||||
| No Building Permit records returned. | |||||||||||
| Click button on building number to access detailed information: | ||||||
|---|---|---|---|---|---|---|
| Bldg # | Vacant/Improved Land | Bldg Description | Year Built | SqFt | # Stories | |
|
1 |
Improved |
Ranch 1 Story |
1939 |
1,110 |
1 Stories |
|