|
|
|
| Larry Stein Oklahoma County Assessor (405) 713-1200 - Public Access System |
|
|
|
|
|
|
| Real Property Display - Screen Produced 4/14/2026 5:50:11 AM | ||||
|---|---|---|---|---|
| Account: R064144920 | Type: Residential | Location: |
2737 NW 12TH ST |
|
| Building Name/Occupant: |
|
OKLAHOMA CITY |
||
| Owner Name 1: | PACK JON C |
Parcel PIN#: |
2719-06-414-4920 |
|
| Owner Name 2: | HANSEN ANJA | 1/4 section #: |
2719 |
|
| Owner Name 3: | Parent Acct: |
|
||
| Billing Address: | 2737 NW 12TH ST | Tax District: |
|
|
| City, State, Zip | OKLAHOMA CITY, OK 73107 | School System: |
Oklahoma City #89 |
|
|
Country: (If noted) |
UNITED STATES |
Land Size: |
0.2479 Acres |
|
|
Land Value: 46,980 |
|
|||
|
Sect 30-T12N-R3W Qtr SW |
MILLERS BOULEVARD
Block
018
Lot
008
|
|||
| Full Legal Description: MILLERS BOULEVARD 018 008 |
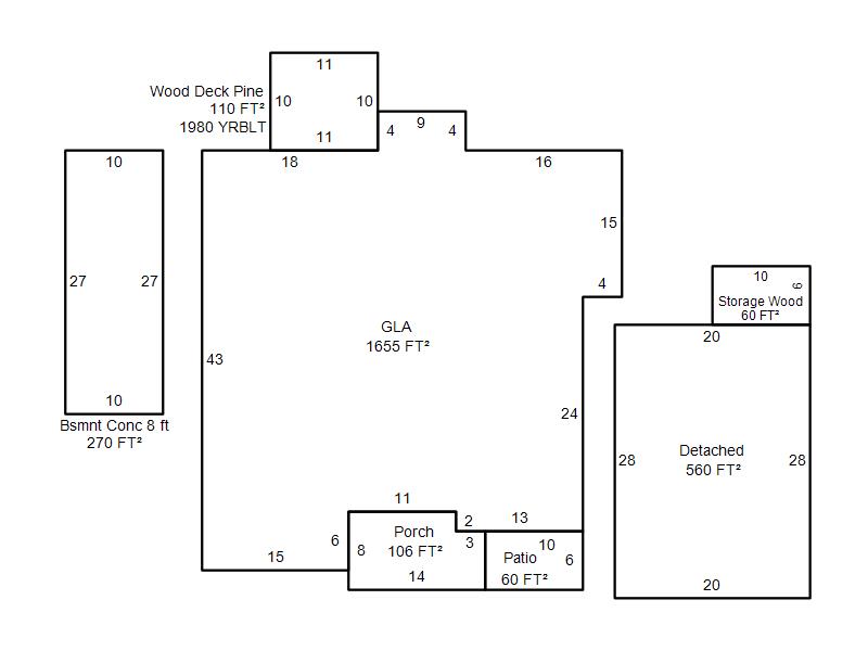
| Photo & Sketch (if available) | Comp Sales (ordered by relevancy) |
|
||||||||||||||||||
|
||||||||||||||||||||
| Value History (*The County Treasurer 405-713-1300 posts & collects actual tax amounts. Contact information HERE) | |||||||||||||
|---|---|---|---|---|---|---|---|---|---|---|---|---|---|
| Year | Market Value | Taxable Mkt Value | Gross Assessed | Exemption | Net Assessed | Millage | Est. Tax | Tax Savings | |||||
|
2026 |
280,000 |
280,000 |
30,800 |
30,800 |
0 |
122.90 |
$0 |
$3,785 |
|||||
|
2025 |
285,500 |
285,500 |
31,405 |
31,405 |
0 |
122.90 |
$0 |
$3,860 |
|||||
|
2024 |
278,000 |
278,000 |
30,580 |
30,580 |
0 |
123.89 |
$0 |
$3,789 |
|||||
|
2023 |
269,500 |
218,212 |
24,003 |
0 |
24,003 |
122.82 |
$2,948 |
$693 |
|||||
|
2022 |
220,500 |
207,821 |
22,859 |
0 |
22,859 |
117.63 |
$2,689 |
$164 |
|||||
| Property Account Status/Adjustments/Exemptions | ||
|---|---|---|
| Account # | Exemption Description | Amount |
|
R064144920 |
3% Cap Homestead |
0 |
|
R064144920 |
100% DAV Exemption |
100 |
|
R064144920 |
DAV Homestead |
0 |
| Property Deed Transaction History (Recorded in the County Clerk's Office) | ||||||||||
|---|---|---|---|---|---|---|---|---|---|---|
| Date | Type | Book | Page | Price | Grantor | Grantee | ||||
|
9/21/2023 |
|
Deeds |
$260,000 |
CHARLES KINSEY |
PACK JON C |
|||||
|
9/21/2023 |
|
Hmstd Off & |
$0 |
PACK JON C |
PACK JON C |
|||||
|
12/28/2018 |
|
Deeds |
$196,000 |
CHAPPELL MISTI M |
CHARLES KINSEY |
|||||
|
2/24/2016 |
|
Deeds |
$0 |
CHAPPELL CHRISTOPHER J |
CHAPPELL MISTI M |
|||||
|
5/6/2013 |
|
Hmstd Off & |
$0 |
MILLER MISTI M |
CHAPPELL MISTI M |
|||||
| Last Mailed Notice of Value (N.O.V.) Information/History | ||||||||
|---|---|---|---|---|---|---|---|---|
| Year | Date | Market Value | Taxable Market Value | Gross Assessed | Exemption | Net Assessed | ||
|
2025 |
02/14/2025 |
285,500 |
285,500 |
31,405 |
31,405 |
0 |
||
|
2024 |
02/13/2024 |
278,000 |
278,000 |
30,580 |
30,580 |
0 |
||
|
2023 |
02/14/2023 |
269,500 |
218,212 |
24,003 |
0 |
24,003 |
||
|
2022 |
03/15/2022 |
220,500 |
207,821 |
22,859 |
0 |
22,859 |
||
|
2021 |
03/19/2021 |
206,000 |
197,925 |
21,771 |
0 |
21,771 |
||
| Property Building Permit History | |||||||||||
|---|---|---|---|---|---|---|---|---|---|---|---|
| Issued | Permit # | Provided by | Bldg # | Description | Est Construction Cost | Status | |||||
| No Building Permit records returned. | |||||||||||
| Click button on building number to access detailed information: | ||||||
|---|---|---|---|---|---|---|
| Bldg # | Vacant/Improved Land | Bldg Description | Year Built | SqFt | # Stories | |
|
1 |
Improved |
Ranch 1 Story |
1938 |
1,655 |
1 Stories |
|