|
|
|
| Larry Stein Oklahoma County Assessor (405) 713-1200 - Public Access System |
|
|
|
|
|
|
| Real Property Display - Screen Produced 4/14/2026 4:34:13 AM | ||||
|---|---|---|---|---|
| Account: R064145170 | Type: Residential | Location: |
2715 W PARK PL |
|
| Building Name/Occupant: |
|
OKLAHOMA CITY |
||
| Owner Name 1: | HALL BRUCE |
Parcel PIN#: |
2719-06-414-5170 |
|
| Owner Name 2: | STUART MIKE | 1/4 section #: |
2719 |
|
| Owner Name 3: | Parent Acct: |
|
||
| Billing Address: | 1221 N MILLER BLVD | Tax District: |
|
|
| City, State, Zip | OKLAHOMA CITY , OK 73107 | School System: |
Oklahoma City #89 |
|
|
Country: (If noted) |
Land Size: |
0.1722 Acres |
||
|
Land Value: 32,625 |
|
|||
|
Sect 30-T12N-R3W Qtr SW |
MILLERS BOULEVARD
Block
020
Lot
004
|
|||
| Full Legal Description: MILLERS BOULEVARD 020 004 E50FT |
| Photo & Sketch (if available) | Comp Sales (ordered by relevancy) |
|
||||||||||||||||||
|
||||||||||||||||||||
| Value History (*The County Treasurer 405-713-1300 posts & collects actual tax amounts. Contact information HERE) | |||||||||||||
|---|---|---|---|---|---|---|---|---|---|---|---|---|---|
| Year | Market Value | Taxable Mkt Value | Gross Assessed | Exemption | Net Assessed | Millage | Est. Tax | Tax Savings | |||||
|
2026 |
152,000 |
76,825 |
8,450 |
0 |
8,450 |
122.90 |
$1,039 |
$1,016 |
|||||
|
2025 |
151,500 |
73,167 |
8,048 |
0 |
8,048 |
122.90 |
$989 |
$1,059 |
|||||
|
2024 |
144,000 |
69,683 |
7,665 |
0 |
7,665 |
123.89 |
$950 |
$1,013 |
|||||
|
2023 |
137,000 |
66,365 |
7,299 |
0 |
7,299 |
122.82 |
$897 |
$954 |
|||||
|
2022 |
106,500 |
63,205 |
6,952 |
0 |
6,952 |
117.63 |
$818 |
$560 |
|||||
| Property Account Status/Adjustments/Exemptions | ||
|---|---|---|
| Account # | Exemption Description | Amount |
|
R064145170 |
5% Capped Account |
0 |
| Property Deed Transaction History (Recorded in the County Clerk's Office) | ||||||||||
|---|---|---|---|---|---|---|---|---|---|---|
| Date | Type | Book | Page | Price | Grantor | Grantee | ||||
|
9/14/2018 |
|
Hmstd Off & |
$0 |
TD & J PROPERTIES LLC |
HALL BRUCE |
|||||
|
9/7/2018 |
|
Hmstd Off & |
$0 |
MOORE JASON D |
TD & J PROPERTIES LLC |
|||||
|
6/27/2017 |
|
Deeds |
$50,000 |
FLESHMAN POPERTIES INC |
MOORE JASON D |
|||||
|
6/25/2012 |
|
Hmstd Off & |
$0 |
FLESHMAN MARGUERITE E TRS JOHNSON CAROLE S TRS |
FLESHMAN POPERTIES INC |
|||||
|
4/11/1988 |
|
Historical |
$9,000 |
SECRETARY OF HOUSING |
FLESHMAN MARGUERITE E TRS |
|||||
| Last Mailed Notice of Value (N.O.V.) Information/History | ||||||||
|---|---|---|---|---|---|---|---|---|
| Year | Date | Market Value | Taxable Market Value | Gross Assessed | Exemption | Net Assessed | ||
|
2026 |
02/23/2026 |
152,000 |
76,825 |
8,450 |
0 |
8,450 |
||
|
2025 |
02/14/2025 |
151,500 |
73,167 |
8,048 |
0 |
8,048 |
||
|
2024 |
02/13/2024 |
144,000 |
69,683 |
7,665 |
0 |
7,665 |
||
|
2023 |
02/14/2023 |
137,000 |
66,365 |
7,299 |
0 |
7,299 |
||
|
2022 |
03/15/2022 |
106,500 |
63,205 |
6,952 |
0 |
6,952 |
||
| Property Building Permit History | |||||||||||
|---|---|---|---|---|---|---|---|---|---|---|---|
| Issued | Permit # | Provided by | Bldg # | Description | Est Construction Cost | Status | |||||
| No Building Permit records returned. | |||||||||||
| Click button on building number to access detailed information: | ||||||
|---|---|---|---|---|---|---|
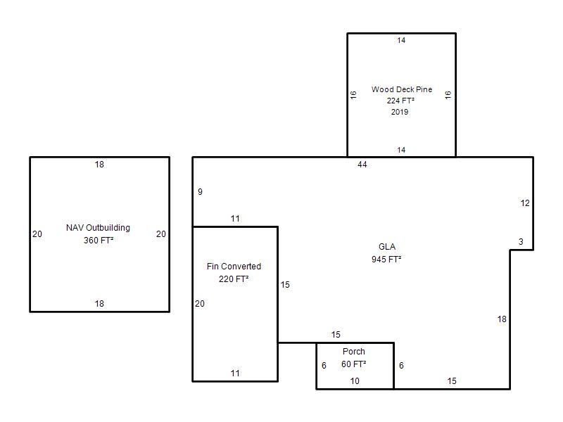
| Bldg # | Vacant/Improved Land | Bldg Description | Year Built | SqFt | # Stories | |
|
1 |
Improved |
Ranch 1 Story |
1937 |
945 |
1 Stories |
|