|
|
|
| Larry Stein Oklahoma County Assessor (405) 713-1200 - Public Access System |
|
|
|
|
|
|
| Real Property Display - Screen Produced 4/14/2026 5:50:21 AM | ||||
|---|---|---|---|---|
| Account: R064145190 | Type: Residential | Location: |
2721 W PARK PL |
|
| Building Name/Occupant: |
|
OKLAHOMA CITY |
||
| Owner Name 1: | LOPEZ BIL & SANTOS |
Parcel PIN#: |
2719-06-414-5190 |
|
| Owner Name 2: | 1/4 section #: |
2719 |
||
| Owner Name 3: | Parent Acct: |
|
||
| Billing Address: | 4012 NW 22ND ST | Tax District: |
|
|
| City, State, Zip | OKLAHOMA CITY, OK 73107 | School System: |
Oklahoma City #89 |
|
|
Country: (If noted) |
Land Size: |
0.1722 Acres |
||
|
Land Value: 32,625 |
|
|||
|
Sect 30-T12N-R3W Qtr SW |
MILLERS BOULEVARD
Block
020
Lot
005
|
|||
| Full Legal Description: MILLERS BOULEVARD 020 005 W50FT |
| Photo & Sketch (if available) | Comp Sales (ordered by relevancy) |
|
||||||||||||||||||
|
||||||||||||||||||||
| Value History (*The County Treasurer 405-713-1300 posts & collects actual tax amounts. Contact information HERE) | |||||||||||||
|---|---|---|---|---|---|---|---|---|---|---|---|---|---|
| Year | Market Value | Taxable Mkt Value | Gross Assessed | Exemption | Net Assessed | Millage | Est. Tax | Tax Savings | |||||
|
2026 |
153,500 |
116,347 |
12,797 |
0 |
12,797 |
122.90 |
$1,573 |
$502 |
|||||
|
2025 |
152,500 |
110,807 |
12,188 |
0 |
12,188 |
122.90 |
$1,498 |
$564 |
|||||
|
2024 |
149,500 |
105,531 |
11,607 |
0 |
11,607 |
123.89 |
$1,438 |
$599 |
|||||
|
2023 |
149,000 |
100,506 |
11,055 |
0 |
11,055 |
122.82 |
$1,358 |
$655 |
|||||
|
2022 |
118,000 |
95,720 |
10,528 |
0 |
10,528 |
117.63 |
$1,239 |
$288 |
|||||
| Property Account Status/Adjustments/Exemptions | ||
|---|---|---|
| Account # | Exemption Description | Amount |
|
R064145190 |
5% Capped Account |
0 |
| Property Deed Transaction History (Recorded in the County Clerk's Office) | |||||||
|---|---|---|---|---|---|---|---|
| Date | Type | Book | Page | Price | Grantor | Grantee | |
|
7/9/2003 |
|
Deeds |
$0 |
LOPEZ BIL |
LOPEZ BIL & SANTOS |
||
|
12/14/2000 |
|
Deeds |
$44,000 |
GRUZINSKY THERESA |
LOPEZ BIL |
||
|
11/18/1994 |
|
Historical |
$27,000 |
FRANCIS LAURA FAYE |
GRUZINSKY THERESA |
||
|
3/10/1994 |
|
Historical |
$0 |
WIGGINS GLADYS E |
FRANCIS LAURA FAYE |
||
|
11/11/1911 |
|
Historical |
$0 |
|
WIGGINS GLADYS E |
||
| Last Mailed Notice of Value (N.O.V.) Information/History | ||||||||
|---|---|---|---|---|---|---|---|---|
| Year | Date | Market Value | Taxable Market Value | Gross Assessed | Exemption | Net Assessed | ||
|
2026 |
02/23/2026 |
153,500 |
116,347 |
12,797 |
0 |
12,797 |
||
|
2025 |
02/14/2025 |
152,500 |
110,807 |
12,188 |
0 |
12,188 |
||
|
2024 |
02/13/2024 |
149,500 |
105,531 |
11,607 |
0 |
11,607 |
||
|
2023 |
02/14/2023 |
149,000 |
100,506 |
11,055 |
0 |
11,055 |
||
|
2022 |
03/15/2022 |
118,000 |
95,720 |
10,528 |
0 |
10,528 |
||
| Property Building Permit History | |||||||||||
|---|---|---|---|---|---|---|---|---|---|---|---|
| Issued | Permit # | Provided by | Bldg # | Description | Est Construction Cost | Status | |||||
| No Building Permit records returned. | |||||||||||
| Click button on building number to access detailed information: | ||||||
|---|---|---|---|---|---|---|
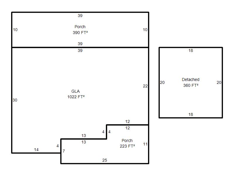
| Bldg # | Vacant/Improved Land | Bldg Description | Year Built | SqFt | # Stories | |
|
1 |
Improved |
Ranch 1 Story |
1937 |
1,022 |
1 Stories |
|