|
|
|
| Larry Stein Oklahoma County Assessor (405) 713-1200 - Public Access System |
|
|
|
|
|
|
| Real Property Display - Screen Produced 4/12/2026 6:21:29 PM | ||||
|---|---|---|---|---|
| Account: R064145270 | Type: Residential | Location: |
2732 NW 11TH ST |
|
| Building Name/Occupant: |
|
OKLAHOMA CITY |
||
| Owner Name 1: | SILVA OLIVIA & ROBERT L |
Parcel PIN#: |
2719-06-414-5270 |
|
| Owner Name 2: | 1/4 section #: |
2719 |
||
| Owner Name 3: | Parent Acct: |
|
||
| Billing Address: | 2732 NW 11TH ST | Tax District: |
|
|
| City, State, Zip | OKLAHOMA CITY, OK 73107 | School System: |
Oklahoma City #89 |
|
|
Country: (If noted) |
Land Size: |
0.1722 Acres |
||
|
Land Value: 32,625 |
|
|||
|
Sect 30-T12N-R3W Qtr SW |
MILLERS BOULEVARD
Block
020
Lot
010
|
|||
| Full Legal Description: MILLERS BOULEVARD BLK 020 LOT 000 W50FT OF LOT 10 |
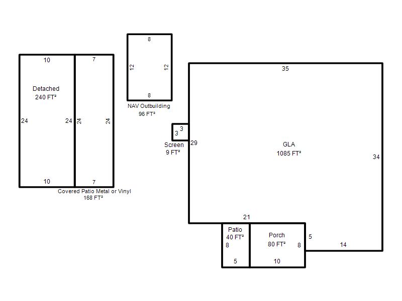
| Photo & Sketch (if available) | Comp Sales (ordered by relevancy) |
|
||||||||||||||||||
|
||||||||||||||||||||
| Value History (*The County Treasurer 405-713-1300 posts & collects actual tax amounts. Contact information HERE) | |||||||||||||
|---|---|---|---|---|---|---|---|---|---|---|---|---|---|
| Year | Market Value | Taxable Mkt Value | Gross Assessed | Exemption | Net Assessed | Millage | Est. Tax | Tax Savings | |||||
|
2026 |
167,500 |
139,111 |
15,301 |
1,000 |
14,301 |
122.90 |
$1,758 |
$507 |
|||||
|
2025 |
171,500 |
135,060 |
14,855 |
1,000 |
13,855 |
122.90 |
$1,703 |
$616 |
|||||
|
2024 |
165,500 |
131,127 |
14,423 |
1,000 |
13,423 |
123.89 |
$1,663 |
$592 |
|||||
|
2023 |
161,500 |
127,308 |
14,003 |
1,000 |
13,003 |
122.82 |
$1,597 |
$585 |
|||||
|
2022 |
129,000 |
123,600 |
13,596 |
1,000 |
12,596 |
117.63 |
$1,482 |
$188 |
|||||
| Property Account Status/Adjustments/Exemptions | ||
|---|---|---|
| Account # | Exemption Description | Amount |
|
R064145270 |
3% Cap Homestead |
0 |
|
R064145270 |
Homestead |
1,000 |
| Property Deed Transaction History (Recorded in the County Clerk's Office) | ||||||||||
|---|---|---|---|---|---|---|---|---|---|---|
| Date | Type | Book | Page | Price | Grantor | Grantee | ||||
|
8/28/2020 |
|
Deeds |
$159,000 |
DODSON ROBERT B & MELISSA L |
SILVA OLIVIA K & ROBERT L |
|||||
|
5/27/2015 |
|
Deeds |
$91,500 |
LIMERICK PROPERTIES LLC |
DODSON ROBERT B & MELISSA L |
|||||
|
5/22/2015 |
|
Deeds |
$0 |
MCMURTEY CAROLYN |
LIMERICK PROPERTIES LLC |
|||||
|
4/2/2015 |
|
Hmstd Off & |
$0 |
MCMURTRY CAROLYN |
LIMERICK PROPERTIES LLC |
|||||
|
2/9/2005 |
|
Deeds |
$60,167 |
DELEON GERARDO DELEON ELDER |
MCMURTRY CAROLYN |
|||||
| Last Mailed Notice of Value (N.O.V.) Information/History | ||||||||
|---|---|---|---|---|---|---|---|---|
| Year | Date | Market Value | Taxable Market Value | Gross Assessed | Exemption | Net Assessed | ||
|
2026 |
02/23/2026 |
167,500 |
139,111 |
15,301 |
1,000 |
14,301 |
||
|
2025 |
02/14/2025 |
171,500 |
135,060 |
14,855 |
1,000 |
13,855 |
||
|
2024 |
02/13/2024 |
165,500 |
131,127 |
14,423 |
1,000 |
13,423 |
||
|
2023 |
02/14/2023 |
161,500 |
127,308 |
14,003 |
1,000 |
13,003 |
||
|
2022 |
03/15/2022 |
129,000 |
123,600 |
13,596 |
1,000 |
12,596 |
||
| Property Building Permit History | |||||||||||
|---|---|---|---|---|---|---|---|---|---|---|---|
| Issued | Permit # | Provided by | Bldg # | Description | Est Construction Cost | Status | |||||
| No Building Permit records returned. | |||||||||||
| Click button on building number to access detailed information: | ||||||
|---|---|---|---|---|---|---|
| Bldg # | Vacant/Improved Land | Bldg Description | Year Built | SqFt | # Stories | |
|
1 |
Improved |
Ranch 1 Story |
1930 |
1,085 |
1 Stories |
|