|
|
|
| Larry Stein Oklahoma County Assessor (405) 713-1200 - Public Access System |
|
|
|
|
|
|
| Real Property Display - Screen Produced 4/14/2026 4:40:45 AM | ||||
|---|---|---|---|---|
| Account: R064145370 | Type: Commercial | Location: |
2717 NW 10TH ST |
|
| Building Name/Occupant: |
AUTO DETAILING |
OKLAHOMA CITY |
||
| Owner Name 1: | AHMED FAMILY LLC |
Parcel PIN#: |
2719-06-414-5370 |
|
| Owner Name 2: | 2717 NORTHWEST 10TH SERIES | 1/4 section #: |
2719 |
|
| Owner Name 3: | Parent Acct: |
|
||
| Billing Address: | 15216 WORTHINGTON LN | Tax District: |
|
|
| City, State, Zip | EDMOND, OK 73013-1122 | School System: |
Oklahoma City #89 |
|
|
Country: (If noted) |
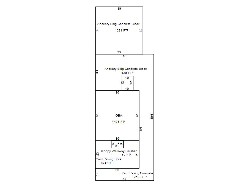
Land Size: |
7,500.0000 Square Feet |
||
|
Land Value: 52,500 |
|
|||
|
Sect 30-T12N-R3W Qtr SW |
MILLERS BOULEVARD
Block
021
Lot
000
|
|||
| Full Legal Description: MILLERS BOULEVARD 021 000 W25FT OF LOT 4 & E25FT LOT 5 |
| No comparable sales report available. | ||||||||||||||||||||||
|
||||||||||||||||||||||
| Value History (*The County Treasurer 405-713-1300 posts & collects actual tax amounts. Contact information HERE) | |||||||||||||
|---|---|---|---|---|---|---|---|---|---|---|---|---|---|
| Year | Market Value | Taxable Mkt Value | Gross Assessed | Exemption | Net Assessed | Millage | Est. Tax | Tax Savings | |||||
|
2026 |
189,000 |
170,100 |
18,711 |
0 |
18,711 |
122.90 |
$2,300 |
$256 |
|||||
|
2025 |
162,000 |
162,000 |
17,820 |
0 |
17,820 |
122.90 |
$2,190 |
$0 |
|||||
|
2024 |
162,000 |
162,000 |
17,820 |
0 |
17,820 |
123.89 |
$2,208 |
$0 |
|||||
|
2023 |
162,000 |
162,000 |
17,820 |
0 |
17,820 |
122.82 |
$2,189 |
$0 |
|||||
|
2022 |
162,000 |
71,680 |
7,884 |
0 |
7,884 |
117.63 |
$927 |
$1,169 |
|||||
| Property Account Status/Adjustments/Exemptions | ||
|---|---|---|
| Account # | Exemption Description | Amount |
|
R064145370 |
5% Capped Account |
0 |
| Property Deed Transaction History (Recorded in the County Clerk's Office) | |||||||
|---|---|---|---|---|---|---|---|
| Date | Type | Book | Page | Price | Grantor | Grantee | |
|
5/27/2025 |
|
Hmstd Off & |
$0 |
AHMED SAGIRUDDIN & SALMA N |
AHMED FAMILY LLC |
||
|
2/17/2022 |
|
Deeds |
$160,000 |
CALVERT HENRY |
AHMED SAGIRUDDIN & SALMA N |
||
|
3/31/1994 |
|
Historical |
$0 |
BIGBEE H |
CALVERT HENRY |
||
|
8/5/1988 |
|
Historical |
$0 |
NULL WAYNE EDWARD JR |
BIGBEE H |
||
|
1/1/1980 |
|
Historical |
$0 |
|
NULL WAYNE EDWARD JR |
||
| Last Mailed Notice of Value (N.O.V.) Information/History | ||||||||
|---|---|---|---|---|---|---|---|---|
| Year | Date | Market Value | Taxable Market Value | Gross Assessed | Exemption | Net Assessed | ||
|
2026 |
03/23/2026 |
189,000 |
170,100 |
18,711 |
0 |
18,711 |
||
|
2023 |
03/13/2023 |
162,000 |
162,000 |
17,820 |
0 |
17,820 |
||
|
2022 |
03/09/2022 |
69,541 |
69,541 |
7,649 |
0 |
7,649 |
||
|
2022 |
04/05/2022 |
162,000 |
71,680 |
7,884 |
0 |
7,884 |
||
|
2020 |
03/16/2020 |
75,330 |
75,330 |
8,286 |
0 |
8,286 |
||
| Property Building Permit History | |||||||||||
|---|---|---|---|---|---|---|---|---|---|---|---|
| Issued | Permit # | Provided by | Bldg # | Description | Est Construction Cost | Status | |||||
| No Building Permit records returned. | |||||||||||
| Click button on building number to access detailed information: | ||||||
|---|---|---|---|---|---|---|
| Bldg # | Vacant/Improved Land | Bldg Description | Year Built | SqFt | # Stories | |
|
1 |
Improved |
Retail Store |
1945 |
1,476 |
1 Stories |
|