|
|
|
| Larry Stein Oklahoma County Assessor (405) 713-1200 - Public Access System |
|
|
|
|
|
|
| Real Property Display - Screen Produced 4/14/2026 4:40:45 AM | ||||
|---|---|---|---|---|
| Account: R064145380 | Type: Industrial | Location: |
2715 NW 10TH ST |
|
| Building Name/Occupant: |
NO NAME |
OKLAHOMA CITY |
||
| Owner Name 1: | REYES ALEJANDRO S |
Parcel PIN#: |
2719-06-414-5380 |
|
| Owner Name 2: | 1/4 section #: |
2719 |
||
| Owner Name 3: | Parent Acct: |
|
||
| Billing Address: | 2860 NW 21ST ST | Tax District: |
|
|
| City, State, Zip | OKLAHOMA CITY, OK 73107-3112 | School System: |
Oklahoma City #89 |
|
|
Country: (If noted) |
Land Size: |
7,500.0000 Square Feet |
||
|
Land Value: 50,250 |
|
|||
|
Sect 30-T12N-R3W Qtr SW |
MILLERS BOULEVARD
Block
021
Lot
004
|
|||
| Full Legal Description: MILLERS BOULEVARD 021 004 E50FT |
| No comparable sales report available. | ||||||||||||||||||||||
|
||||||||||||||||||||||
| Value History (*The County Treasurer 405-713-1300 posts & collects actual tax amounts. Contact information HERE) | |||||||||||||
|---|---|---|---|---|---|---|---|---|---|---|---|---|---|
| Year | Market Value | Taxable Mkt Value | Gross Assessed | Exemption | Net Assessed | Millage | Est. Tax | Tax Savings | |||||
|
2026 |
217,000 |
75,936 |
8,352 |
0 |
8,352 |
122.90 |
$1,027 |
$1,907 |
|||||
|
2025 |
185,183 |
72,320 |
7,954 |
0 |
7,954 |
122.90 |
$978 |
$1,526 |
|||||
|
2024 |
73,006 |
68,877 |
7,575 |
0 |
7,575 |
123.89 |
$939 |
$56 |
|||||
|
2023 |
73,006 |
65,598 |
7,215 |
0 |
7,215 |
122.82 |
$886 |
$100 |
|||||
|
2022 |
73,006 |
62,475 |
6,872 |
0 |
6,872 |
117.63 |
$808 |
$136 |
|||||
| Property Account Status/Adjustments/Exemptions | ||
|---|---|---|
| Account # | Exemption Description | Amount |
|
R064145380 |
5% Capped Account |
0 |
| Property Deed Transaction History (Recorded in the County Clerk's Office) | |||||||
|---|---|---|---|---|---|---|---|
| Date | Type | Book | Page | Price | Grantor | Grantee | |
|
11/12/2010 |
|
Deeds |
$69,000 |
CARR GARY H |
REYES ALEJANDRO S |
||
|
2/9/2004 |
|
Deeds |
$0 |
CARR MARY E CARR GARY HARVEY |
CARR GARY H |
||
|
3/21/1994 |
|
Historical |
$0 |
CARR MARY ELLEN |
CARR MARY E |
||
|
7/8/1991 |
|
Historical |
$0 |
CARR H W & MARY E |
CARR MARY ELLEN |
||
|
11/11/1911 |
|
Historical |
$0 |
|
CARR H W & MARY E |
||
| Last Mailed Notice of Value (N.O.V.) Information/History | ||||||||
|---|---|---|---|---|---|---|---|---|
| Year | Date | Market Value | Taxable Market Value | Gross Assessed | Exemption | Net Assessed | ||
|
2026 |
03/23/2026 |
217,000 |
75,936 |
8,352 |
0 |
8,352 |
||
|
2025 |
03/14/2025 |
185,183 |
72,320 |
7,954 |
0 |
7,954 |
||
|
2024 |
03/12/2024 |
73,006 |
68,877 |
7,575 |
0 |
7,575 |
||
|
2023 |
03/13/2023 |
73,006 |
65,598 |
7,215 |
0 |
7,215 |
||
|
2022 |
03/09/2022 |
73,006 |
62,475 |
6,872 |
0 |
6,872 |
||
| Property Building Permit History | |||||||||||
|---|---|---|---|---|---|---|---|---|---|---|---|
| Issued | Permit # | Provided by | Bldg # | Description | Est Construction Cost | Status | |||||
| No Building Permit records returned. | |||||||||||
| Click button on building number to access detailed information: | ||||||
|---|---|---|---|---|---|---|
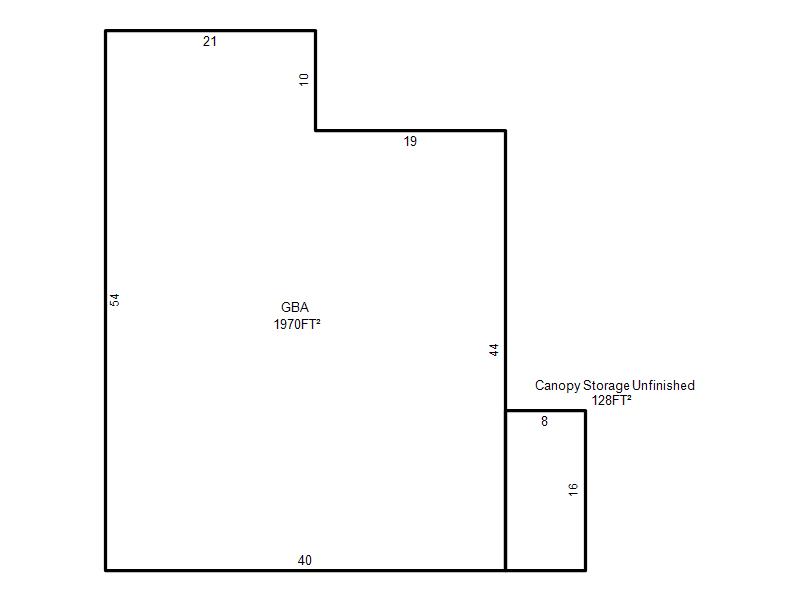
| Bldg # | Vacant/Improved Land | Bldg Description | Year Built | SqFt | # Stories | |
|
1 |
Improved |
Indust Lght Manufacturing |
1955 |
1,970 |
1 Stories |
|