|
|
|
| Larry Stein Oklahoma County Assessor (405) 713-1200 - Public Access System |
|
|
|
|
|
|
| Real Property Display - Screen Produced 4/12/2026 6:21:29 PM | ||||
|---|---|---|---|---|
| Account: R064145580 | Type: Residential | Location: |
2840 W PARK PL |
|
| Building Name/Occupant: |
|
OKLAHOMA CITY |
||
| Owner Name 1: | HELDRETH JOEL |
Parcel PIN#: |
2719-06-414-5580 |
|
| Owner Name 2: | 1/4 section #: |
2719 |
||
| Owner Name 3: | Parent Acct: |
|
||
| Billing Address: | 2840 W PARK PL | Tax District: |
|
|
| City, State, Zip | OKLAHOMA CITY, OK 73107 | School System: |
Oklahoma City #89 |
|
|
Country: (If noted) |
Land Size: |
0.1607 Acres |
||
|
Land Value: 30,450 |
|
|||
|
Sect 30-T12N-R3W Qtr SW |
MILLERS BOULEVARD
Block
022
Lot
000
|
|||
| Full Legal Description: MILLERS BOULEVARD 022 000 LOTS 21 & 22 |
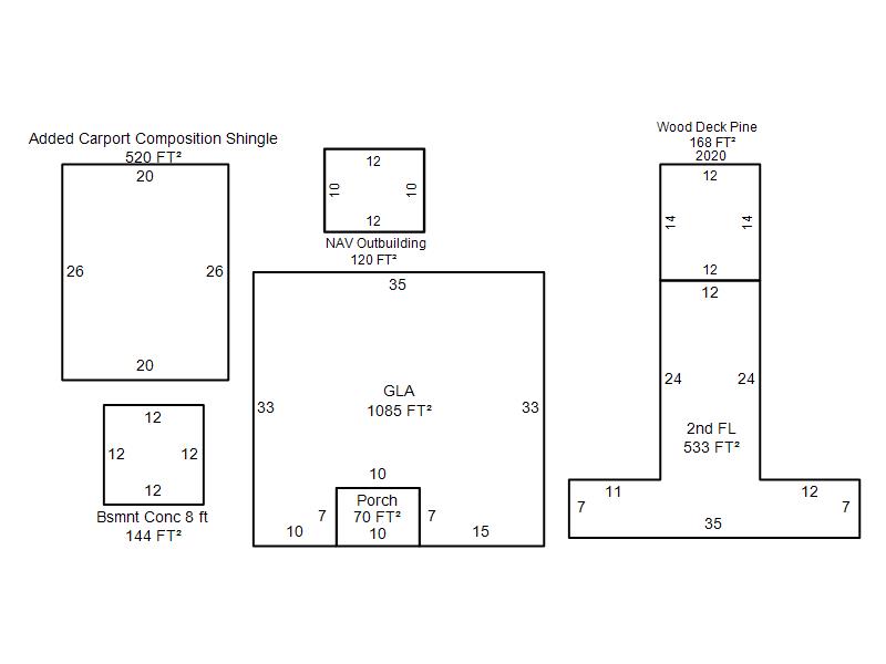
| Photo & Sketch (if available) | Comp Sales (ordered by relevancy) |
|
||||||||||||||||||
|
||||||||||||||||||||
| Value History (*The County Treasurer 405-713-1300 posts & collects actual tax amounts. Contact information HERE) | |||||||||||||
|---|---|---|---|---|---|---|---|---|---|---|---|---|---|
| Year | Market Value | Taxable Mkt Value | Gross Assessed | Exemption | Net Assessed | Millage | Est. Tax | Tax Savings | |||||
|
2026 |
256,000 |
242,492 |
26,673 |
0 |
26,673 |
122.90 |
$3,278 |
$183 |
|||||
|
2025 |
261,000 |
230,945 |
25,403 |
0 |
25,403 |
122.90 |
$3,122 |
$406 |
|||||
|
2024 |
251,000 |
219,948 |
24,194 |
0 |
24,194 |
123.89 |
$2,997 |
$423 |
|||||
|
2023 |
243,000 |
209,475 |
23,042 |
0 |
23,042 |
122.82 |
$2,830 |
$453 |
|||||
|
2022 |
201,000 |
199,500 |
21,945 |
0 |
21,945 |
117.63 |
$2,581 |
$19 |
|||||
| Property Account Status/Adjustments/Exemptions | ||
|---|---|---|
| Account # | Exemption Description | Amount |
|
R064145580 |
5% Capped Account |
0 |
| Property Deed Transaction History (Recorded in the County Clerk's Office) | |||||||
|---|---|---|---|---|---|---|---|
| Date | Type | Book | Page | Price | Grantor | Grantee | |
|
12/31/2020 |
|
Deeds |
$183,000 |
NOLEN INVESTMENTS LLC |
HELDRETH JOEL |
||
|
9/12/2019 |
|
Deeds |
$94,000 |
AJ LEGACY HOMES LLC |
NOLEN INVESTMENTS LLC |
||
|
11/9/2018 |
|
Deeds |
$85,000 |
MACHADO RAUL & ANA T |
AJ LEGACY HOMES LLC |
||
|
2/1/1987 |
|
Historical |
$0 |
GLENS INCORPORATED |
MACHADO RAUL & ANA T |
||
|
11/11/1911 |
|
Historical |
$0 |
|
GLENS INCORPORATED |
||
| Last Mailed Notice of Value (N.O.V.) Information/History | ||||||||
|---|---|---|---|---|---|---|---|---|
| Year | Date | Market Value | Taxable Market Value | Gross Assessed | Exemption | Net Assessed | ||
|
2026 |
02/23/2026 |
256,000 |
242,492 |
26,673 |
0 |
26,673 |
||
|
2025 |
02/14/2025 |
261,000 |
230,945 |
25,403 |
0 |
25,403 |
||
|
2024 |
02/13/2024 |
251,000 |
219,948 |
24,194 |
0 |
24,194 |
||
|
2023 |
02/14/2023 |
243,000 |
209,475 |
23,042 |
0 |
23,042 |
||
|
2022 |
03/15/2022 |
201,000 |
199,500 |
21,945 |
0 |
21,945 |
||
| Property Building Permit History | ||||||
|---|---|---|---|---|---|---|
| Issued | Permit # | Provided by | Bldg # | Description | Est Construction Cost | Status |
|
3/26/1997 |
10194112 |
OKLAHOMA CITY |
1 |
Demolish |
0 |
Inactive |
| Click button on building number to access detailed information: | ||||||
|---|---|---|---|---|---|---|
| Bldg # | Vacant/Improved Land | Bldg Description | Year Built | SqFt | # Stories | |
|
1 |
Improved |
1½ Story Fin |
1929 |
1,618 |
1.5 Stories |
|