|
|
|
| Larry Stein Oklahoma County Assessor (405) 713-1200 - Public Access System |
|
|
|
|
|
|
| Real Property Display - Screen Produced 4/12/2026 6:21:29 PM | ||||
|---|---|---|---|---|
| Account: R064146250 | Type: Exempt | Location: |
2838 NW 13TH ST |
|
| Building Name/Occupant: |
|
OKLAHOMA CITY |
||
| Owner Name 1: | THE COMMONS SCATTERED LLC |
Parcel PIN#: |
2719-06-414-6250 |
|
| Owner Name 2: | 1/4 section #: |
2719 |
||
| Owner Name 3: | Parent Acct: |
|
||
| Billing Address: | 4101 N CLASSEN BLVD STE A | Tax District: |
|
|
| City, State, Zip | OKLAHOMA CITY, OK 73118 | School System: |
Oklahoma City #89 |
|
|
Country: (If noted) |
Land Size: |
0.1607 Acres |
||
|
Land Value: 0 |
|
|||
|
Sect 30-T12N-R3W Qtr SW |
MILLERS BOULEVARD
Block
025
Lot
000
|
|||
| Full Legal Description: MILLERS BOULEVARD 025 000 LOTS 21 & 22 |
| No comparable sales report available. | ||||||||||||||||||||||
|
||||||||||||||||||||||
| Value History (*The County Treasurer 405-713-1300 posts & collects actual tax amounts. Contact information HERE) | |||||||||||||
|---|---|---|---|---|---|---|---|---|---|---|---|---|---|
| Year | Market Value | Taxable Mkt Value | Gross Assessed | Exemption | Net Assessed | Millage | Est. Tax | Tax Savings | |||||
|
2026 |
0 |
0 |
0 |
0 |
0 |
122.90 |
$0 |
$0 |
|||||
|
2025 |
0 |
0 |
0 |
0 |
0 |
122.90 |
$0 |
$0 |
|||||
|
2024 |
0 |
0 |
0 |
0 |
0 |
123.89 |
$0 |
$0 |
|||||
|
2023 |
0 |
0 |
0 |
0 |
0 |
122.82 |
$0 |
$0 |
|||||
|
2022 |
0 |
0 |
0 |
0 |
0 |
117.63 |
$0 |
$0 |
|||||
| Property Account Status/Adjustments/Exemptions | ||
|---|---|---|
| Account # | Exemption Description | Amount |
|
R064146250 |
988A |
0 |
|
R064146250 |
Exempt |
100 |
|
R064146250 |
5% Capped Account |
0 |
| Property Deed Transaction History (Recorded in the County Clerk's Office) | ||||||||||
|---|---|---|---|---|---|---|---|---|---|---|
| Date | Type | Book | Page | Price | Grantor | Grantee | ||||
|
5/30/2017 |
|
Hmstd Off & |
$0 |
NEIGHBORHOOD HOUSING SERVICES OKC INC |
THE COMMONS SCATTERED LLC |
|||||
|
7/9/2013 |
|
Deeds |
$29,500 |
BANK OF NEW YORK |
BANK OF AMERICA |
|||||
|
7/9/2013 |
|
Deeds |
$500 |
BANK OF AMERICA |
NEIGHBORHOOD HOUSING SERVICES OKC INC |
|||||
|
5/17/2013 |
|
Hmstd Off & |
$0 |
HARTFIELD ELAINE CASSANDRA & KENNETH |
BANK OF NEW YORK |
|||||
|
8/23/2006 |
|
Deeds |
$0 |
HARTFIELD KENNETH & ELAINE |
HARTFIELD ELAINE CASSANDRA & KENNETH |
|||||
| Last Mailed Notice of Value (N.O.V.) Information/History | ||||||
|---|---|---|---|---|---|---|
| Year | Date | Market Value | Taxable Market Value | Gross Assessed | Exemption | Net Assessed |
|
2015 |
03/16/2015 |
67,434 |
66,021 |
7,261 |
0 |
7,261 |
| Property Building Permit History | |||||||||||
|---|---|---|---|---|---|---|---|---|---|---|---|
| Issued | Permit # | Provided by | Bldg # | Description | Est Construction Cost | Status | |||||
| No Building Permit records returned. | |||||||||||
| Click button on building number to access detailed information: | ||||||
|---|---|---|---|---|---|---|
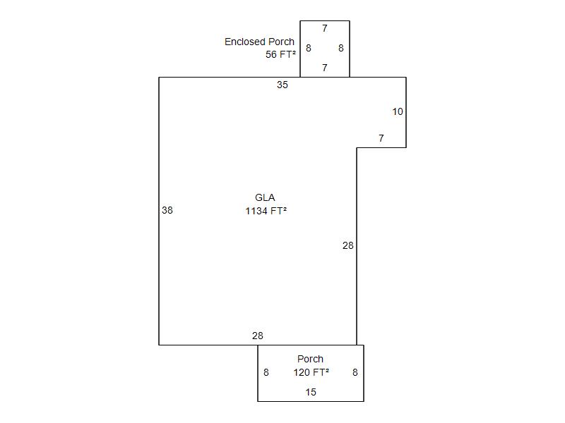
| Bldg # | Vacant/Improved Land | Bldg Description | Year Built | SqFt | # Stories | |
|
1 |
Improved |
Ranch 1 Story |
1935 |
1,134 |
1 Stories |
|