|
|
|
| Larry Stein Oklahoma County Assessor (405) 713-1200 - Public Access System |
|
|
|
|
|
|
| Real Property Display - Screen Produced 4/14/2026 4:53:16 AM | ||||
|---|---|---|---|---|
| Account: R064146350 | Type: Residential | Location: |
2809 NW 12TH ST |
|
| Building Name/Occupant: |
|
OKLAHOMA CITY |
||
| Owner Name 1: | SUNRISE CAPITAL LLC |
Parcel PIN#: |
2719-06-414-6350 |
|
| Owner Name 2: | 1/4 section #: |
2719 |
||
| Owner Name 3: | Parent Acct: |
|
||
| Billing Address: | 2809 NW 12TH ST | Tax District: |
|
|
| City, State, Zip | OKLAHOMA CITY, OK 73107-5321 | School System: |
Oklahoma City #89 |
|
|
Country: (If noted) |
Land Size: |
0.1607 Acres |
||
|
Land Value: 30,450 |
|
|||
|
Sect 30-T12N-R3W Qtr SW |
MILLERS BOULEVARD
Block
025
Lot
000
|
|||
| Full Legal Description: MILLERS BOULEVARD 025 000 LOTS 43 & 44 |
| Photo & Sketch (if available) | Comp Sales (ordered by relevancy) |
|
||||||||||||||||||
|
||||||||||||||||||||
| Value History (*The County Treasurer 405-713-1300 posts & collects actual tax amounts. Contact information HERE) | |||||||||||||
|---|---|---|---|---|---|---|---|---|---|---|---|---|---|
| Year | Market Value | Taxable Mkt Value | Gross Assessed | Exemption | Net Assessed | Millage | Est. Tax | Tax Savings | |||||
|
2026 |
160,000 |
153,468 |
16,880 |
0 |
16,880 |
122.90 |
$2,075 |
$88 |
|||||
|
2025 |
158,000 |
146,160 |
16,077 |
0 |
16,077 |
122.90 |
$1,976 |
$160 |
|||||
|
2024 |
122,500 |
109,200 |
12,012 |
0 |
12,012 |
123.89 |
$1,488 |
$181 |
|||||
|
2023 |
104,000 |
104,000 |
11,440 |
0 |
11,440 |
122.82 |
$1,405 |
$0 |
|||||
|
2022 |
93,000 |
70,107 |
7,711 |
1,000 |
6,711 |
117.63 |
$790 |
$414 |
|||||
| Property Account Status/Adjustments/Exemptions | ||
|---|---|---|
| Account # | Exemption Description | Amount |
|
R064146350 |
5% Capped Account |
0 |
| Property Deed Transaction History (Recorded in the County Clerk's Office) | ||||||||||
|---|---|---|---|---|---|---|---|---|---|---|
| Date | Type | Book | Page | Price | Grantor | Grantee | ||||
|
10/5/2023 |
|
Hmstd Off & |
$0 |
THL INVESTMENT LLC |
SUNRISE CAPITAL LLC |
|||||
|
7/13/2022 |
|
Deeds |
$102,500 |
BAKER GREG J |
THL INVESTMENT LLC |
|||||
|
5/19/2022 |
|
Deeds |
$80,000 |
PULLEY E E |
BAKER GREG J |
|||||
|
8/24/2001 |
|
Other |
$0 |
OBRYAN CHARLES |
PULLEY E E |
|||||
|
7/15/1997 |
|
Historical |
$0 |
OBRYAN CHARLES |
OBRYAN CHARLES |
|||||
| Last Mailed Notice of Value (N.O.V.) Information/History | ||||||||
|---|---|---|---|---|---|---|---|---|
| Year | Date | Market Value | Taxable Market Value | Gross Assessed | Exemption | Net Assessed | ||
|
2026 |
02/23/2026 |
160,000 |
153,468 |
16,880 |
0 |
16,880 |
||
|
2025 |
03/28/2025 |
158,000 |
146,160 |
16,077 |
0 |
16,077 |
||
|
2024 |
02/13/2024 |
122,500 |
109,200 |
12,012 |
0 |
12,012 |
||
|
2023 |
02/14/2023 |
104,000 |
104,000 |
11,440 |
0 |
11,440 |
||
|
2022 |
03/15/2022 |
93,000 |
70,107 |
7,711 |
1,000 |
6,711 |
||
| Property Building Permit History | |||||||||||
|---|---|---|---|---|---|---|---|---|---|---|---|
| Issued | Permit # | Provided by | Bldg # | Description | Est Construction Cost | Status | |||||
| No Building Permit records returned. | |||||||||||
| Click button on building number to access detailed information: | ||||||
|---|---|---|---|---|---|---|
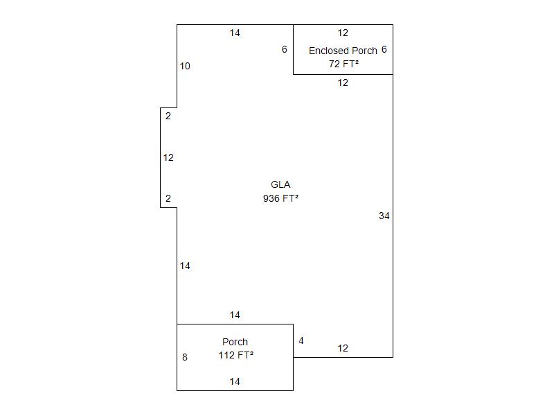
| Bldg # | Vacant/Improved Land | Bldg Description | Year Built | SqFt | # Stories | |
|
1 |
Improved |
Ranch 1 Story |
1920 |
936 |
1 Stories |
|