|
|
|
| Larry Stein Oklahoma County Assessor (405) 713-1200 - Public Access System |
|
|
|
|
|
|
| Real Property Display - Screen Produced 4/12/2026 6:20:06 PM | ||||
|---|---|---|---|---|
| Account: R064146520 | Type: Residential | Location: |
2825 NW 13TH ST |
|
| Building Name/Occupant: |
|
OKLAHOMA CITY |
||
| Owner Name 1: | CALDERON ADELMO D & ZONIA |
Parcel PIN#: |
2719-06-414-6520 |
|
| Owner Name 2: | 1/4 section #: |
2719 |
||
| Owner Name 3: | Parent Acct: |
|
||
| Billing Address: | 3125 ETON AVE | Tax District: |
|
|
| City, State, Zip | OKLAHOMA CITY, OK 73122 | School System: |
Oklahoma City #89 |
|
|
Country: (If noted) |
Land Size: |
0.1607 Acres |
||
|
Land Value: 30,450 |
|
|||
|
Sect 30-T12N-R3W Qtr SW |
MILLERS BOULEVARD
Block
026
Lot
000
|
|||
| Full Legal Description: MILLERS BOULEVARD 026 000 LOTS 35 & 36 |
| Photo & Sketch (if available) | Comp Sales (ordered by relevancy) |
|
||||||||||||||||||
|
||||||||||||||||||||
| Value History (*The County Treasurer 405-713-1300 posts & collects actual tax amounts. Contact information HERE) | |||||||||||||
|---|---|---|---|---|---|---|---|---|---|---|---|---|---|
| Year | Market Value | Taxable Mkt Value | Gross Assessed | Exemption | Net Assessed | Millage | Est. Tax | Tax Savings | |||||
|
2026 |
234,000 |
137,433 |
15,116 |
0 |
15,116 |
122.90 |
$1,858 |
$1,305 |
|||||
|
2025 |
232,000 |
130,889 |
14,397 |
0 |
14,397 |
122.90 |
$1,769 |
$1,367 |
|||||
|
2024 |
228,000 |
124,657 |
13,711 |
0 |
13,711 |
123.89 |
$1,699 |
$1,408 |
|||||
|
2023 |
212,000 |
118,721 |
13,058 |
0 |
13,058 |
122.82 |
$1,604 |
$1,260 |
|||||
|
2022 |
167,000 |
113,068 |
12,437 |
0 |
12,437 |
117.63 |
$1,463 |
$698 |
|||||
| Property Account Status/Adjustments/Exemptions | ||
|---|---|---|
| Account # | Exemption Description | Amount |
|
R064146520 |
5% Capped Account |
0 |
| Property Deed Transaction History (Recorded in the County Clerk's Office) | |||||||
|---|---|---|---|---|---|---|---|
| Date | Type | Book | Page | Price | Grantor | Grantee | |
|
3/30/2020 |
|
Hmstd Off & |
$0 |
CALDERON ADELMO D |
CALDERON ADELMO D & ZONIA |
||
|
9/15/1998 |
|
Historical |
$40,000 |
EASTER ROY & BETTY SUE TRS |
CALDERON ADELMO D |
||
|
9/10/1990 |
|
Historical |
$0 |
EASTER BETTY S |
EASTER ROY & BETTY SUE TRS |
||
|
4/1/1984 |
|
Historical |
$0 |
|
EASTER BETTY S |
||
| Last Mailed Notice of Value (N.O.V.) Information/History | ||||||||
|---|---|---|---|---|---|---|---|---|
| Year | Date | Market Value | Taxable Market Value | Gross Assessed | Exemption | Net Assessed | ||
|
2026 |
02/23/2026 |
234,000 |
137,433 |
15,116 |
0 |
15,116 |
||
|
2025 |
02/14/2025 |
232,000 |
130,889 |
14,397 |
0 |
14,397 |
||
|
2024 |
02/13/2024 |
228,000 |
124,657 |
13,711 |
0 |
13,711 |
||
|
2023 |
02/14/2023 |
212,000 |
118,721 |
13,058 |
0 |
13,058 |
||
|
2022 |
03/15/2022 |
167,000 |
113,068 |
12,437 |
0 |
12,437 |
||
| Property Building Permit History | |||||||||||
|---|---|---|---|---|---|---|---|---|---|---|---|
| Issued | Permit # | Provided by | Bldg # | Description | Est Construction Cost | Status | |||||
| No Building Permit records returned. | |||||||||||
| Click button on building number to access detailed information: | ||||||
|---|---|---|---|---|---|---|
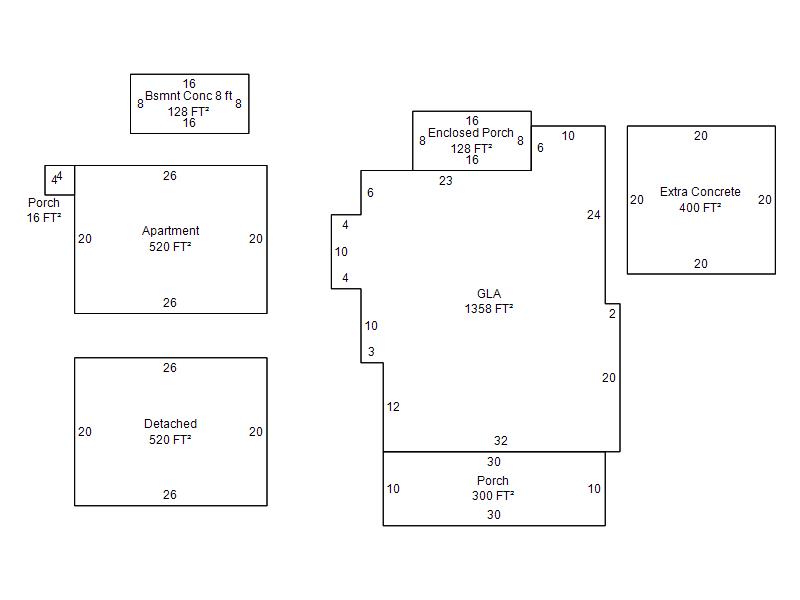
| Bldg # | Vacant/Improved Land | Bldg Description | Year Built | SqFt | # Stories | |
|
1 |
Improved |
Ranch 1 Story |
1925 |
1,358 |
1 Stories |
|