|
|
|
| Larry Stein Oklahoma County Assessor (405) 713-1200 - Public Access System |
|
|
|
|
|
|
| Real Property Display - Screen Produced 4/14/2026 4:41:27 AM | ||||
|---|---|---|---|---|
| Account: R064146530 | Type: Residential | Location: |
2821 NW 13TH ST |
|
| Building Name/Occupant: |
|
OKLAHOMA CITY |
||
| Owner Name 1: | OCHOA MISAEL MARTINEZ |
Parcel PIN#: |
2719-06-414-6530 |
|
| Owner Name 2: | 1/4 section #: |
2719 |
||
| Owner Name 3: | Parent Acct: |
|
||
| Billing Address: | 5611 MARBLEWOOD DR | Tax District: |
|
|
| City, State, Zip | OKLAHOMA CITY, OK 73179 | School System: |
Oklahoma City #89 |
|
|
Country: (If noted) |
Land Size: |
0.1607 Acres |
||
|
Land Value: 30,450 |
|
|||
|
Sect 30-T12N-R3W Qtr SW |
MILLERS BOULEVARD
Block
026
Lot
000
|
|||
| Full Legal Description: MILLERS BOULEVARD 026 000 LOTS 37 & 38 |
| Photo & Sketch (if available) | Comp Sales (ordered by relevancy) |
|
||||||||||||||||||
|
||||||||||||||||||||
| Value History (*The County Treasurer 405-713-1300 posts & collects actual tax amounts. Contact information HERE) | |||||||||||||
|---|---|---|---|---|---|---|---|---|---|---|---|---|---|
| Year | Market Value | Taxable Mkt Value | Gross Assessed | Exemption | Net Assessed | Millage | Est. Tax | Tax Savings | |||||
|
2026 |
253,000 |
253,000 |
27,830 |
0 |
27,830 |
122.90 |
$3,420 |
$0 |
|||||
|
2025 |
258,500 |
258,500 |
28,435 |
0 |
28,435 |
122.90 |
$3,495 |
$0 |
|||||
|
2024 |
254,500 |
254,500 |
27,995 |
0 |
27,995 |
123.89 |
$3,468 |
$0 |
|||||
|
2023 |
291,000 |
291,000 |
32,010 |
0 |
32,010 |
122.82 |
$3,931 |
$0 |
|||||
|
2022 |
155,500 |
148,575 |
16,343 |
0 |
16,343 |
117.63 |
$1,922 |
$90 |
|||||
| Property Account Status/Adjustments/Exemptions | ||
|---|---|---|
| Account # | Exemption Description | Amount |
|
R064146530 |
5% Capped Account |
0 |
| Property Deed Transaction History (Recorded in the County Clerk's Office) | ||||||||||
|---|---|---|---|---|---|---|---|---|---|---|
| Date | Type | Book | Page | Price | Grantor | Grantee | ||||
|
5/31/2022 |
|
Deeds |
$290,000 |
COVENANT PROMISES 1 LLC |
OCHOA MISAEL MARTINEZ |
|||||
|
3/15/2018 |
|
Deeds |
$127,500 |
BYRD ALLEN |
COVENANT PROMISES 1 LLC |
|||||
|
9/28/2005 |
|
Deeds |
$94,000 |
STRUBLE PROPERTIES LLC |
BYRD ALLEN |
|||||
|
1/15/2004 |
|
Deeds |
$38,000 |
WILLIAMS SHERRI LYNN |
STRUBLE PROPERTIES LLC |
|||||
|
11/10/2000 |
|
Deeds |
$32,000 |
REIF TERESA M |
WILLIAMS SHERRI LYNN |
|||||
| Last Mailed Notice of Value (N.O.V.) Information/History | ||||||||
|---|---|---|---|---|---|---|---|---|
| Year | Date | Market Value | Taxable Market Value | Gross Assessed | Exemption | Net Assessed | ||
|
2025 |
02/14/2025 |
258,500 |
258,500 |
28,435 |
0 |
28,435 |
||
|
2023 |
02/14/2023 |
291,000 |
291,000 |
32,010 |
0 |
32,010 |
||
|
2022 |
03/15/2022 |
155,500 |
148,575 |
16,343 |
0 |
16,343 |
||
|
2021 |
03/19/2021 |
141,500 |
141,500 |
15,565 |
0 |
15,565 |
||
|
2020 |
03/10/2020 |
135,500 |
135,500 |
14,905 |
0 |
14,905 |
||
| Property Building Permit History | |||||||||||
|---|---|---|---|---|---|---|---|---|---|---|---|
| Issued | Permit # | Provided by | Bldg # | Description | Est Construction Cost | Status | |||||
| No Building Permit records returned. | |||||||||||
| Click button on building number to access detailed information: | ||||||
|---|---|---|---|---|---|---|
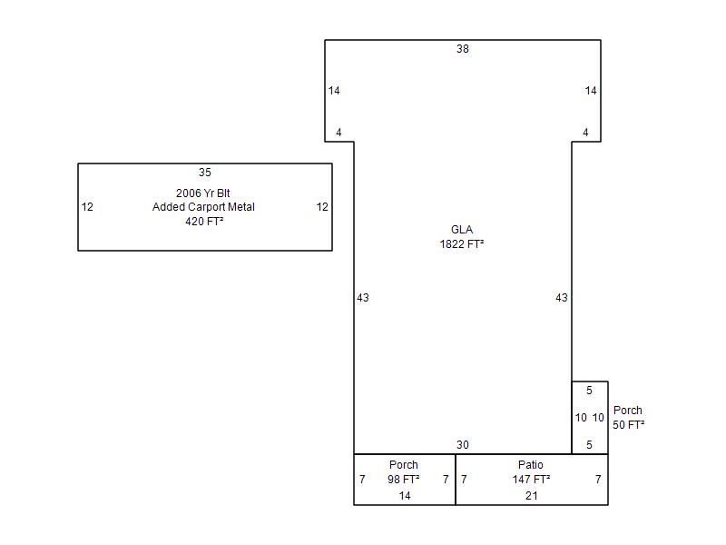
| Bldg # | Vacant/Improved Land | Bldg Description | Year Built | SqFt | # Stories | |
|
1 |
Improved |
Duplex One Story |
1929 |
1,822 |
1 Stories |
|