|
|
|
| Larry Stein Oklahoma County Assessor (405) 713-1200 - Public Access System |
|
|
|
|
|
|
| Real Property Display - Screen Produced 4/14/2026 4:41:27 AM | ||||
|---|---|---|---|---|
| Account: R064146830 | Type: Residential | Location: |
2800 NW 16TH ST |
|
| Building Name/Occupant: |
|
OKLAHOMA CITY |
||
| Owner Name 1: | REDDIRT LEASING LLC |
Parcel PIN#: |
2719-06-414-6830 |
|
| Owner Name 2: | 1/4 section #: |
2719 |
||
| Owner Name 3: | Parent Acct: |
|
||
| Billing Address: | PO BOX 535033 | Tax District: |
|
|
| City, State, Zip | GRAND PRAIRIE, TX 75053 | School System: |
Oklahoma City #89 |
|
|
Country: (If noted) |
Land Size: |
0.1607 Acres |
||
|
Land Value: 30,450 |
|
|||
|
Sect 30-T12N-R3W Qtr SW |
MILLERS BOULEVARD
Block
028
Lot
000
|
|||
| Full Legal Description: MILLERS BOULEVARD 028 000 LOTS 1 & 2 |
| No comparable sales report available. | ||||||||||||||||||||||
|
||||||||||||||||||||||
| Value History (*The County Treasurer 405-713-1300 posts & collects actual tax amounts. Contact information HERE) | |||||||||||||
|---|---|---|---|---|---|---|---|---|---|---|---|---|---|
| Year | Market Value | Taxable Mkt Value | Gross Assessed | Exemption | Net Assessed | Millage | Est. Tax | Tax Savings | |||||
|
2026 |
214,964 |
212,124 |
23,333 |
0 |
23,333 |
122.90 |
$2,868 |
$38 |
|||||
|
2025 |
202,023 |
202,023 |
22,222 |
0 |
22,222 |
122.90 |
$2,731 |
$0 |
|||||
|
2024 |
190,443 |
136,421 |
15,005 |
0 |
15,005 |
123.89 |
$1,859 |
$736 |
|||||
|
2023 |
173,358 |
129,925 |
14,291 |
0 |
14,291 |
122.82 |
$1,755 |
$587 |
|||||
|
2022 |
169,108 |
123,739 |
13,610 |
0 |
13,610 |
117.63 |
$1,601 |
$587 |
|||||
| Property Account Status/Adjustments/Exemptions | ||
|---|---|---|
| Account # | Exemption Description | Amount |
|
R064146830 |
5% Capped Account |
0 |
| Property Deed Transaction History (Recorded in the County Clerk's Office) | |||||||
|---|---|---|---|---|---|---|---|
| Date | Type | Book | Page | Price | Grantor | Grantee | |
|
7/2/2024 |
|
Deeds |
$50,000 |
COLEMAN KENNETH J |
SAINT CASTLE PROPERTIES LLC |
||
|
7/2/2024 |
|
Deeds |
$125,000 |
SAINT CASTLE PROPERTIES LLC |
REDDIRT LEASING LLC |
||
|
5/1/1986 |
|
Historical |
$0 |
|
COLEMAN KENNETH J |
||
| Last Mailed Notice of Value (N.O.V.) Information/History | ||||||||
|---|---|---|---|---|---|---|---|---|
| Year | Date | Market Value | Taxable Market Value | Gross Assessed | Exemption | Net Assessed | ||
|
2026 |
02/23/2026 |
214,964 |
212,124 |
23,333 |
0 |
23,333 |
||
|
2025 |
02/14/2025 |
202,023 |
202,023 |
22,222 |
0 |
22,222 |
||
|
2024 |
02/13/2024 |
190,443 |
136,421 |
15,005 |
0 |
15,005 |
||
|
2023 |
02/14/2023 |
173,358 |
129,925 |
14,291 |
0 |
14,291 |
||
|
2022 |
03/15/2022 |
169,108 |
123,739 |
13,610 |
0 |
13,610 |
||
| Property Building Permit History | |||||||||||
|---|---|---|---|---|---|---|---|---|---|---|---|
| Issued | Permit # | Provided by | Bldg # | Description | Est Construction Cost | Status | |||||
| No Building Permit records returned. | |||||||||||
| Click button on building number to access detailed information: | ||||||
|---|---|---|---|---|---|---|
| Bldg # | Vacant/Improved Land | Bldg Description | Year Built | SqFt | # Stories | |
|
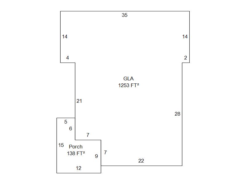
1 |
Improved |
Ranch 1 Story |
1920 |
1,253 |
1 Stories |
|
|
2 |
Improved |
Ranch 1 Story |
1925 |
484 |
1 Stories |
|