|
|
|
| Larry Stein Oklahoma County Assessor (405) 713-1200 - Public Access System |
|
|
|
|
|
|
| Real Property Display - Screen Produced 4/15/2026 8:22:26 AM | ||||
|---|---|---|---|---|
| Account: R064146850 | Type: Residential | Location: |
2808 NW 16TH ST |
|
| Building Name/Occupant: |
|
OKLAHOMA CITY |
||
| Owner Name 1: | HISEY HAYDEN A |
Parcel PIN#: |
2719-06-414-6850 |
|
| Owner Name 2: | 1/4 section #: |
2719 |
||
| Owner Name 3: | Parent Acct: |
|
||
| Billing Address: | 2808 NW 16TH ST | Tax District: |
|
|
| City, State, Zip | OKLAHOMA CITY, OK 73107 | School System: |
Oklahoma City #89 |
|
|
Country: (If noted) |
Land Size: |
0.1607 Acres |
||
|
Land Value: 30,450 |
|
|||
|
Sect 30-T12N-R3W Qtr SW |
MILLERS BOULEVARD
Block
028
Lot
000
|
|||
| Full Legal Description: MILLERS BOULEVARD 028 000 LOTS 5 & 6 |
| Photo & Sketch (if available) | Comp Sales (ordered by relevancy) |
|
||||||||||||||||||
|
||||||||||||||||||||
| Value History (*The County Treasurer 405-713-1300 posts & collects actual tax amounts. Contact information HERE) | |||||||||||||
|---|---|---|---|---|---|---|---|---|---|---|---|---|---|
| Year | Market Value | Taxable Mkt Value | Gross Assessed | Exemption | Net Assessed | Millage | Est. Tax | Tax Savings | |||||
|
2026 |
204,500 |
183,144 |
20,145 |
0 |
20,145 |
122.90 |
$2,476 |
$289 |
|||||
|
2025 |
209,500 |
174,423 |
19,185 |
0 |
19,185 |
122.90 |
$2,358 |
$474 |
|||||
|
2024 |
206,500 |
166,118 |
18,272 |
0 |
18,272 |
123.89 |
$2,264 |
$550 |
|||||
|
2023 |
201,500 |
158,208 |
17,402 |
0 |
17,402 |
122.82 |
$2,137 |
$585 |
|||||
|
2022 |
165,500 |
150,675 |
16,574 |
0 |
16,574 |
117.63 |
$1,950 |
$192 |
|||||
| Property Account Status/Adjustments/Exemptions | ||
|---|---|---|
| Account # | Exemption Description | Amount |
|
R064146850 |
5% Capped Account |
0 |
| Property Deed Transaction History (Recorded in the County Clerk's Office) | ||||||||||
|---|---|---|---|---|---|---|---|---|---|---|
| Date | Type | Book | Page | Price | Grantor | Grantee | ||||
|
5/22/2020 |
|
Deeds |
$138,000 |
DONYAI LAYLA |
HISEY HAYDEN A |
|||||
|
12/15/2015 |
|
Deeds |
$105,500 |
SMITH JAMES C |
DONYAI LAYLA |
|||||
|
8/23/2006 |
|
Deeds |
$95,500 |
SHADID BARRY & DORENE |
SMITH JAMES C |
|||||
|
3/3/2006 |
|
Deeds |
$42,000 |
RICH MICHAEL |
SHADID BARRY & DORENE |
|||||
|
8/3/1998 |
|
Historical |
$36,000 |
PENNINGTON PHILLIP J |
RICH MICHAEL |
|||||
| Last Mailed Notice of Value (N.O.V.) Information/History | ||||||||
|---|---|---|---|---|---|---|---|---|
| Year | Date | Market Value | Taxable Market Value | Gross Assessed | Exemption | Net Assessed | ||
|
2026 |
02/23/2026 |
204,500 |
183,144 |
20,145 |
0 |
20,145 |
||
|
2025 |
02/14/2025 |
209,500 |
174,423 |
19,185 |
0 |
19,185 |
||
|
2024 |
02/13/2024 |
206,500 |
166,118 |
18,272 |
0 |
18,272 |
||
|
2023 |
02/14/2023 |
201,500 |
158,208 |
17,402 |
0 |
17,402 |
||
|
2022 |
03/15/2022 |
165,500 |
150,675 |
16,574 |
0 |
16,574 |
||
| Property Building Permit History | |||||||||||
|---|---|---|---|---|---|---|---|---|---|---|---|
| Issued | Permit # | Provided by | Bldg # | Description | Est Construction Cost | Status | |||||
| No Building Permit records returned. | |||||||||||
| Click button on building number to access detailed information: | ||||||
|---|---|---|---|---|---|---|
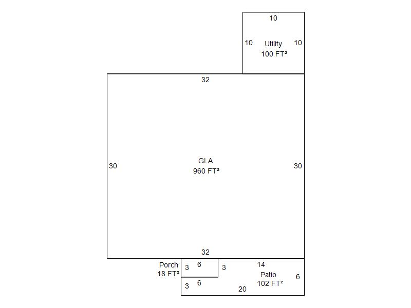
| Bldg # | Vacant/Improved Land | Bldg Description | Year Built | SqFt | # Stories | |
|
1 |
Improved |
Ranch 1 Story |
1925 |
960 |
1 Stories |
|