|
|
|
| Larry Stein Oklahoma County Assessor (405) 713-1200 - Public Access System |
|
|
|
|
|
|
| Real Property Display - Screen Produced 4/14/2026 4:44:33 AM | ||||
|---|---|---|---|---|
| Account: R064147030 | Type: Residential | Location: |
2805 NW 15TH ST |
|
| Building Name/Occupant: |
|
OKLAHOMA CITY |
||
| Owner Name 1: | BRITTON CACHE ANTHONY |
Parcel PIN#: |
2719-06-414-7030 |
|
| Owner Name 2: | 1/4 section #: |
2719 |
||
| Owner Name 3: | Parent Acct: |
|
||
| Billing Address: | 2805 NW 15TH ST | Tax District: |
|
|
| City, State, Zip | OKLAHOMA CITY, OK 73107-4712 | School System: |
Oklahoma City #89 |
|
|
Country: (If noted) |
Land Size: |
0.1607 Acres |
||
|
Land Value: 30,450 |
|
|||
|
Sect 30-T12N-R3W Qtr SW |
MILLERS BOULEVARD
Block
028
Lot
000
|
|||
| Full Legal Description: MILLERS BOULEVARD 028 000 LOTS 45 & 46 |
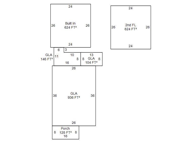
| Photo & Sketch (if available) | Comp Sales (ordered by relevancy) |
|
||||||||||||||||||
|
||||||||||||||||||||
| Value History (*The County Treasurer 405-713-1300 posts & collects actual tax amounts. Contact information HERE) | |||||||||||||
|---|---|---|---|---|---|---|---|---|---|---|---|---|---|
| Year | Market Value | Taxable Mkt Value | Gross Assessed | Exemption | Net Assessed | Millage | Est. Tax | Tax Savings | |||||
|
2026 |
237,000 |
167,819 |
18,460 |
0 |
18,460 |
122.90 |
$2,269 |
$935 |
|||||
|
2025 |
235,500 |
159,828 |
17,580 |
0 |
17,580 |
122.90 |
$2,161 |
$1,023 |
|||||
|
2024 |
230,000 |
152,218 |
16,743 |
0 |
16,743 |
123.89 |
$2,074 |
$1,060 |
|||||
|
2023 |
215,500 |
144,970 |
15,946 |
0 |
15,946 |
122.82 |
$1,959 |
$953 |
|||||
|
2022 |
169,000 |
138,067 |
15,186 |
0 |
15,186 |
117.63 |
$1,786 |
$400 |
|||||
| Property Account Status/Adjustments/Exemptions | ||
|---|---|---|
| Account # | Exemption Description | Amount |
|
R064147030 |
5% Capped Account |
0 |
| Property Deed Transaction History (Recorded in the County Clerk's Office) | ||||||||||
|---|---|---|---|---|---|---|---|---|---|---|
| Date | Type | Book | Page | Price | Grantor | Grantee | ||||
|
2/10/2025 |
|
Hmstd Off & |
$0 |
BRITTON WANA JO |
BRITTON CACHE ANTHONY |
|||||
|
6/16/2011 |
|
Hmstd Off & |
$0 |
BRITTON FAMILY LLC |
BRITTON WANA JO |
|||||
|
10/8/2010 |
|
Deeds |
$101,000 |
BRITTON CACHE |
BRITTON FAMILY LLC |
|||||
|
6/28/2005 |
|
Deeds |
$0 |
BRITTON EVERETT & WANA J |
BRITTON WANA JO |
|||||
|
6/28/2005 |
|
Deeds |
$98,500 |
BRITTON WANA JO |
BRITTON CACHE |
|||||
| Last Mailed Notice of Value (N.O.V.) Information/History | ||||||||
|---|---|---|---|---|---|---|---|---|
| Year | Date | Market Value | Taxable Market Value | Gross Assessed | Exemption | Net Assessed | ||
|
2026 |
02/23/2026 |
237,000 |
167,819 |
18,460 |
0 |
18,460 |
||
|
2025 |
02/14/2025 |
235,500 |
159,828 |
17,580 |
0 |
17,580 |
||
|
2025 |
03/28/2025 |
235,500 |
159,828 |
17,580 |
0 |
17,580 |
||
|
2024 |
02/13/2024 |
230,000 |
152,218 |
16,743 |
0 |
16,743 |
||
|
2023 |
02/14/2023 |
215,500 |
144,970 |
15,946 |
0 |
15,946 |
||
| Property Building Permit History | ||||||
|---|---|---|---|---|---|---|
| Issued | Permit # | Provided by | Bldg # | Description | Est Construction Cost | Status |
|
6/10/1999 |
10194143 |
OKLAHOMA CITY |
1 |
Burn - Trip |
45,000 |
Inactive |
| Click button on building number to access detailed information: | ||||||
|---|---|---|---|---|---|---|
| Bldg # | Vacant/Improved Land | Bldg Description | Year Built | SqFt | # Stories | |
|
1 |
Improved |
1½ Story Fin |
1925 |
1,810 |
1.5 Stories |
|