|
|
|
| Larry Stein Oklahoma County Assessor (405) 713-1200 - Public Access System |
|
|
|
|
|
|
| Real Property Display - Screen Produced 4/13/2026 1:59:25 AM | ||||
|---|---|---|---|---|
| Account: R064157100 | Type: Residential | Location: |
2522 NW 11TH ST |
|
| Building Name/Occupant: |
|
OKLAHOMA CITY |
||
| Owner Name 1: | CARNEGIE INVESTMENTS LLC |
Parcel PIN#: |
2719-06-415-7100 |
|
| Owner Name 2: | 1/4 section #: |
2719 |
||
| Owner Name 3: | Parent Acct: |
|
||
| Billing Address: | 5030 N MAY AVE UNIT 230 | Tax District: |
|
|
| City, State, Zip | OKLAHOMA CITY, OK 73112-6010 | School System: |
Oklahoma City #89 |
|
|
Country: (If noted) |
Land Size: |
0.1722 Acres |
||
|
Land Value: 32,625 |
|
|||
|
Sect 30-T12N-R3W Qtr SW |
KENYON REY SUB
Block
001
Lot
005
|
|||
| Full Legal Description: KENYON REY SUB 001 005 |
| Photo & Sketch (if available) | Comp Sales (ordered by relevancy) |
|
||||||||||||||||||
|
||||||||||||||||||||
| Value History (*The County Treasurer 405-713-1300 posts & collects actual tax amounts. Contact information HERE) | |||||||||||||
|---|---|---|---|---|---|---|---|---|---|---|---|---|---|
| Year | Market Value | Taxable Mkt Value | Gross Assessed | Exemption | Net Assessed | Millage | Est. Tax | Tax Savings | |||||
|
2026 |
264,500 |
149,853 |
16,482 |
0 |
16,482 |
122.90 |
$2,026 |
$1,550 |
|||||
|
2025 |
261,000 |
142,718 |
15,698 |
0 |
15,698 |
122.90 |
$1,929 |
$1,599 |
|||||
|
2024 |
251,500 |
135,922 |
14,950 |
0 |
14,950 |
123.89 |
$1,852 |
$1,575 |
|||||
|
2023 |
247,000 |
129,450 |
14,239 |
0 |
14,239 |
122.82 |
$1,749 |
$1,588 |
|||||
|
2022 |
207,000 |
123,286 |
13,560 |
0 |
13,560 |
117.63 |
$1,595 |
$1,083 |
|||||
| Property Account Status/Adjustments/Exemptions | ||
|---|---|---|
| Account # | Exemption Description | Amount |
|
R064157100 |
5% Capped Account |
0 |
| Property Deed Transaction History (Recorded in the County Clerk's Office) | ||||||||||
|---|---|---|---|---|---|---|---|---|---|---|
| Date | Type | Book | Page | Price | Grantor | Grantee | ||||
|
9/29/2015 |
|
Deeds |
$88,000 |
SLAGLE JENNY & CHAD |
CARNEGIE INVESTMENTS LLC |
|||||
|
2/18/2009 |
|
Deeds |
$86,500 |
MAKI CHARLOTTE |
SLAGLE JENNY & CHAD |
|||||
|
9/25/2007 |
|
Deeds |
$85,000 |
ROBERTS EVAN C |
MAKI CHARLOTTE |
|||||
|
1/18/2007 |
|
Deeds |
$59,500 |
WOODY W PAUL TRS WOODY W PAUL TRUST |
ROBERTS EVAN C |
|||||
|
7/7/1999 |
|
Deeds |
$0 |
WOODY W PAUL TRS |
WOODY W PAUL TRS |
|||||
| Last Mailed Notice of Value (N.O.V.) Information/History | ||||||||
|---|---|---|---|---|---|---|---|---|
| Year | Date | Market Value | Taxable Market Value | Gross Assessed | Exemption | Net Assessed | ||
|
2026 |
02/23/2026 |
264,500 |
149,853 |
16,482 |
0 |
16,482 |
||
|
2025 |
02/14/2025 |
261,000 |
142,718 |
15,698 |
0 |
15,698 |
||
|
2024 |
02/13/2024 |
251,500 |
135,922 |
14,950 |
0 |
14,950 |
||
|
2023 |
02/14/2023 |
247,000 |
129,450 |
14,239 |
0 |
14,239 |
||
|
2022 |
03/15/2022 |
207,000 |
123,286 |
13,560 |
0 |
13,560 |
||
| Property Building Permit History | |||||||||||
|---|---|---|---|---|---|---|---|---|---|---|---|
| Issued | Permit # | Provided by | Bldg # | Description | Est Construction Cost | Status | |||||
| No Building Permit records returned. | |||||||||||
| Click button on building number to access detailed information: | ||||||
|---|---|---|---|---|---|---|
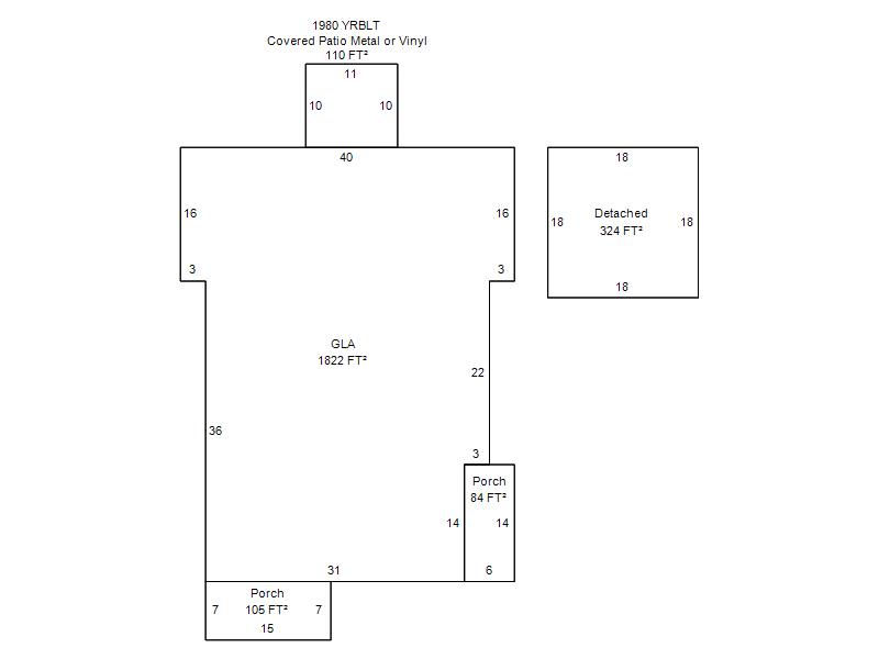
| Bldg # | Vacant/Improved Land | Bldg Description | Year Built | SqFt | # Stories | |
|
1 |
Improved |
Duplex One Story |
1930 |
1,822 |
1 Stories |
|