|
|
|
| Larry Stein Oklahoma County Assessor (405) 713-1200 - Public Access System |
|
|
|
|
|
|
| Real Property Display - Screen Produced 4/13/2026 1:59:03 AM | ||||
|---|---|---|---|---|
| Account: R064157170 | Type: Residential | Location: |
2500 W PARK PL |
|
| Building Name/Occupant: |
|
OKLAHOMA CITY |
||
| Owner Name 1: | BRUSS BRIAN CALEB & DIVINA CHAVEZ |
Parcel PIN#: |
2719-06-415-7170 |
|
| Owner Name 2: | 1/4 section #: |
2719 |
||
| Owner Name 3: | Parent Acct: |
|
||
| Billing Address: | 3104 HARWICH CT | Tax District: |
|
|
| City, State, Zip | NORMAN, OK 73071-7159 | School System: |
Oklahoma City #89 |
|
|
Country: (If noted) |
Land Size: |
0.1722 Acres |
||
|
Land Value: 32,625 |
|
|||
|
Sect 30-T12N-R3W Qtr SW |
KENYON REY SUB
Block
002
Lot
001
|
|||
| Full Legal Description: KENYON REY SUB 002 001 |
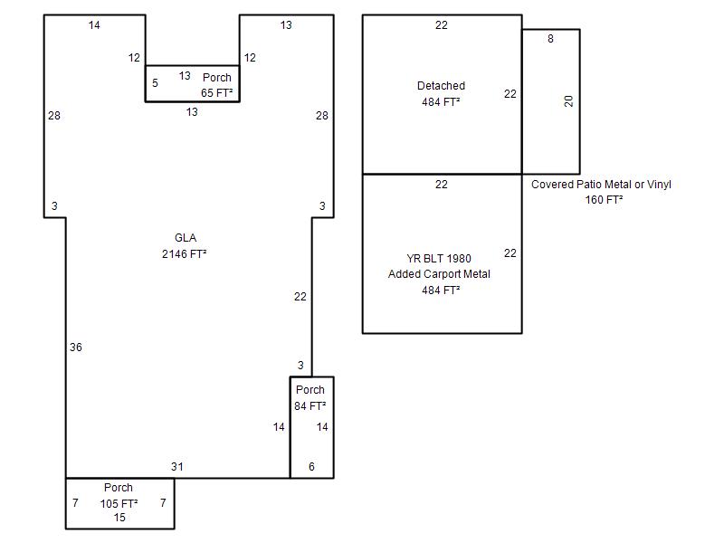
| Photo & Sketch (if available) | Comp Sales (ordered by relevancy) |
|
||||||||||||||||||
|
||||||||||||||||||||
| Value History (*The County Treasurer 405-713-1300 posts & collects actual tax amounts. Contact information HERE) | |||||||||||||
|---|---|---|---|---|---|---|---|---|---|---|---|---|---|
| Year | Market Value | Taxable Mkt Value | Gross Assessed | Exemption | Net Assessed | Millage | Est. Tax | Tax Savings | |||||
|
2026 |
235,000 |
111,692 |
12,286 |
0 |
12,286 |
122.90 |
$1,510 |
$1,667 |
|||||
|
2025 |
228,500 |
106,374 |
11,700 |
0 |
11,700 |
122.90 |
$1,438 |
$1,651 |
|||||
|
2024 |
217,000 |
101,309 |
11,143 |
0 |
11,143 |
123.89 |
$1,381 |
$1,577 |
|||||
|
2023 |
205,000 |
96,485 |
10,613 |
0 |
10,613 |
122.82 |
$1,304 |
$1,466 |
|||||
|
2022 |
160,000 |
91,891 |
10,107 |
0 |
10,107 |
117.63 |
$1,189 |
$881 |
|||||
| Property Account Status/Adjustments/Exemptions | ||
|---|---|---|
| Account # | Exemption Description | Amount |
|
R064157170 |
5% Capped Account |
0 |
| Property Deed Transaction History (Recorded in the County Clerk's Office) | ||||||||||
|---|---|---|---|---|---|---|---|---|---|---|
| Date | Type | Book | Page | Price | Grantor | Grantee | ||||
|
5/29/2009 |
|
Deeds |
$0 |
BRUSS BRIAN C |
BRUSS BRIAN CALEB & DIVINA CHAVEZ |
|||||
|
1/7/2005 |
|
Deeds |
$45,000 |
WESTERN UNITED LFE ASSURANCE CO |
BRUSS BRIAN C |
|||||
|
7/23/2004 |
|
Hmstd Off & |
$0 |
MILLER GARRY D& MARY CULBERTSON BARRY R & TERESA A |
WESTERN UNITED LFE ASSURANCE CO |
|||||
|
10/7/2003 |
|
Deeds |
$50,000 |
CULBERTSON BARRY R & TERESA A |
RAK PROPERTIES INC |
|||||
|
7/2/1998 |
|
Historical |
$0 |
MILLER GARRY D & MARY J |
CULBERTSON BARRY R & TERESA A |
|||||
| Last Mailed Notice of Value (N.O.V.) Information/History | ||||||||
|---|---|---|---|---|---|---|---|---|
| Year | Date | Market Value | Taxable Market Value | Gross Assessed | Exemption | Net Assessed | ||
|
2026 |
02/23/2026 |
235,000 |
111,692 |
12,286 |
0 |
12,286 |
||
|
2025 |
02/14/2025 |
228,500 |
106,374 |
11,700 |
0 |
11,700 |
||
|
2024 |
02/13/2024 |
217,000 |
101,309 |
11,143 |
0 |
11,143 |
||
|
2023 |
02/14/2023 |
205,000 |
96,485 |
10,613 |
0 |
10,613 |
||
|
2022 |
03/15/2022 |
160,000 |
91,891 |
10,107 |
0 |
10,107 |
||
| Property Building Permit History | |||||||||||
|---|---|---|---|---|---|---|---|---|---|---|---|
| Issued | Permit # | Provided by | Bldg # | Description | Est Construction Cost | Status | |||||
| No Building Permit records returned. | |||||||||||
| Click button on building number to access detailed information: | ||||||
|---|---|---|---|---|---|---|
| Bldg # | Vacant/Improved Land | Bldg Description | Year Built | SqFt | # Stories | |
|
1 |
Improved |
Duplex One Story |
1935 |
2,146 |
1 Stories |
|