|
|
|
| Larry Stein Oklahoma County Assessor (405) 713-1200 - Public Access System |
|
|
|
|
|
|
| Real Property Display - Screen Produced 4/1/2026 7:13:20 PM | ||||
|---|---|---|---|---|
| Account: R150510560 | Type: Residential | Location: |
520 E STEED DR |
|
| Building Name/Occupant: |
|
MIDWEST CITY |
||
| Owner Name 1: | LOKEY RICHARD A |
Parcel PIN#: |
1410-15-051-0560 |
|
| Owner Name 2: | 1/4 section #: |
1410 |
||
| Owner Name 3: | Parent Acct: |
|
||
| Billing Address: | 520 E STEED DR | Tax District: |
|
|
| City, State, Zip | MIDWEST CITY, OK 73110-4713 | School System: |
Mid-Del #52 |
|
|
Country: (If noted) |
Land Size: |
0.1877 Acres |
||
|
Land Value: 23,307 |
|
|||
|
Sect 3-T11N-R2W Qtr SE |
COUNTRY ESTATES 4TH
Block
003
Lot
007
|
|||
| Full Legal Description: COUNTRY ESTATES 4TH 003 007 |
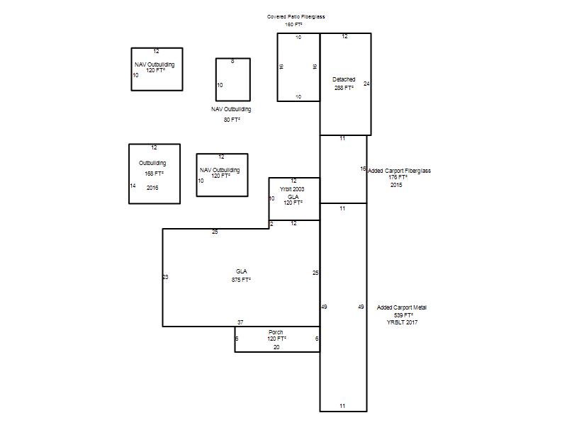
| Photo & Sketch (if available) | Comp Sales (ordered by relevancy) |
|
||||||||||||||||||
|
||||||||||||||||||||
| Value History (*The County Treasurer 405-713-1300 posts & collects actual tax amounts. Contact information HERE) | |||||||||||||
|---|---|---|---|---|---|---|---|---|---|---|---|---|---|
| Year | Market Value | Taxable Mkt Value | Gross Assessed | Exemption | Net Assessed | Millage | Est. Tax | Tax Savings | |||||
|
2026 |
127,500 |
85,503 |
9,404 |
9,404 |
0 |
119.58 |
$0 |
$1,677 |
|||||
|
2025 |
127,500 |
83,013 |
9,130 |
9,130 |
0 |
119.58 |
$0 |
$1,677 |
|||||
|
2024 |
120,500 |
80,596 |
8,865 |
8,865 |
0 |
122.51 |
$0 |
$1,624 |
|||||
|
2023 |
105,500 |
78,249 |
8,606 |
8,606 |
0 |
117.71 |
$0 |
$1,366 |
|||||
|
2022 |
94,000 |
75,970 |
8,356 |
8,356 |
0 |
116.64 |
$0 |
$1,206 |
|||||
| Property Account Status/Adjustments/Exemptions | ||
|---|---|---|
| Account # | Exemption Description | Amount |
|
R150510560 |
100% DAV Exemption |
100 |
|
R150510560 |
DAV Homestead |
0 |
|
R150510560 |
3% Cap Homestead |
0 |
| Property Deed Transaction History (Recorded in the County Clerk's Office) | |||||||
|---|---|---|---|---|---|---|---|
| Date | Type | Book | Page | Price | Grantor | Grantee | |
|
5/21/1998 |
|
Historical |
$35,000 |
FITZGERALD JACKIE |
LOKEY RICHARD A |
||
|
3/4/1994 |
|
Historical |
$31,500 |
GILMORE EDITH |
FITZGERALD JACKIE |
||
|
11/11/1911 |
|
Historical |
$0 |
|
GILMORE EDITH |
||
| Last Mailed Notice of Value (N.O.V.) Information/History | ||||||||
|---|---|---|---|---|---|---|---|---|
| Year | Date | Market Value | Taxable Market Value | Gross Assessed | Exemption | Net Assessed | ||
|
2026 |
02/06/2026 |
127,500 |
85,503 |
9,404 |
9,404 |
0 |
||
|
2025 |
01/31/2025 |
127,500 |
83,013 |
9,130 |
9,130 |
0 |
||
|
2024 |
01/22/2024 |
120,500 |
80,596 |
8,865 |
8,865 |
0 |
||
|
2023 |
01/23/2023 |
105,500 |
78,249 |
8,606 |
8,606 |
0 |
||
|
2022 |
02/22/2022 |
94,000 |
75,970 |
8,356 |
8,356 |
0 |
||
| Property Building Permit History | ||||||
|---|---|---|---|---|---|---|
| Issued | Permit # | Provided by | Bldg # | Description | Est Construction Cost | Status |
|
11/2/2015 |
10478344 |
MIDWEST CITY |
1 |
Storage Buil |
2,000 |
Inactive |
|
10/6/2015 |
10477802 |
MIDWEST CITY |
1 |
Storage Buil |
3,880 |
Inactive |
| Click button on building number to access detailed information: | ||||||
|---|---|---|---|---|---|---|
| Bldg # | Vacant/Improved Land | Bldg Description | Year Built | SqFt | # Stories | |
|
1 |
Improved |
Ranch 1 Story |
1951 |
995 |
1 Stories |
|